Havnehusene are part of a large redevelopment project in the former industrial eastern harbor of Aalborg. The design is a modern take on the former industrial heritage of the surrounding context. This is achieved by using raw and unembellished materiality, combined with a precise sense of architectural detail. The project contains compact housing for students, young people, and families with young children.
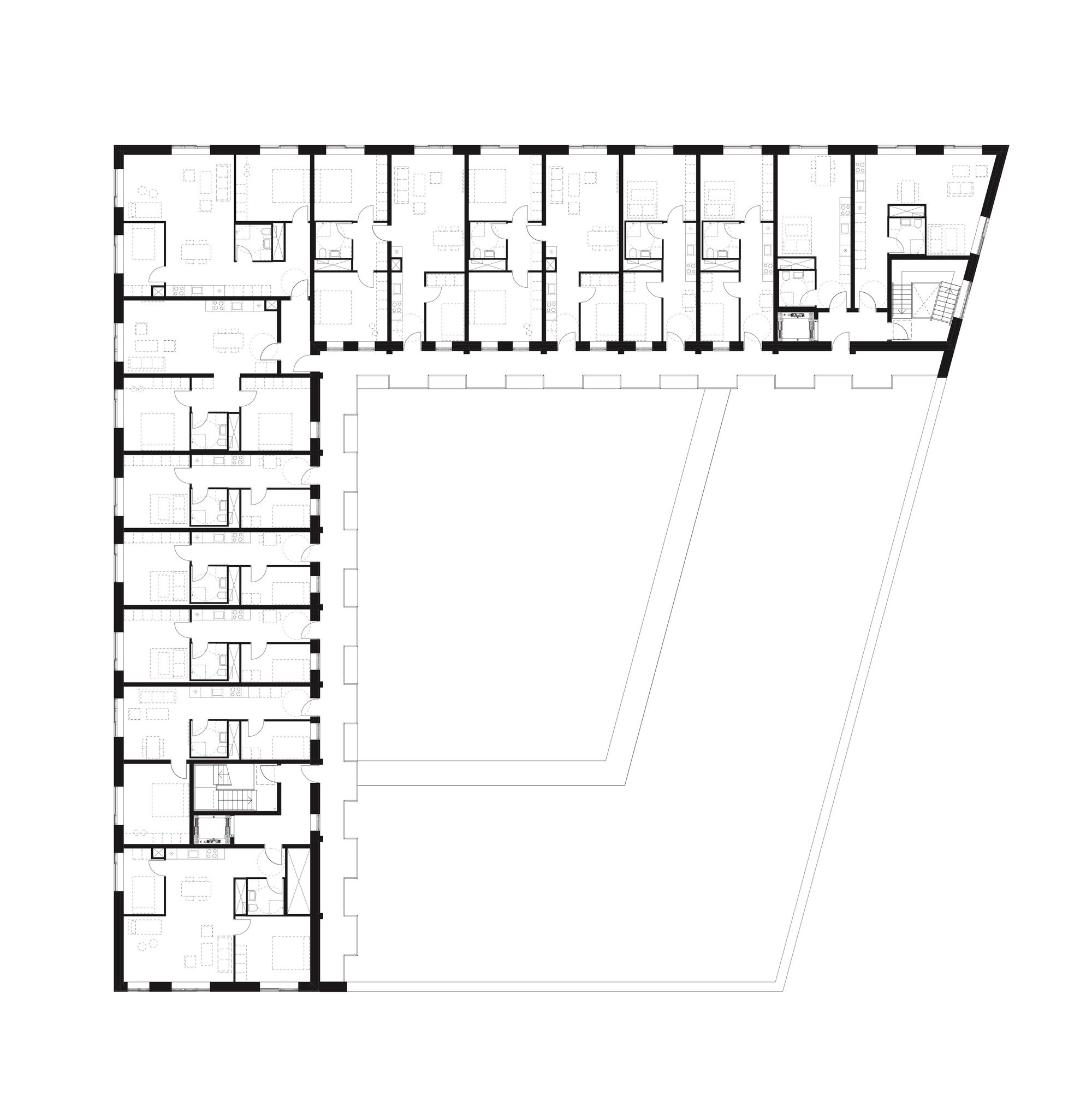
The total area for the entire block is 10,500 m2, with 2,000 m2 reserved for the grocery store on the ground floor. The building volume is a modern interpretation of the traditional courtyard building. The northeastern corner of the building has been elevated two stories upwards, to create natural access to the grocery store in the ground floor. As a result of this, more dwellings have a view of the water, and the inner courtyard is protected from the harsh climate of quayside.
The building volume allows for daylight to penetrate into the protected communal courtyard, which, together with the shared roof terrace and the circulation system of gallery walkways with small private balconies, creates a semi-public framework for the community of the residents to take place.
To respond to the surrounding area’s brick buildings, the facade is constructed of red-brown dyed concrete panels. The panels are shifted between the floors to create a large-scale half-bond coursing, ensuring an architectural expression that is coherent with the existing industrial heritage of the old harbor.
Project Info
Architects: SANGBERG Architects
Area: 10500 m²
Year: 2019
Country: Copenhagen, Denmark
Photographs: Rasmus Hjortshøj – COAST
Manufacturers: AutoDesk, GRAPHISOFT, Bega, All remove, BE Stål, Bad element, Dan element, Hvidberg, Krone, Lindab, Nordlux, ROCKWOOL
Lead Architect: Jonas Sangberg
Engineering: Niras
Landscape: Sangberg Architects
Design Team: Marie-Louise Mejlholm, Thomas Walcher, Signe Kjær Nielsen, Richard Teeling
Clients: A. Enggaard A/S
Collaborators: Polyform, WERK
















Sophie Tremblay is a Montreal-based architectural editor and designer with a focus on sustainable urban development. A McGill University architecture graduate, she began her career in adaptive reuse, blending modern design with historical structures. As a Project Editor at Arch2O, she curates stories that connect traditional practice with forward-thinking design. Her writing highlights architecture's role in community engagement and social impact. Sophie has contributed to Canadian Architect and continues to collaborate with local studios on community-driven projects throughout Quebec, maintaining a hands-on approach that informs both her design sensibility and editorial perspective.






