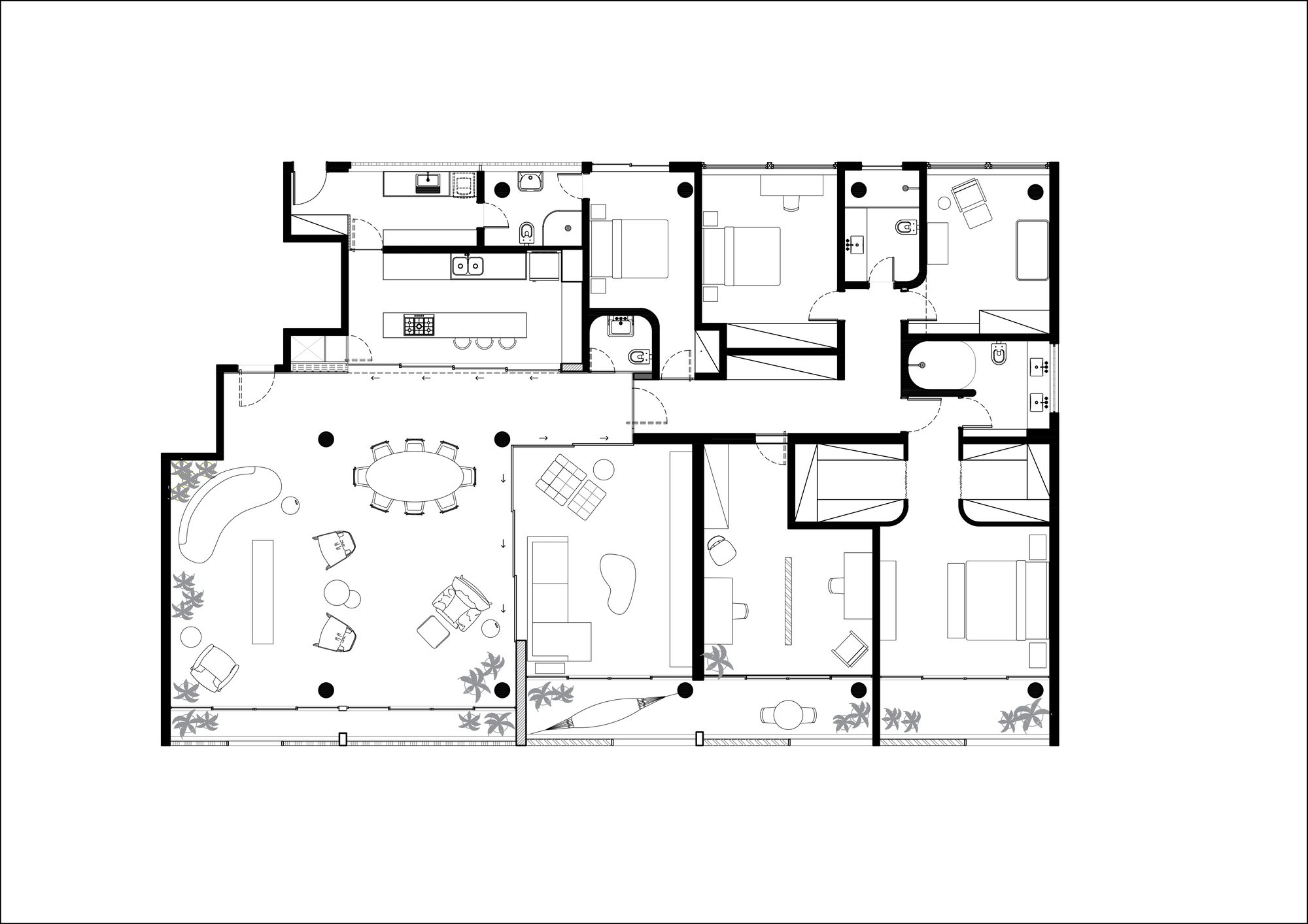
Guinle Park Apartment, Located in the emblematic Guinle Park, the Caledonia Building, designed by Lúcio Costa in 1954, is an icon of Brazilian modernist architecture. The architectural design for this unit was carefully crafted to create an interior space that harmoniously dialogues with the unique architecture of the building. Revealing and honoring the beauty of the original elements was the main design premise, aiming to create an atmosphere free of excess and, above all, attentive to pre-existing features.
The iconic cobogós and brise-soleils that make up the facade and shape the internal planes through their beautiful play of light and shadow, the prominent round pillars that provide visual rhythm to the apartment, as well as the choice of furniture that reveres and enhances the modernist aesthetic.
The selected materials establish a harmonious dialogue with the color palette of the building’s facade. In the kitchen, the tiles in a bluish-green tone create a visual connection with the brise-soleils. In the bathrooms, the use of terracotta references the cobogós.
The stainless steel cabinets, original to the time, were refurbished and incorporated into the new kitchen. The upper module, set away from the ceiling, creates space for a glass brise that promotes air circulation and the entry of natural light. The combination of new and old elements was one of the main premises of the project, which aimed to re-signify and keep alive the history and memories of this space.
Project Info
Architects: LINHA Arquitetura
Country: Brazil, Rio de Janeiro
Area: 250 m²
Photographs: Felco
Execution: Patricia Gullo





















