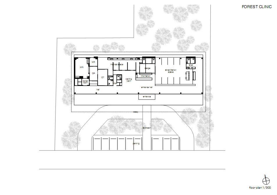
Designed by Shinichi Ogawa & Associates, The intention was to design a medical treatment and rehabilitation space filled with sunlight, open to the outside and surrounded by green, providing a relaxing, easy environment for patients and staff alike.
External walls are largely glazed and interior space is divided by low partitions of 1.5m allowing all working areas to have views to the outside. A large overhanging roof, extending 5.8m beyond the building envelope, controls the sunlight and creates an intermediate covered space around the building.
The close relationship between inside and outside is important in creating a comfortable, calm setting. The green roof, grass and trees provide an escape from the urban environment, contributing a landscaped space to the town. As the trees mature, this will become a clinic in a forest.
Project Info:
Architects: Shinichi Ogawa & Associates
Location: Japan
Area: 725.0 m²
Year: 2010
Project Name: Forest Clinic
All Images Courtesy Of Shinichi Ogawa & Associates










