Faculty of Fine Art, Music and Design of the University of Bergen | Snøhetta

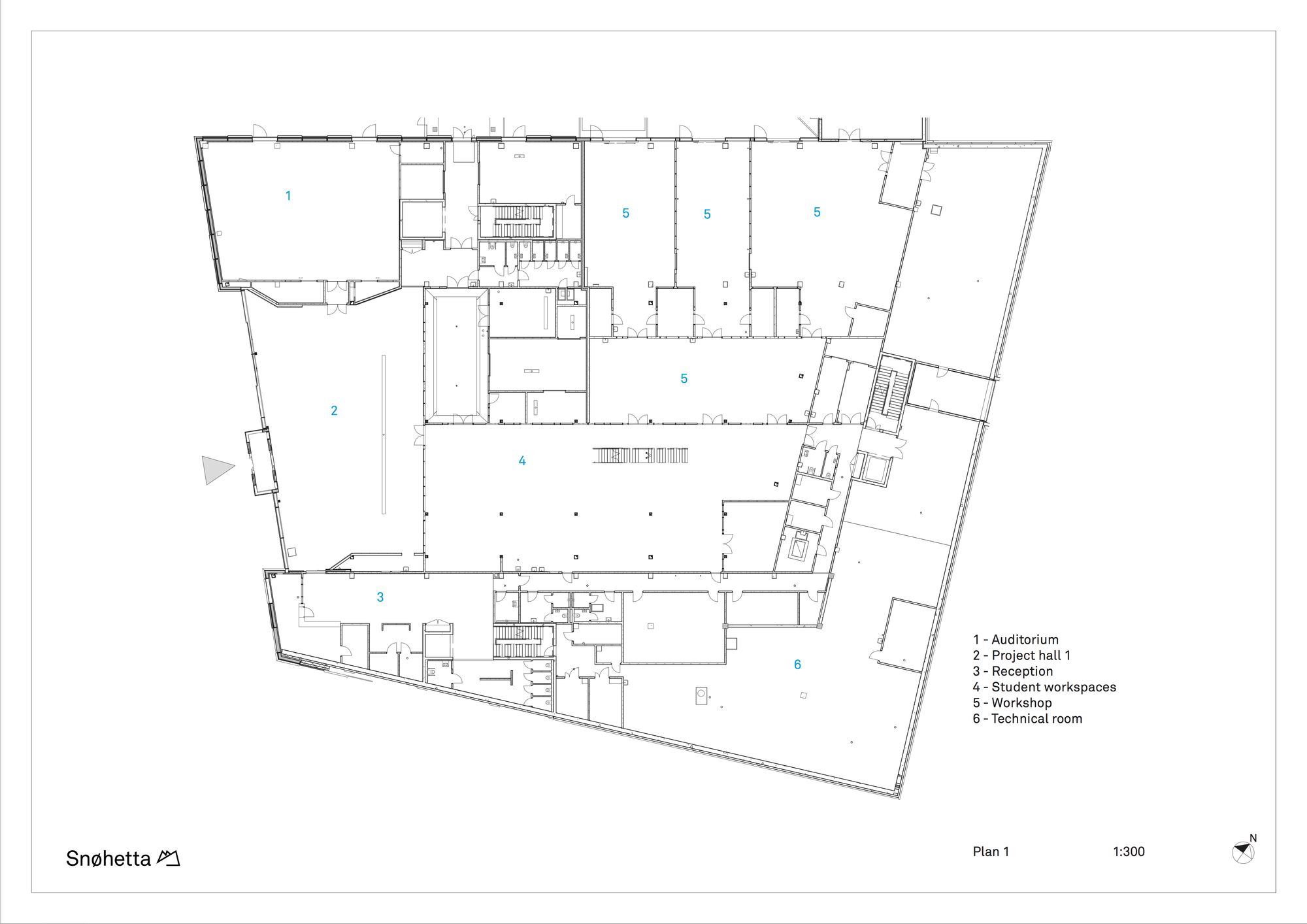
Faculty of Fine Art, Music and Design replacing the former Bergen Academy of Art & Design (KHiB), the new KMD has undergone a historic fusion, assembling the previously scattered faculty buildings under one roof. This new 14,800m2 cross-disciplinary faculty is now the second largest cultural building in Bergen after the 1,500-seat Grieg Concert Hall. The building is organized along two axes, one internal, dedicated to students and staff, and one external, open to the public. Under the KMD roof, these axes cross each other in the 1,300 m2 and 19,000 m3 project hall, one of the most prominent and dominant features of the building.

Photography by © Trond Isaksen

It is here, in the transition zone between the public and the private sphere of the school, that the building offers exciting opportunities for students, professors, and visitors to connect, discover, and learn from one another. It is a multi-use, semi-climatic space running through the entire construction. The building’s entrance is connected to the large outdoor public plaza, Kunstallmenningen. The plaza, together with the large glass wall of the project hall, makes KMD an inviting and open building in dialogue with the city center of Bergen.

Photography by © Trond Isaksen

An Ideal and Malleable Space for Artistic Expression :
A prominent aspect of the KMD building is its robust and malleable characteristics. Both the project hall and the 410 rooms surrounding it, including auditoriums, offices, and workshops of various sizes, have been designed to both foster creativity and to withstand harsh treatment which is inevitable in an art school. The objective is to free students and staff from limitations by surfaces and materials. Another important feature of the building is its unifying mission, manifested through the project hall. As a powerful symbol of the unification process of six faculty buildings merging into one KMD, it is a direct reflection of the faculty’s ambition of stimulating to collaboration and cross-disciplinary exchange. Very much a public space, as well as an artistic space for students, the project hall will host events and exhibitions.

Photography by © Trond Isaksen

Rising to 23-meter-high at its tallest point, it is equipped with an original Munck bridge crane running its entire length, echoing the now demolished Sverre Munck’s crane factory which used to occupy the site. Throughout, Snøhetta has created a generous and functional building, serving both students and faculty members with its top-notch machinery, equipment and special facilities. Surrounding the 52-meter-long and 24-meter-wide project hall one will find 32 huge workshop-cum-display spaces. These spaces are equipped with specialized infrastructure and heavy machinery for woodwork, ceramics, metalwork, plaster, printmaking, textiles, 3D modelling and printing, video, sound art, and photography.

Photography by © Trond Isaksen

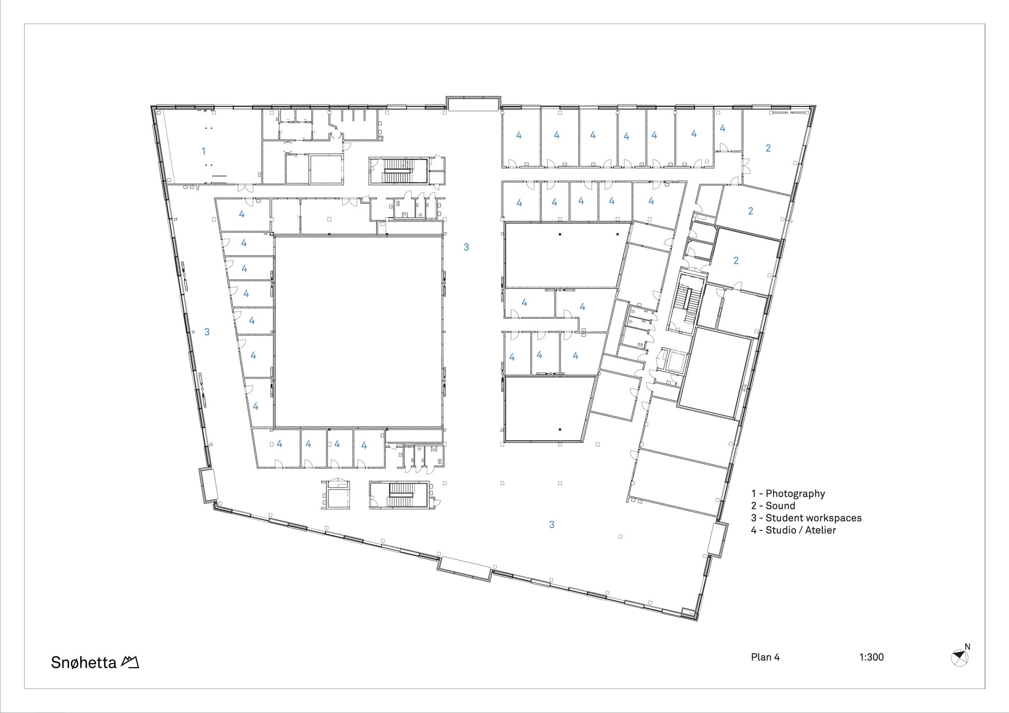
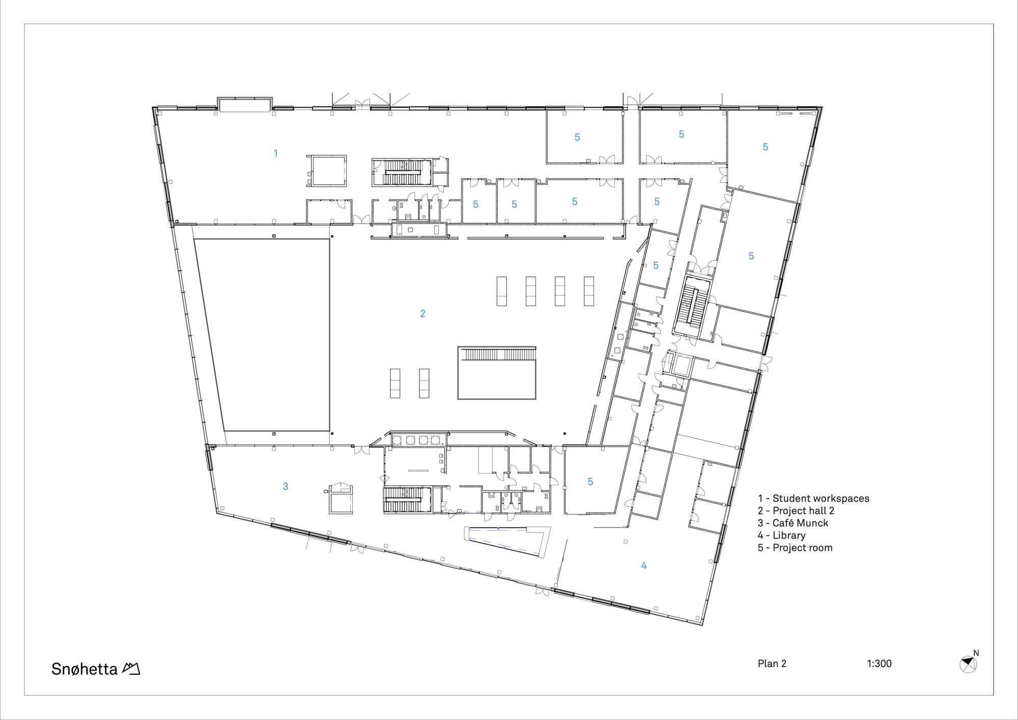
While the creative work areas are designed to provide plain functionality, social and administrative spaces have been designed for people to work and relax together. Among other, the cantilevered box-shaped windows emerging from the façade may serve as social zones where students can come together over a coffee to discuss, relax, and enjoy the view during brakes. At the second level of the building you will find a café with an inviting terrace, as well as the library and materials library, all of which are accessible to the public. Along with workshops, the faculty’s administration wing occupies level 3. Level 4 contains most of the students’ workshop and studio facilities, including photographic and sound workshops, studios and seminar rooms. It also houses studios for the faculty’s academic staff.

Photography by © Trond Isaksen

Materiality :
The KMD building’s aesthetic does not compete with its purpose of welcoming collective artistic installations and individual expression. It is a clean-cut, environmentally friendly and durable building focused on materials that will withstand the rainy climate of the Norwegian west coast and a high degree of rough use, wear, and tear. The material palette has a clear reference to the Norwegian coast, using well-established materials such as pine wood block flooring, birch veneer, raw aluminum, crude steel, and concrete. The interior palette is kept low key, providing studios, student work areas, and other spaces with a neutral and durable environment suitable for art and design work. Painted gypsum fiberboards provide a smooth, robust and a visually subdued surface, ideal for screws, plugs, and nails supporting artwork. These materials used indoors are extremely robust and have good light reflecting, soundproofing, and acoustic qualities.

Photography by © Trond Isaksen

While most of the floors are covered in vinyl, the floor of the first level is covered by slab and porous concrete. The second floor of the Project Hall is covered by a beautiful and robust pine wood block flooring. When a material first is introduced into the material palette, it has been reused consequently throughout the building. Following this philosophy, the same vinyl which is used for flooring is also used to protect wall corners, as a continuous baseboard between floors and walls, and as wall cladding in all bathrooms. Crude steel rails and handrails are mounted and welded on site and each transition is carefully rounded and soft to touch. In-situ poured concrete is left with the weather marks given the day of construction. The use of crude steel is also reflected in the profiles of the interior glass panels and in the door wings of the large, heavy doors leading to the workshops on level 1 and to the project hall on level 2.

Photography by © Trond Isaksen

A Robust Façade :
The pre-fabricated raw aluminum elements that clad the building’s exterior compose a puzzle of depth, breadth and length. 900 varied sized seawater-durable crude aluminum elements are protruding from the wall at varying distances, only paused by large cantilevered box-shaped windows punctuating the rhythm of the aluminum surface. The metal cassettes shift according to the weather conditions of the west coast and reinforces the metallic effect of the aluminum. Durability and robustness have been keywords for all decisions made throughout the façade design process. The rainy and sometimes stormy coastal climate demands all exterior materials to not only withstand harsh conditions, but to weather in a way that highlights their unique qualities over time. The crude aluminum surfaces will gradually age and naturally oxidize, heightening the variations in colors and textures.

Photography by © Trond Isaksen

This robust and playful expression gives great flexibility when planning for windows and lighting conditions. The windows of the building are set at different heights to allow for maximum usable wall space and excellent daylight conditions. Moreover, the glass roof conveys light from the sky which melts together with the light streaming through the glass wall. The shadows in this space are somewhat erased, leaving the colors of the room authentic and natural.

Photography by © Trond Isaksen

Outdoor Spaces :
Of the 11.45-acre Møllendal lot, a total of 9 acres are dedicated to outdoor areas, including green areas, open plazas, and parking. Large parts of the outdoor is accessible to the public, with the Kunstallmenningen plaza and the café terrace as natural meeting points.

Photography by © Trond Isaksen

The plaza is framed by two green wetland areas fed by roof and surface water, planted with wetland vegetation from the Norwegian flora. Here, one will find a rich variety of plants, such as sea buckthorn, willow, blackthorn, blackberry, ferns, globeflower, cat tail, and meadowsweet. Parts of an existing natural stone wall along the road Møllendalsvegen, echoing the former location of the Munck Crane’s factory, has been retained. Behind the building you will find courtyards for outdoor work and a delivery zone.

Photography by © Trond Isaksen

The yards lead into workshops which have been equipped with outdoor workstations on the roof. These terraced workstations lead out into the surrounding terrain with its scattered, rugged vegetation. Underneath the café terrace, a huge tank with a capacity of capturing up to 90 liters of water per second stocks excess water from the 4,100m2 roof. The water is further lead into a 500m3 infiltration pool situated at the plaza. The pools will avoid strain from rainfall and flood on the encircling environment.

Photography by © Trond Isaksen

Project Info:

Architects: Snøhetta
Project Location: Bergen, Norway
Project Year: 2017
Project Area: 14800.0 m2
Photographs: Tomasz Majewski, Trond Isaksen, Stephen Paolo Citrone

Snøhetta
Arch2O.com
Logo
Send this to a friend