Ecole Nationale Superieure d’Art | Dietrich Untertrifaller Architekten
The Ecole Nationale Superieure d’Art, an art school in Nancy, forms the northern end of the new university campus ARTEM (ARt, TEchnology, Management), the largest new university complex in France, and occupies a central position between the city and the new campus premises. It accommodates all the facilities needed for the three educational fields of art, design, and communication, such as studios, workshops and lecture halls, including the administration and spacious exhibition areas. Dietrich | Untertrifaller Architekten and Zoméno Architects won the competition in November 2010.
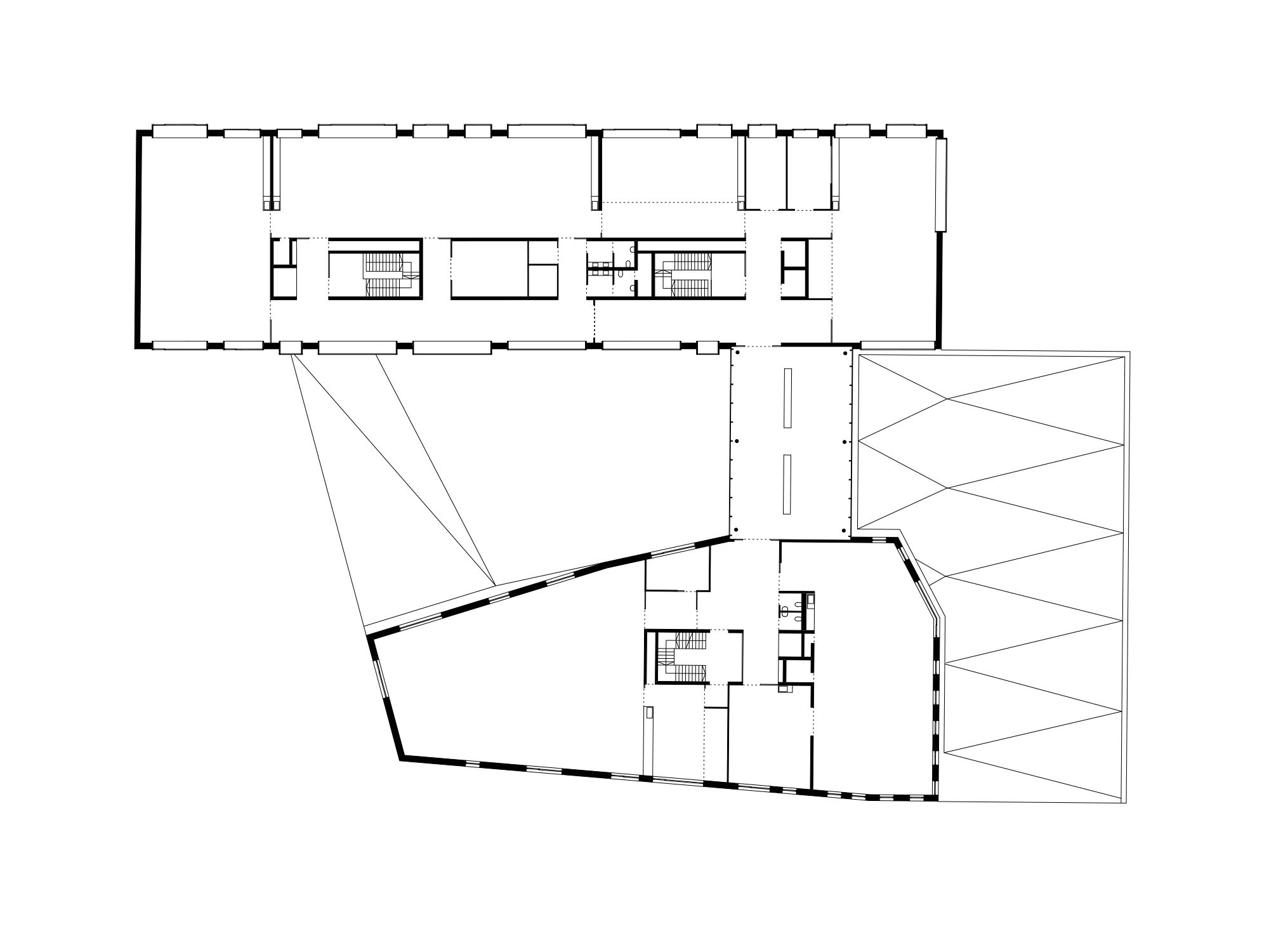
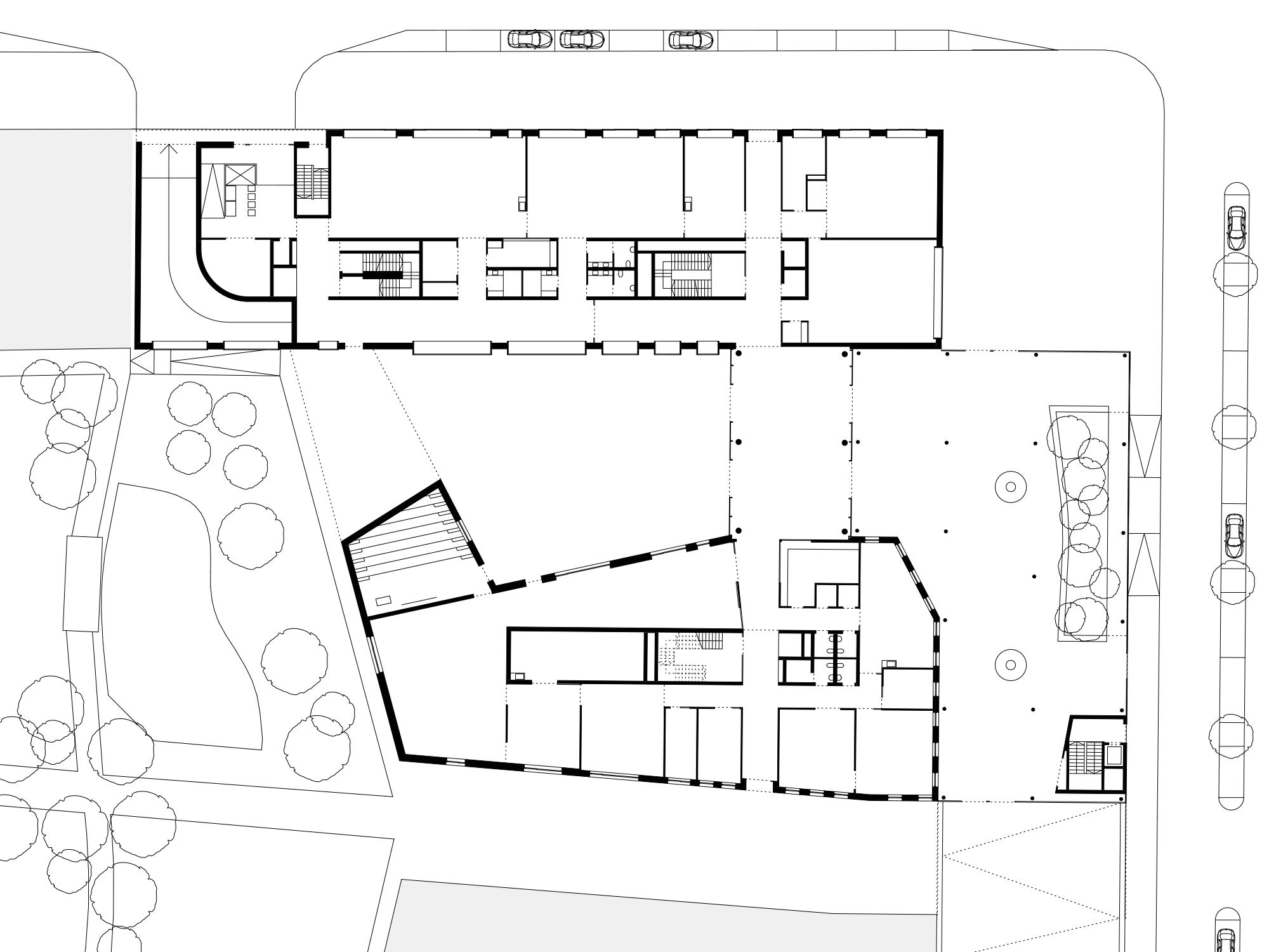
Joined by two glass connecting structures, the four-story “Vauban” building on the northwest side and the five-story “Signal building” on the southeast side enclose an inner courtyard. The clear spatial organization is apparent as soon as one enters the building. The ground floor of the Signal building contains exhibition spaces, which are topped by the administration offices. The lower Vauban building accommodates the workshops. An auditorium and the two-story entrance hall are located inside the connecting buildings.
The two structural elements have very distinct appearances: the highly chamfered design of the Signal building is clad entirely in a perforated sheet façade made of brown-black, anodized aluminum. The roof has the same design, thus becoming a fifth façade. The windows towards the street are slightly offset for each floor and gradually change their sizes in the direction of the park.
The rectangular volume of the workshops is clad in black facade panels and shows the regular structure of large-format windows in a linear arrangement. As a visual connection to the bright variety of the adjacent university buildings by Nicolas Michelin and for acoustic reasons, the architects hung colorful felt drapes in front of the windows, while the Signal building on the south side receives shade from exterior awnings.
Despite the external differences, both buildings have the same support structure: the clear-spanned workshop platforms range around a reinforced concrete core with exposed concrete, which houses all of the vertical developments, the toilet facilities, and technical systems. The passages on the courtyard side were deliberately not conceived as “hallways” or narrow “tubes”, but as light-flooded, bright lounge areas that can also be adapted for exhibitions. They open up to the courtyard with large windows, creating a strong visual connection between the inside and outside.
Opened in 2016, this art school in Nancy is already the sixth project by Dietrich | Untertrifaller in France. A school in Broons (Brittany) was completed in 2015, followed in 2016 by two sports centers in Longvic (Burgundy) and Lyon as well as the Strasbourg Convention Centre. After winning a competition in 2015, the firm is currently constructing a school in Lamballe, Brittany.
Project Info:
Architect: Dietrich | Untertrifaller Architekten
Project Location: 84 Rue Sergent Blandan, 54000 Nancy, France
Project Year: 2016
Project Area: 8590.0 m2
Photographs: Bruno Klomfar



















