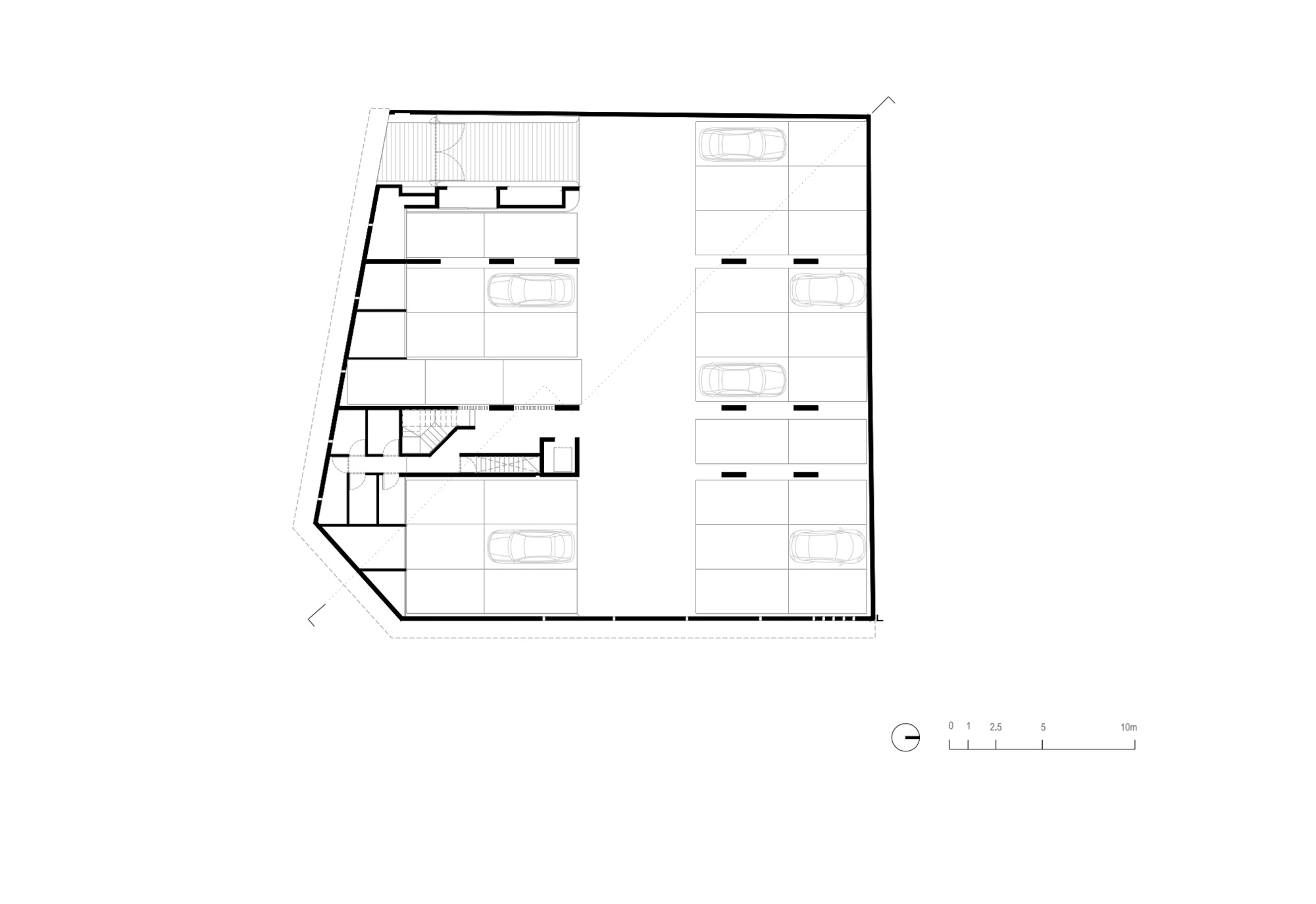
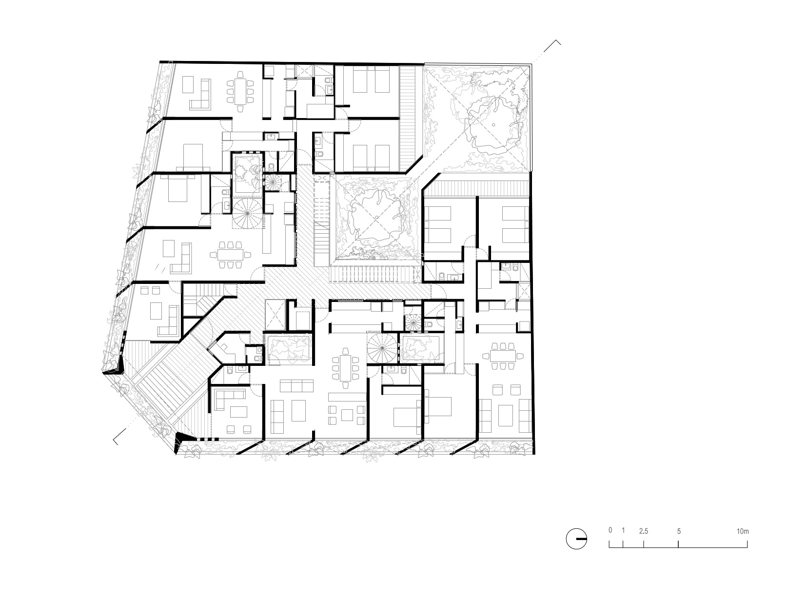
DPS Apartments, The design explores the traditional type of housing in Colonia del Valle, where the corners of the buildings are cut away, creating a wide street centre. Taking advantage of the space created in these intersections, the scheme is solved through a diagonal sequence of open spaces that go from the public to private.
Based on this scheme, the housing units are organized to not have any “backside” apartments. This is achieved by using simple and duplex typologies, relating both to the interior courtyards and gardens, as well as the street.
The typological differences are clearly reflected in the facade, which has diagonal elements that direct the view to the broader perspective and protect the spaces of sunlight.
The constructive system is very clear, composed of reinforced concrete load-bearing walls, allowing to reduce the number of additional details to the construction and thus avoiding errors during the construction process.
Project Info
Architects: Estudio MMX, Olga Romano
Country: Mexico, Mexico City
Area: 3510 m²
Year: 2017
Photographs: Rafael Gamo, Courtesy of Estudio MMX, Olga Romano
Collaborators: Mariana Braga, Olivia Hansberg














Anastasia Andreieva is an accomplished Architectural Projects Editor at Arch2O, bringing a unique blend of linguistic expertise and design enthusiasm to the team. Born and raised in Ukraine, she holds a Master’s degree in Languages from Taras Shevchenko National University of Kyiv. Her deep passion for architecture and visual storytelling led her to transition from translation and editorial roles into the world of design media. With a keen eye for conceptual clarity and narrative structure, Anastasia curates and presents global architectural projects with precision and flair. She is particularly drawn to parametric and digital design, cultural context, and emerging voices in architecture. When I’m not analyzing the latest architectural trends, you’ll probably find me searching for hidden gems in cityscapes or appreciating the beauty of well-crafted spaces. After all, great design—like great connections—can be found in the most unexpected places. Speaking of connections, because architecture isn’t the only thing that brings people together.
