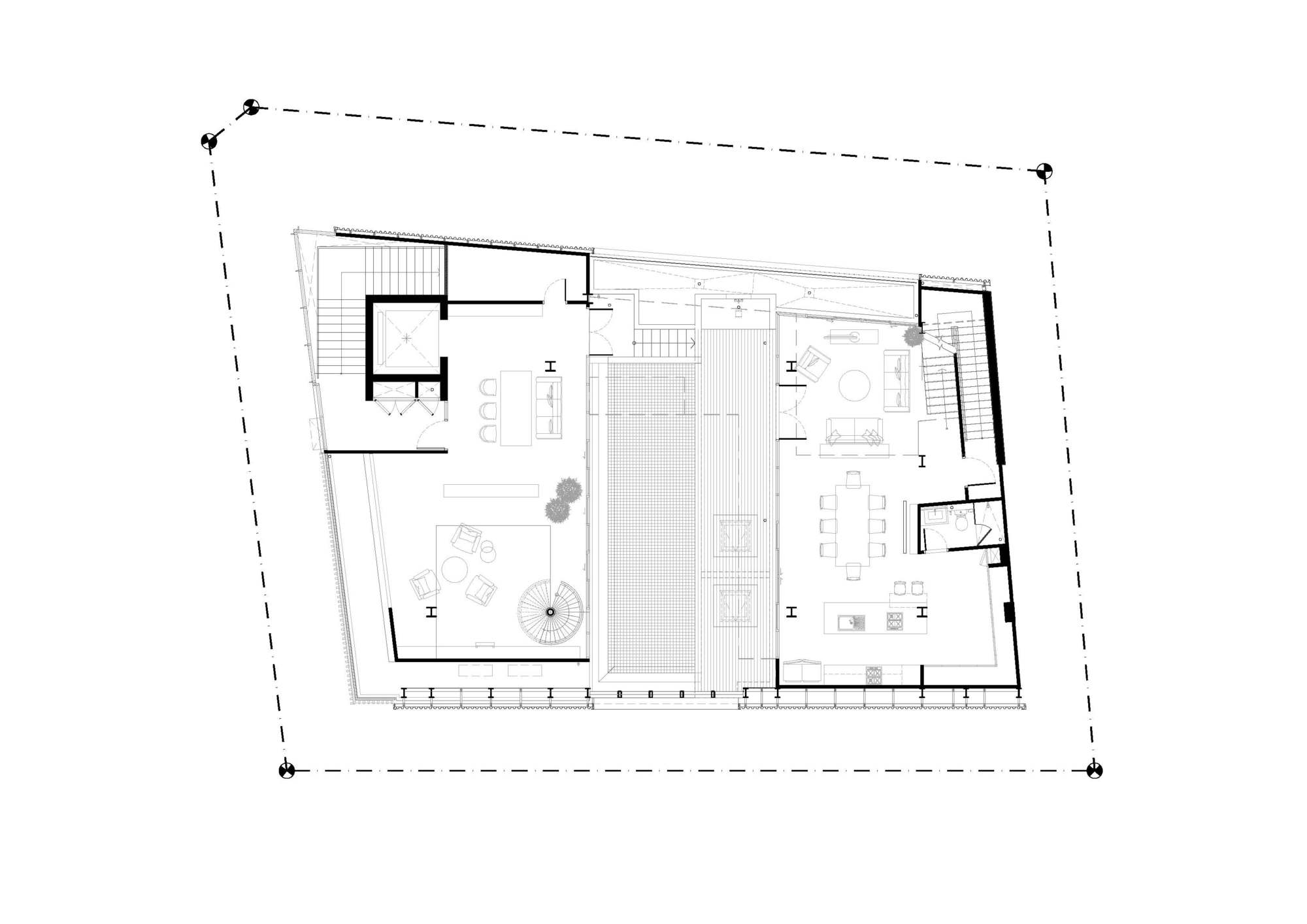
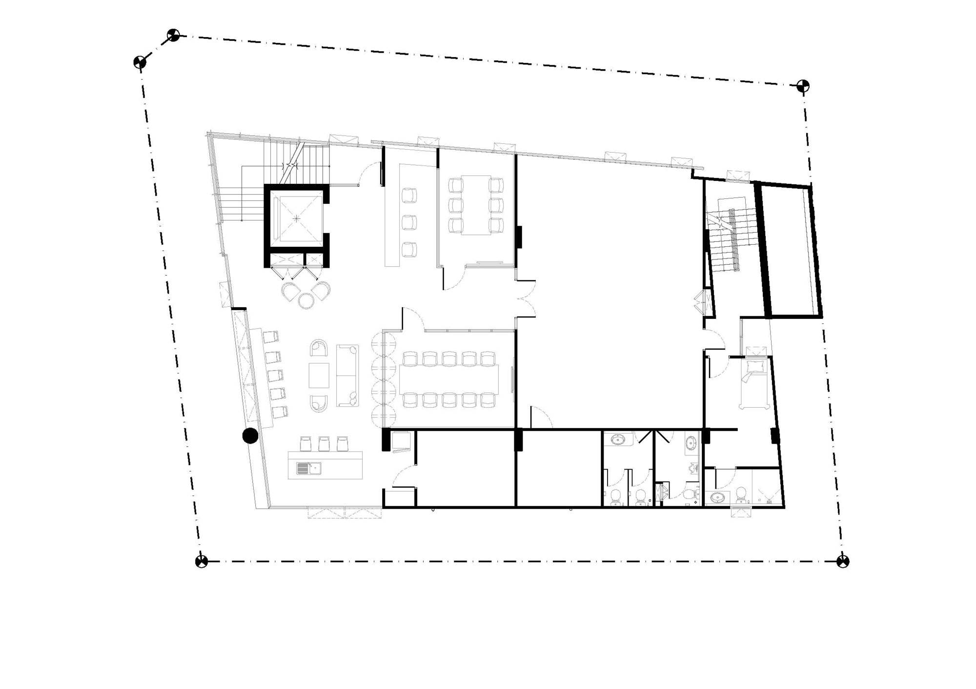
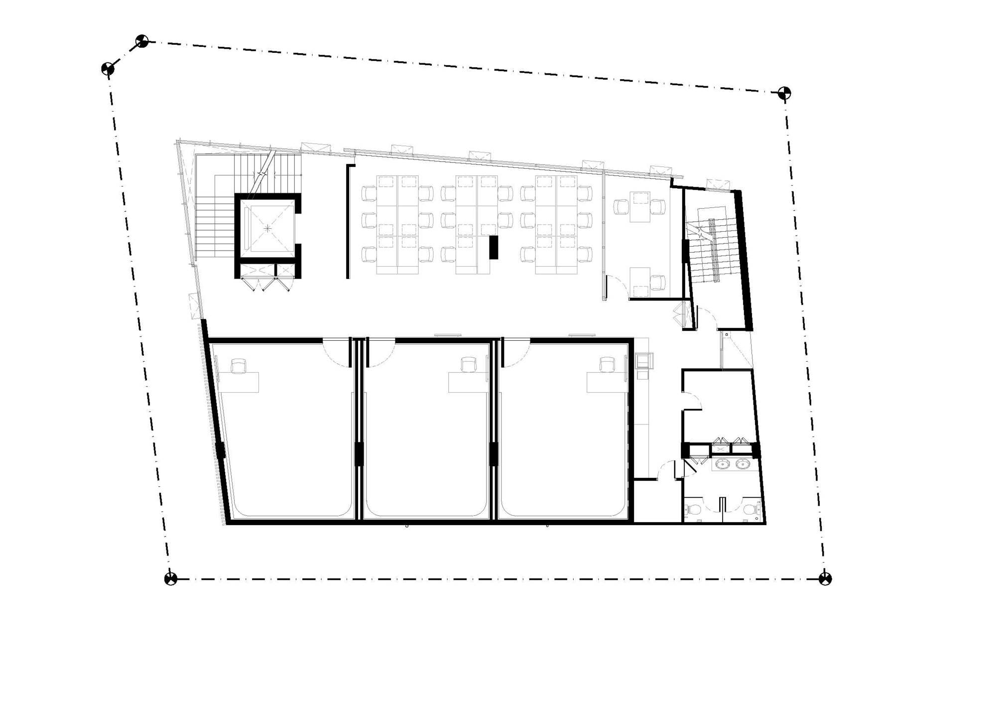
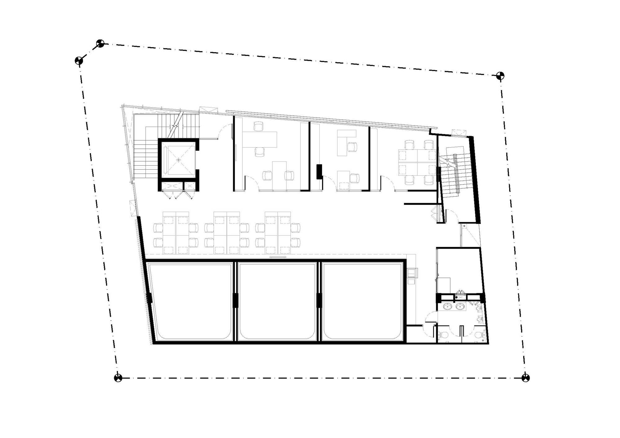
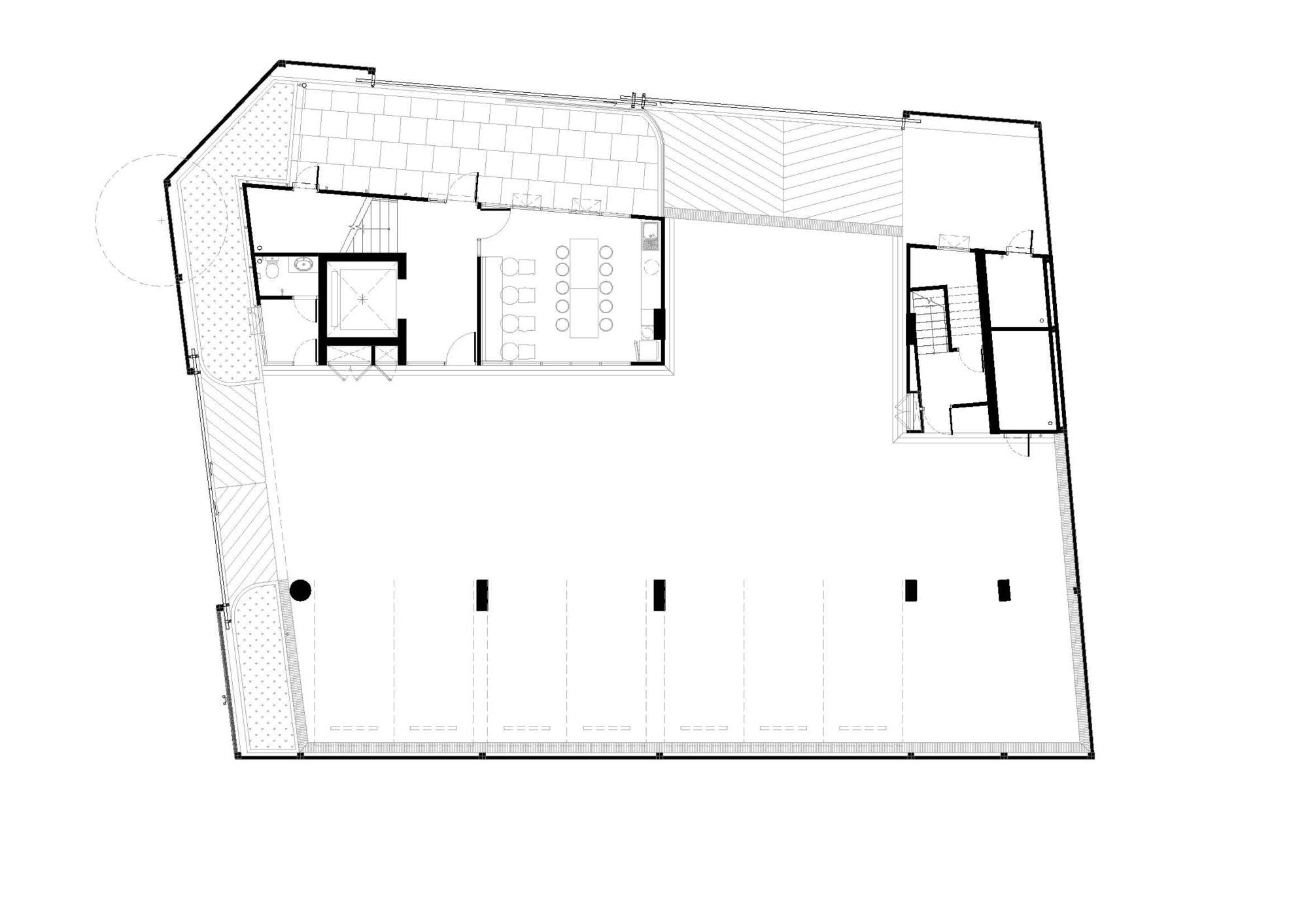
Concept Design: District 8 Home & Office. The building is a 6 story mixed-use project, comprising of office spaces for a TV broadcast company and a penthouse residence on the top 2 floors. The program is to relocate the owner’s office to this new location along with owner’s residence on the top 2 levels. The area of the building is designed to be just under 2,000 sq.m. and 23 building height limit to apply minimum set back since the site is very small with 2 roads around the corner. Design Approach, as usual, we try to operate and organized all the factors, such as the building functions, spaces and site context and let them play their parts. As the result, we get a wedged gable roof shape with different height at the ridge line from split levels on the top part. We just let each parts come and play their roles and not too overwhelmed. We keep them organized with simplicity of form with multiple textures or details and materials.
A steep gable roof shape is selected as a typology for residential unit on the top with large glass façade on the North for the office spaces. Vertical aluminum fins and architectural elements are applied on the western façade to provide maximum shading for the west wall. The swimming pool is a critical factor to set the residential floors. The floors are split at half level since the pool have to sit on the main floor not sinking in since the space below are needed for the office. The living space are on 2 sides of the pool with a big opening on North and South direction to take advantage of natural ventilation and light. The split levels give more privacy between the bedrooms and also the building form as stated. A less steep sloped roof is designed to cover the outdoor terrace area to give a more intimate space as a transition between 2 sides. Solid wall of the broadcast studios are located against adjacent townhouse to give minimum set back of 2 meters. The circulation elements are set on the west of the building which is stairs and elevator to block the western sun along with existing Tamarind tree that we try to keep.
The building structure is a composite structure between concrete and steel. The top 2 floor are steel frame structure and the bottom part is concrete structure with post tension floor system. Concrete elevator core is showed as an exposed concrete wall with embedded floor numbers with reinforced concrete stairs wrap around. The glass walls along the stairs are pushed out as another skin layering over the concrete core. It is a challenge to work on the setback and building regulations to gain the most out of it. Sometimes we need to play by the rules to get something extraordinary. Our design philosophy is not to make a strikingly irregular forms but to make a design statement with simple form with more refined details.
Project Info
Architects: AOMO
Area: 1600 m²
Year: 2019
Country: Khet Watthana, Thailand
Photographs: JOYA 49 Photography
Manufacturers: Bluescope, FAMELINE
Lead Architects: Sivichai Udomvoranun, Phudit Thirathanasombat, Ratchada Kijpan
Structural Engineer: WOR and associates
Client: District 8 Co.ltd
System Engineer: MEE Consultants



























Madeline Brooks is a Projects Editor at Arch2O, where she has been shaping and refining architectural content since March 2024. With over a decade of experience in editorial work, she has curated, revised, and published an array of projects covering architecture, urbanism, and public space design. A graduate of the Harvard University Graduate School of Design, Madeline brings a strong academic foundation and a discerning editorial eye to each piece she oversees. Since joining Arch2O, she has played a pivotal role in shaping the platform’s editorial direction, with a focus on sustainability, social relevance, and cutting-edge design. Madeline excels at translating complex architectural ideas into clear, engaging stories that resonate with both industry professionals and general readers. She works closely with architects, designers, and global contributors to ensure every project is presented with clarity, depth, and compelling visual narrative. Her editorial leadership continues to elevate Arch2O’s role in global architectural dialogue.


