BP Tower | Cadaval & Solà-Morales
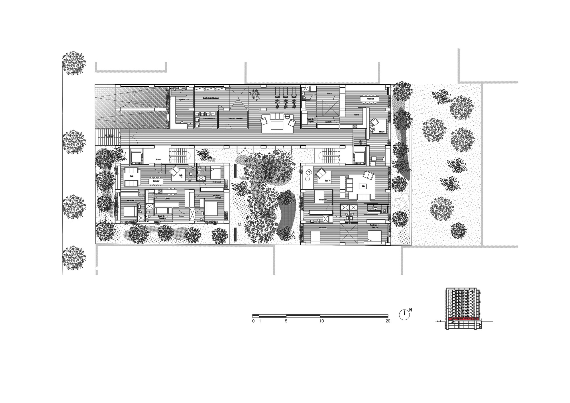
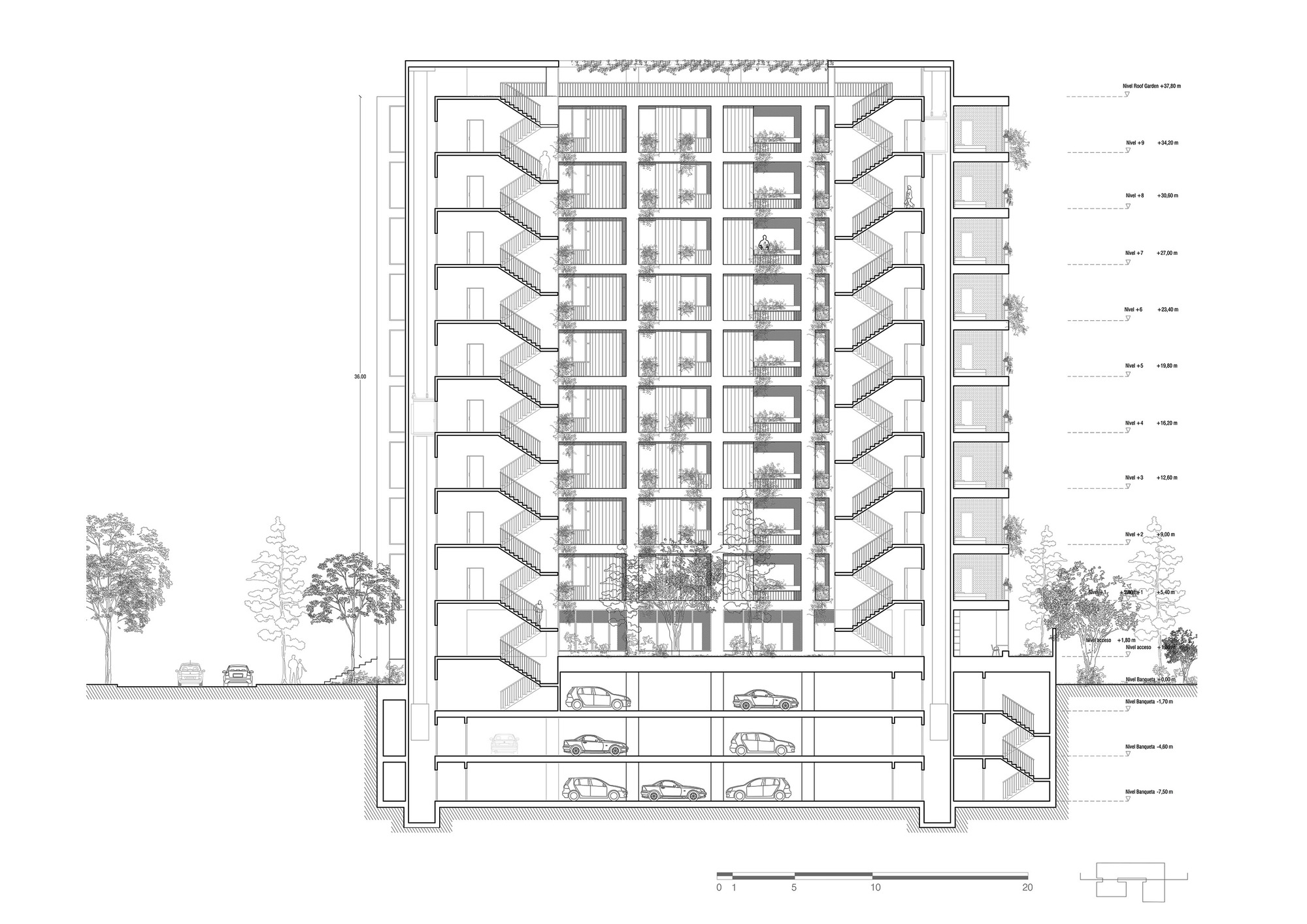
BP Tower and the patio The Building is located in Polanco, one of the centers of greatest urban intensity in Mexico City. It consists of 3 independent towers that are articulated to generate a central patio that allows the construction of a community space that constitutes the identity of the complex and is qualified by its friendly proportions for the scale of the building. The patio allows all units to have a double orientation, and therefore the ensures cross ventilation of the apartments, and with it, the possibility of thermal control with passive systems. The building was born from the desire to be a project open to the city. Generating the maximum number of linear meters of façade, and trying to ensure that they have the best possible orientation to guarantee the best possible thermal and light contribution to each and every one of the departments. At the same time, the will to define an efficient and economic construction system, based on the definition of dimensions that avoid large gaps and therefore structural cost overruns. Each of the 10 plants of the project has 4 departments; Along with two apartments that enjoy a private patio on the ground floor, the project has a total of 40 units. The apartments are distributed around the central patio, totally consolidating its north facade, and opening to the south. The location of two vertical cores, as efficient in their operation as possible, act as a hinge between the departments.
Apartments: The design of the apartments seeks the construction of the quality of each of the spaces of that integrates them based on their spatial, light and view qualities and not on the finishes. Thus, the apartments are designed to make the public spaces of the home as transparent and open as possible. The distribution of the departments is designed to concentrate the downspouts and ventilation at specific points, in order to grant maximum flexibility to future alterations to the distribution. Finally, the project seeks to maximise the distribution of the units, and uses the more public spaces in the apartments as distributors, thus avoiding the existence of corridors.
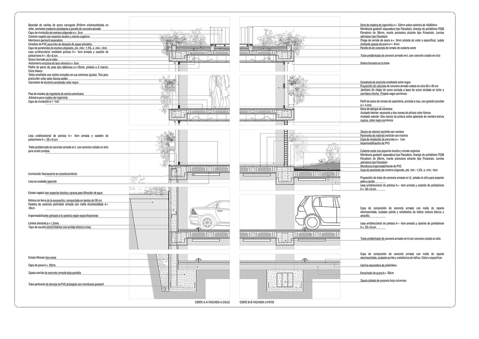
Roof Garden and Collective Areas: The roof has a big pergola that unifies the experience of the terrace and shade the area. Different areas are proposed, characterized by small provisions for the whole. Thus there is an area for barbecue grills and an area with tables. The vegetation foreseen on the roof aims to add quality and comfort to the terrace. The patio is a catalyst of light, heat and views for all the apartments, but it is also the heart of the project: what will build the identity of the place.This central zone has an extension of vegetation and trees; Being a private and interior area, isolated from the street, it can be a rest and play area for children, as well as a small lung for the whole complex. The gymnasium and a small rest or reception area open onto this central space, which is projected as an area of vegetation and color that also serves as a connection to the access area of the building.
Departamentos.
El diseño de los departamentos busca la construcción de la calidad de cada uno de los espacios de la vivienda basado en su calidad espacial, lumínica y de vistas, y no en el diseño de sus acabados. Así, los departamentos están diseñados para construir los espacios públicos de la vivienda lo más diáfanos y abiertos posibles. La distribución de los departamentos está pensada para concentrar los bajantes de agua y ventilación en puntos específicos, de forma a otorgar la máxima flexibilidad a alteraciones futuras de la distribución. Finalmente, el proyecto busca eficientar al máximo la distribución de las viviendas, y utiliza los espacios más públicos de la vivienda como distribuidores, evitando así la existencia de pasillos.
Roof Garden y zonas colectivas.
En la parte superior de la cubierta se define una pérgola que unifica la experiencia de la terraza y de sombra. Se plantean zonas diferentes, caracterizadas por pequeñas dotaciones para el conjunto. Así existe una zona de parrillas para barbacoas y una zona con mesas. La vegetación que se prevé en la cubierta, pretende añadir calidad y confort a la terraza.
El patio pretende ser un catalizador de luz, calor y vistas para la totalidad de los departamentos, pero también es el corazón del proyecto: aquello que construirá la identidad del lugar. Se prevé que habrá en esta zona central una pequeña extensión de vegetación, y algunos árboles; al ser una zona privada e interior, aislada de la calle, puede ser una zona de descanso y de juego de los niños, así como un pequeño pulmón para todo el conjunto. El gimnasio y una pequeña zona de descanso o recepción, se abren a este espacio central, que se proyecta como una zona de vegetación y color que sirve también de conexión con el area de acceso del edificio.
Project Info
Architects: Cadaval & Solà-Morales
Area: 10500 m²
Year: 2019
Country: Mexico City, Mexico
Photographs: Sandra Pereznieto, Paul Citron
Lead Architects: Eduardo Cadaval & Clara Solà-Morales
Client: Marhnos Habitat
Structural Engineering: Alonso y Asociados
Collaborators: Eduardo Alegre, Alberto García Garrido, Tereza Díaz, Lara Alcaina Pozo, Othmane Laraki, Angie Oteiza, Berta Marti, Adria Matarranz. Gala Nuñez, Joan Gallego, Miguel Angel Carrasco, Helena Sanjuan, Hugo Martínez










































