Bellerivestrasse 36 Zürich Office Building | C.F. Møller

The transformation of Bellerivestrasse 36 into a contemporary, climate-friendly office building by C.F. Møller Architects is an excellent example of the firm’s commitment to improving the lives of users and the planet. Located in a prime setting on the shores of Lake Zürich, this 1974 outdated office building was modernized to meet contemporary sustainability standards without sacrificing its architectural heritage. The project’s most significant achievement is its integration of sustainable practices with aesthetic and social value, turning the formerly closed structure into a vibrant, energy-efficient workplace.

Bellerivestrasse 36

© Mark Hadden

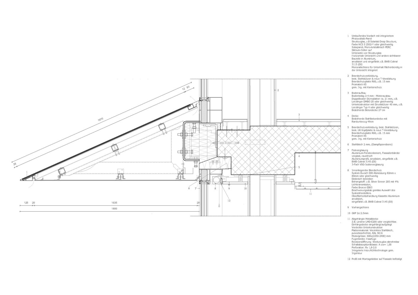
Introducing photovoltaic panels. One of the project’s main challenges was preserving the building’s original character while enhancing its environmental performance. The response has been installing horizontal photovoltaic panels on the façade. These panels generate clean energy and serve as sun-shading devices, reducing glare and preventing overheating inside the building. The panels are covered with colour-treated glass that matches the metal cladding, giving the building a fresh, modern look that blends into the surrounding park and offers clear views into the interior.

Bellerivestrasse 36

Site Plan

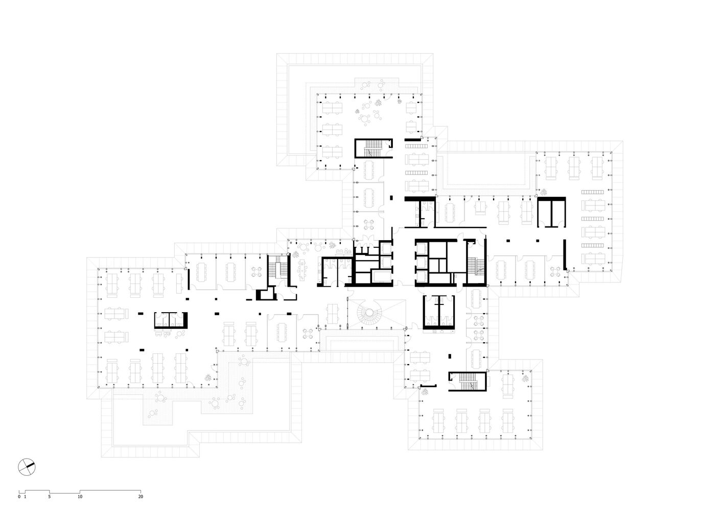
Well-being and knowledge-sharing. Inside, a new atrium connects office and rental units, encouraging department interaction and knowledge-sharing. This light-filled space provides a sense of identity and belonging for the building’s users, enhancing social sustainability. The atrium also improves air circulation and natural lighting, creating a healthier and more pleasant work environment.

Bellerivestrasse 36

© Mark Hadden

The renovation extended to the exterior, where existing stone terraces were transformed into green areas and integrated into the park to aid rainwater management and promote biodiversity. These terraces create inviting spaces for employees to take breaks, enhancing their well-being while contributing to the local ecosystem.

Bellerivestrasse 36

© Peter Sikker Rasmussen

The project adhered to rigorous sustainability criteria, earning the Swiss Minergie and LEED Platinium certifications. The building’s use of natural materials, such as wood for lift cores and floors, further underscores the architects’ commitment to creating a warm, welcoming environment. Ultimately, this project represents a holistic approach to architecture, balancing aesthetic, social, and environmental values to create a lasting impact on its users and the Zürich community.

Project Info:

C.F. Møller
Arch2O.com
Logo