Arizona Western College Community Building And Science + Agriculture Center | Gould Evans

The Arizona Western College Community Building and Science + Agriculture Center in Yuma, designed by Gould Evans, Arizona reflect the college’s bold identity and its commitment to its students and to the local community.

Arizona Western College Community Building And Science + Agriculture Center

© Winquist Photography

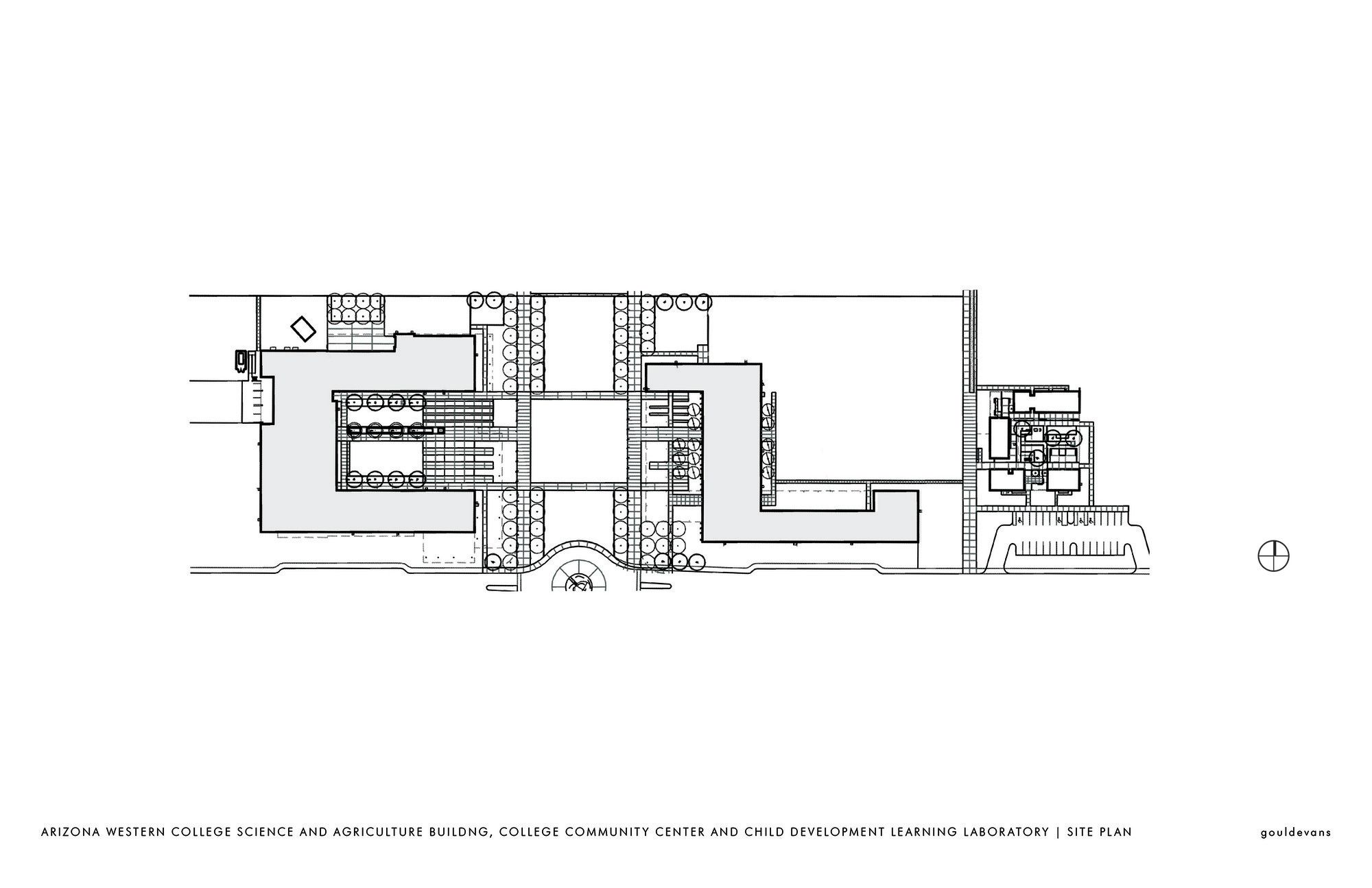
Arizona Western College was looking for a change of direction in terms of campus identity, community engagement, and academic approach. With the new College Community Center (CCC) and Science and Agriculture Lab (Sci-Ag) the college wanted to emphasize overlap and intersection of science programs and maximize engagement with the Yuma community. The buildings encourage collaboration and interaction of diverse groups of students, faculty, and community residents.

Arizona Western College Community Building And Science + Agriculture Center

© Winquist Photography

This project provides a new gateway to the campus by marking multiple points of inflection (or deviations from the norm):  integration of science and community, a boost to student success initiatives, and closed-loop sustainable goals. The Science and Agriculture Center merges interdisciplinary science instruction with sustainable campus and community programs.

Arizona Western College Community Building And Science + Agriculture Center

© Winquist Photography

The sustainable strategies used in the building became a teaching tool for the school’s science program. The cafeteria waste is processed as part of the instruction; compost is studied in the agriculture and soils labs, and used on the educational fields and sold to local farmers.

Arizona Western College Community Building And Science + Agriculture Center

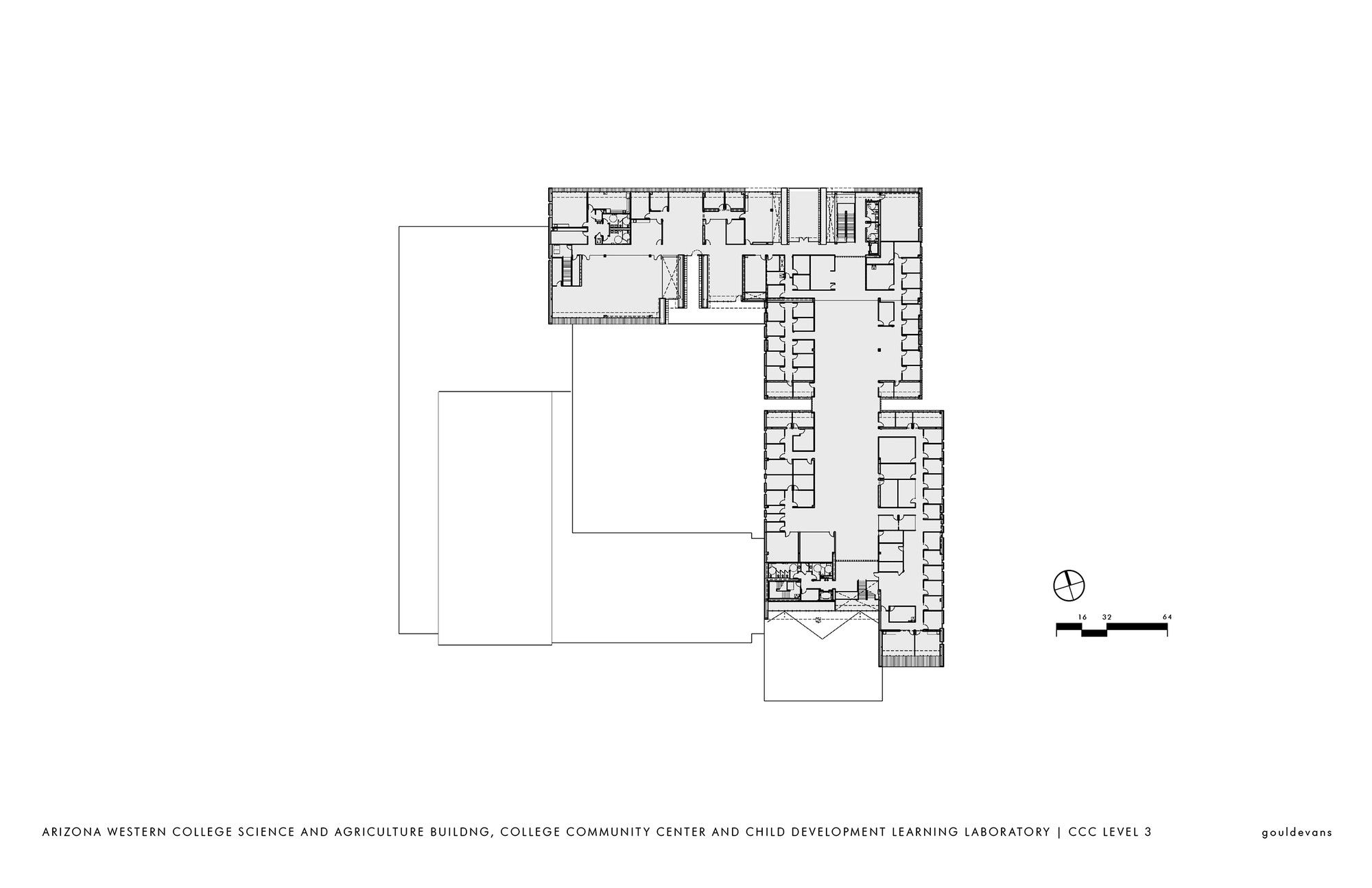
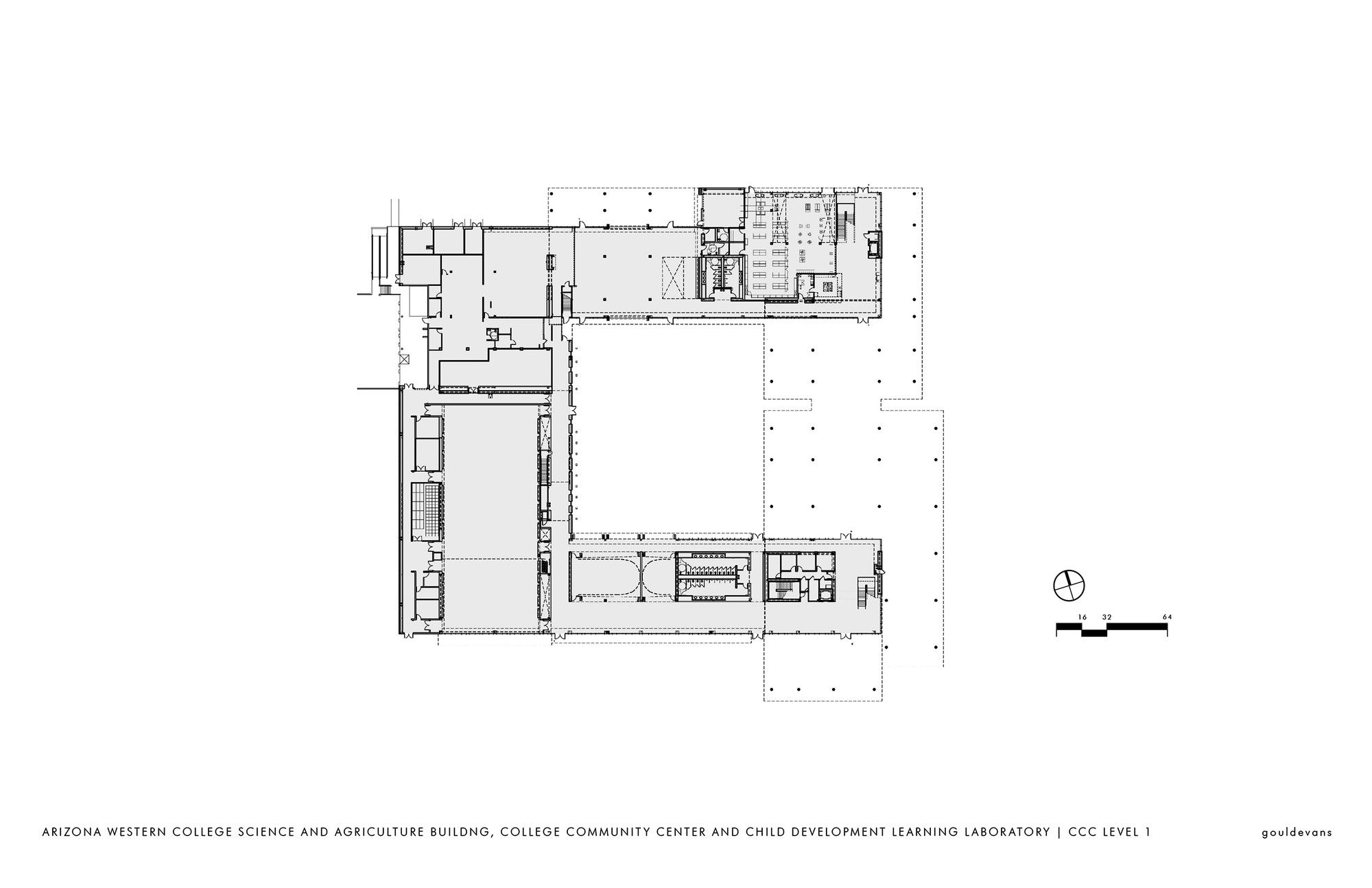
Floor Plan

One of the major victories of the project can be seen on the roof, where an array of photovoltaic panels is studied in both physics and chemistry classes. The 100kW photovoltaic system was also used as a test case for the entire campus. Based on its results, the campus developed a 5-megawatt system which will provide 125% of the campus’s required power. This effectively takes the campus ‘off the grid’, leading to a guaranteed $62 million savings on energy costs over the next 30 years.  The working system will continue to provide instructional opportunities, with energy meters that allow students to track production versus consumption.

Arizona Western College Community Building And Science + Agriculture Center

© Winquist Photography

In harnessing the abundant local light, in focusing on sustaining the land, in studying the soil, composting and giving something back to the local community; the building and its site celebrate the agriculture of Yuma. The Community Building connects students and faculty by overlapping paths and creating visual connections between spaces (both inside and outside).  The new front door is flanked with student services, a one-stop-shop, and invites in the local community as a setting for conference and cultural events. The distinctive exterior wall panels reflect the rich textures of the desert, of the intense blue sky, and the students who pass by.

Arizona Western College Community Building And Science + Agriculture Center

© Winquist Photography

Project Info:
Architects: Gould Evans
Location: Yuma, United States
Area: 175000.0 ft2
Project Year: 2008
Photographs: Winquist Photography
MEP Engineer: Bridgers and Paxton
Structural Engineer: Rudow + Berry Structural Engineers
Civil / Geotechnical Engineer: Nicklaus Engineering
Landscape Architect: GBTwo
Cost Estimation: Abacus
Data / AV / Acoustics: Convergent Technologies
Fire Protection: Sternco Engineers, Inc
Lighting Consultant: Horton Lees Brodgen Lighting Design
Lab Consultant: McLellan Copenhagen
Kitchen Consultant: Hamilton and Associates
Contractor: Pilkington Construction
Owner: Arizona Western College
Contact: Bill Smith, Director of Facilities Planning & Management
Project Name: Arizona Western College Community Building And Science + Agriculture Center

Gould Evans
Arch2O.com
Logo