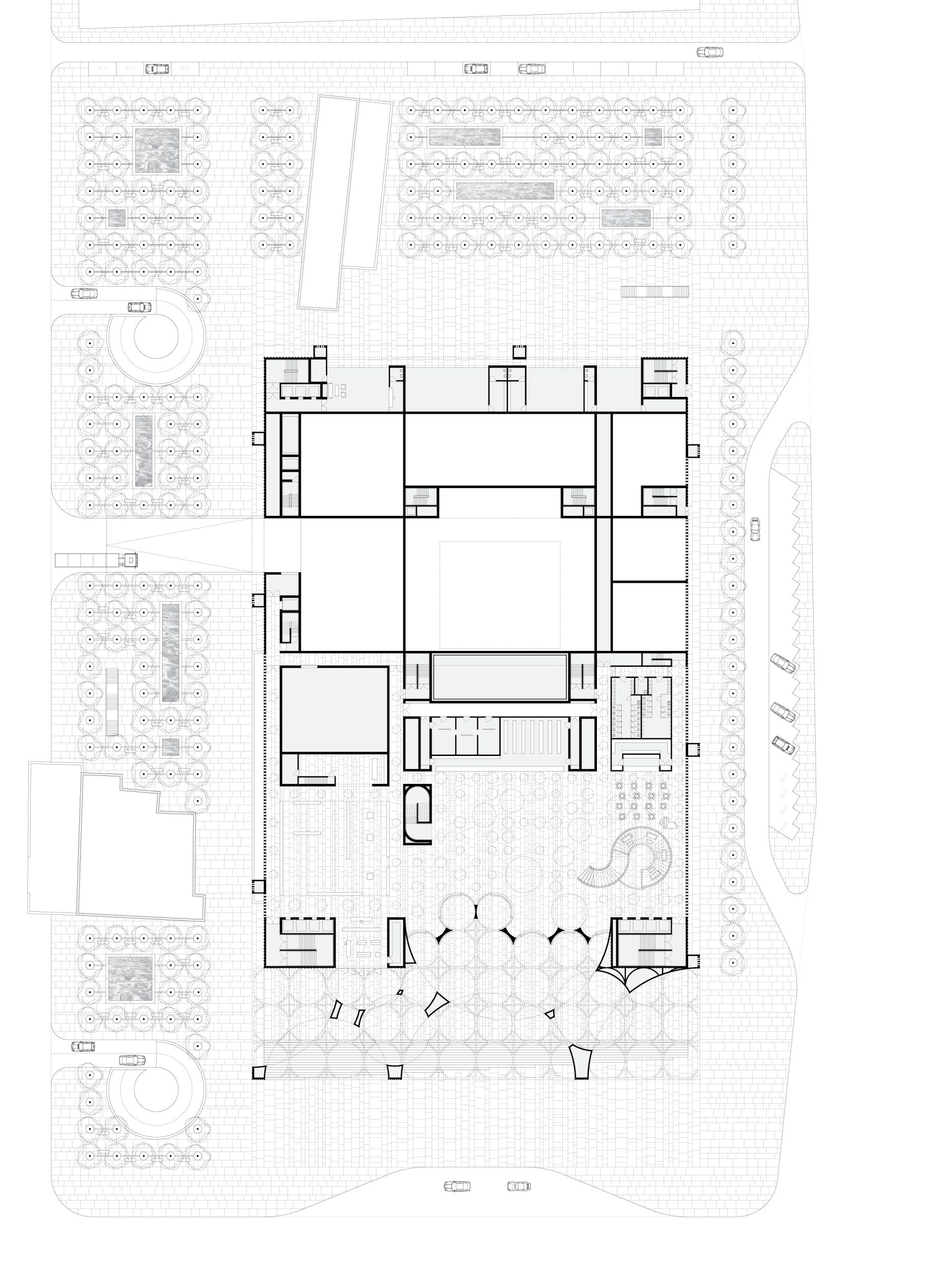
The Aleppo Opera House situated in Aleppo, the third largest city in Syria is a confluence of Mediterranean, Middle East and European cultures. The site for the project a 2-hectare stretch of land between the Great Mosque and Fountain Square of the city centre is restricted on several grounds by planning and building regulations.
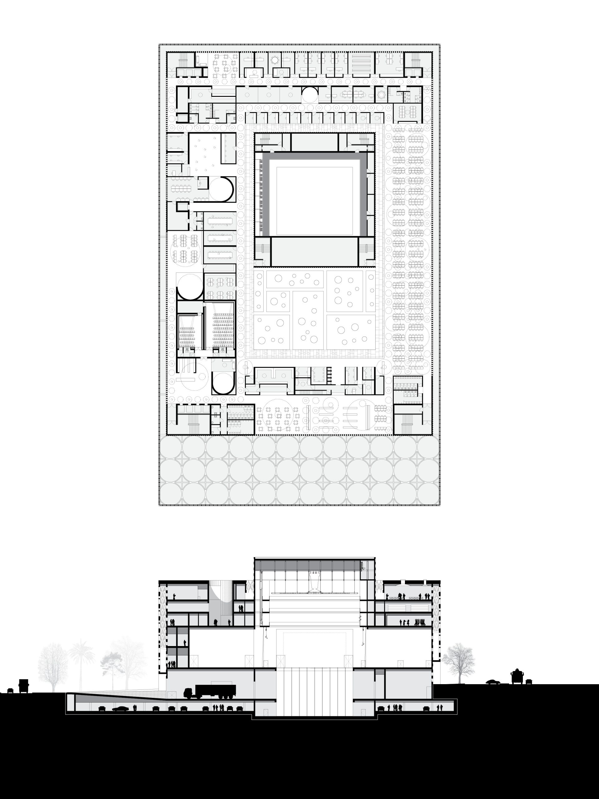
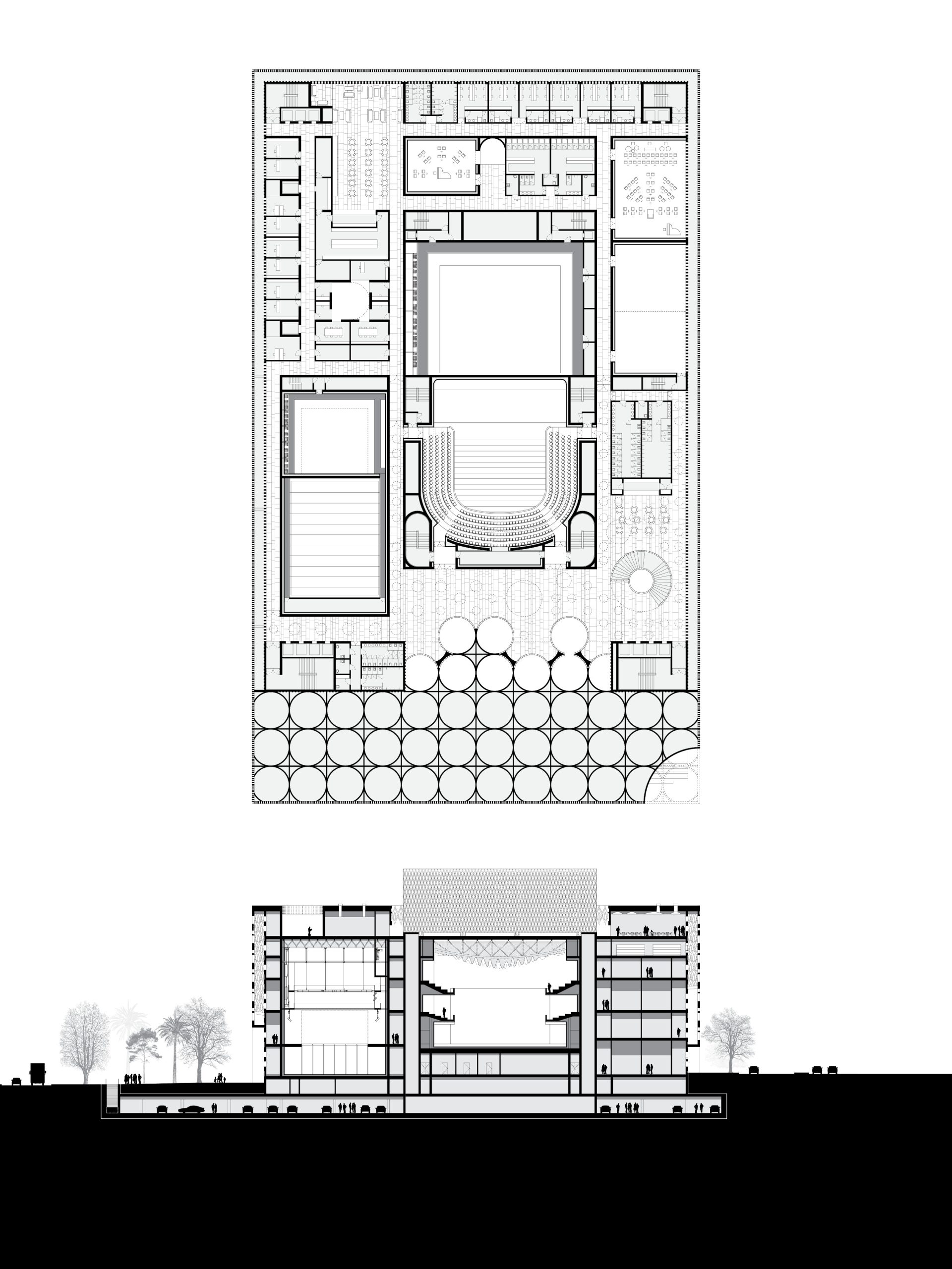
For instance the building footprint is limited to 45% of the plot area. As a result, the architects proposed a simple and compact rectangular box form. It was conceived as a structural grid of squares and cylinders intersected by arches and spherical domes.
the entry way is announced by a large open-air porticoFor the facades the architects sought inspiration from the historical Aleppo pistachio leaves and flowers in creating a semi-transparent drapery of lace that envelops the rectangular box. The archways further translate this idea of lightness and transparency expressed by the perforated veil.
The library sits on top of the opera auditorium concealing the technical parts of the theatre box. A roof top courtyard adds to the mixed-use functions of the house. Inside, the Opera is an all-time classic auditorium with stalls, boxes and multilevel balconies, with its bulkheads in an acoustic gold-leafed pattern and a large central chandelier.
Project info:
Architects: PROMONTORIO
Country: Syria, Aleppo
Year: 2010
Photographs: Courtesy of PROMONTORIO





























