Acacia Coffee & Wine Bar | A-Malysheva Studio

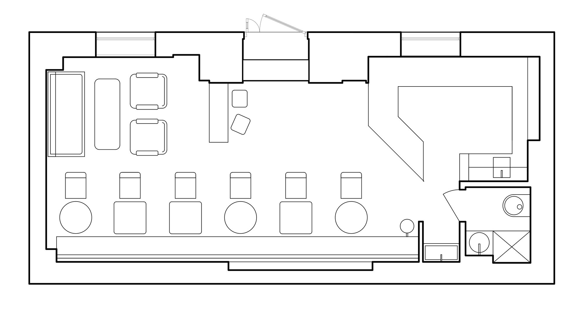
Acacia Coffee & Wine Bar is a small café and wine bar designed by A-Malysheva studio, situated in a quiet residential neighborhood of Odesa, Ukraine, just a short walk from the Black Sea. With a total area of 47 square meters, the space accommodates just 10–12 guests, creating an intimate and personal atmosphere.

© Yevhen Karev

The name Acacia is a poetic reference to the acacia trees that line many streets in Odessa, a nod to the city’s southern identity and nostalgic charm. This atmosphere of quiet familiarity is echoed in the space’s visual language.

© Yevhen Karev

The design merges raw materials and delicate detailing: exposed old brick, brushed stainless steel, green-tinted oak veneer, and soft leather come together in a careful balance of industrial sharpness and tactile comfort. A light microcement floor, paired with beige-painted walls, reflects natural light and contributes to the overall softness and calmness of the space.

© Yevhen Karev

The furniture selection is deliberate and story-driven. Vintage leather armchairs, found in the Netherlands, and 1970s chairs from Germany bring patina and texture to the minimal setting. A bold oval mirror, custom metal shelves, and simple geometric forms add a sense of rhythm and structure. Lighting by Lumina highlights the spatial transitions and materials without overwhelming the composition.

© Yevhen Karev

At the heart of the café is an open kitchen and bar made entirely of stainless steel, merging functionality with visual clarity. This single sculptural element anchors the space and invites visitors to witness the preparation process without intrusion.

Project Info
Architects: A-Malysheva Studio
Country: Ukraine, Odesa
Area: 47 m²
Year: 2024
Photographs: Yevhen Karev
Design Team: A-Malysheva studio

Isabelle Laurent
Show full profile Isabelle Laurent

Isabelle Laurent is a Built Projects Editor at Arch2O, recognized for her editorial insight and passion for contemporary architecture. She holds a Master’s in Architectural Theory from École Nationale Supérieure d’Architecture de Paris-Belleville. Before joining Arch2O in 2016, she worked in a Paris-based architectural office and taught as a faculty adjunct at the École Spéciale d’Architecture in Paris. Isabelle focuses on curating projects around sustainability, adaptive reuse, and urban resilience. With a background in design and communication, she brings clarity to complex ideas and plays a key role in shaping Arch2O’s editorial

Arch2O.com
Logo
Send this to a friend