60 Social Housing Apartments in Rive-De-Gier | Tectoniques Architects

60 Social Housing Apartments in Rive-De-Gier, The Tectoniques agency has extensive experience in building housing in eco-neighbourhoods, with a committed and ambitious environmental approach, using a specific construction protocol based on dry construction mainly using prefabricated wood components. The Rive de Gier project takes this basic approach to new heights.

1

Courtesy of Tectoniques Architects

The entire programme, composed of individual grouped accommodation units, intermediate housing and small collective housing blocks, is entirely built using dry construction methods employing 2D macro-components along with 3D modules for the sanitary and technical facilities. This construction method developed by Ossabois is known as the “5D process”.

2

Courtesy of Tectoniques Architects

A challenge in both urban and landscaping terms

3

Courtesy of Tectoniques Architects

The project site is located at the heart of an existing urban network complete with the surrounding landscaping.

4

Courtesy of Tectoniques Architects

The first challenge was to establish an open, positive connection with the six existing buildings and the neighbouring school, as well as the surrounding residential housing and the green spaces that characterise the neighbourhood.

5

Courtesy of Tectoniques Architects

The project is built on the flank of the hillside, on a site that is well exposed and has clear views with no particular inconveniences. It offered the ideal conditions in which to build a truly exemplary project. The architecture works on a variety of scales to avoid creating an imposing mass, instead producing small blocks and volumes that are broken down and split up.

6

Courtesy of Tectoniques Architects

The very light wood construction is ideal for adapting to the difficulties of building on this steeply sloping plot of land.

7

Courtesy of Tectoniques Architects

The balconies, exterior hallways and garden levels all work to assert the domestic feel of the project. They form the different stages between the public space of the street and the gardens and the private housing.

8

Courtesy of Tectoniques Architects

Dry construction using the 5D Process

9

Courtesy of Tectoniques Architects

This construction method developed by Ossabois, mainly, but not systematically, uses wood as some structures are made of:

10

Courtesy of Tectoniques Architects

-Metal: Balconies and walkways

11

Courtesy of Tectoniques Architects

-Concrete: The lift shaft for the collective apartment block

12

Courtesy of Tectoniques Architects

-Mixed metal-concrete: components for the flooring separating housing units

13

Courtesy of Tectoniques Architects

-Wooden frameworks for all other structures: facades, roofing, load-bearing walls and internal flooring within a given housing unit.

14

Courtesy of Tectoniques Architects

The project is made from two main families of prefabricated components: 2D macro-components for the “flat components”: the facades, the flooring, and all the structures that make up the envelope of the building, and 3D modules for the bathrooms.

60 Social Housing Apartments in Rive-De-Gier

Location

The former are complete and include the cladding for the facades, the frames, windows and shutters. All the interior components are prefabricated up to the vapour barrier. Lining boards are then installed on site to finish off the structures.

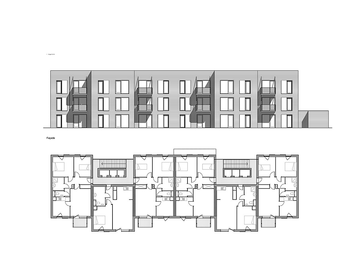
Location16

Plans

The 3D modules arrive on site “ready for use”. The only work which needs to be done on site is to connect the utilities and fit the lining boards to the 3D blocks.

Location17

Plans

As well as saving time, this process limits the risk of defects resulting from poor workmanship on site and also significantly reduces the disruption from operations on site.

Location18

Plans

Amongst the wide range of materials that can be used in building construction, wood is by far the most versatile, the easiest to work and transform and, of course, the most environmentally sound (a renewable resource which fixes carbon, consumes little embodied energy and can be easily reused).

60 Social Housing Apartments in Rive-De-Gier

Plans

The project required 370 m3 of wood in the form of solid wood (framework for the walls and facades, joist work and purlins), OSB panels to close off the wall panels and flooring, and a small number of glulam components to ensure the stability of the building on the fifth floor.

Axonometric20

Axonometric

It should be noted that the project does not use any wood on the facade. Only the framework made of lengthening jointed pine wood and the spruce shutters, both covered in an industrial glaze, constitute a controlled and limited use of wood on the external facade.

3D View21

3D View

Sustainable supplies and prefabrication

3D View22

3D View

The wood and derivative products are all sourced within Europe, and mostly from France. For over 30 years OSSABOIS has developed 2D and 3D prefabrication methods. Its expertise in this area means it can optimise the construction method to fit the planned use of the building. The 2D principle is particularly well suited to creating a flexible, open architecture. The 100% digital design is used to guide the industrial manufacturing and assembly tool. No adjustments are required during on-site assembly. Highly accurate logistics allow for just-in-time delivery which limits the volume of stock and the handling processes. The 3D bathroom and technical room modules arrive fully finished and protected on the work site. This can reduce the overall timeframe for construction by several weeks and ensures a high, consistent level of quality which also limits the amount of stock required.

Project Info
Architects: Tectoniques Architects
Country: France, Rive-de-Gier
Area: 4160 m²
Year: 201
Photographs: Courtesy of Tectoniques Architects
Fluids Engineering: Tectoniques Ingénieurs
Building Control: VERITAS
Health And Safety Coordination: Alpes Contrôles
Client: Immobilière Rhône-Alpes (groupe 3F)

Isabelle Laurent
Isabelle Laurent

Isabelle Laurent is a Built Projects Editor at Arch2O, recognized for her editorial insight and passion for contemporary architecture. She holds a Master’s in Architectural Theory from École Nationale Supérieure d’Architecture de Paris-Belleville. Before joining Arch2O in 2016, she worked in a Paris-based architectural office and taught as a faculty adjunct at the École Spéciale d’Architecture in Paris. Isabelle focuses on curating projects around sustainability, adaptive reuse, and urban resilience. With a background in design and communication, she brings clarity to complex ideas and plays a key role in shaping Arch2O’s editorial

Arch2O.com
Logo
Send this to a friend