Zoncuantla Apartments
The project is located in the mesophilic forest of the old Xalapa – Coatepec highway in terrain with privileged panoramic qualities; In this polygonal and in correspondence with the slope of the lot, the design is proposed seeking to emphasize the views for all the departments and promote the contemplation of the environment.
On 760 square meters of land, the building is displaced, leaving a green area footprint with more than 50% of the property, using rooftops as a green area and terrace. A wall of breaststroke typical of the site forms a base on which the building sits; Adopts are used in parking lots minimizing the invasion of the car.
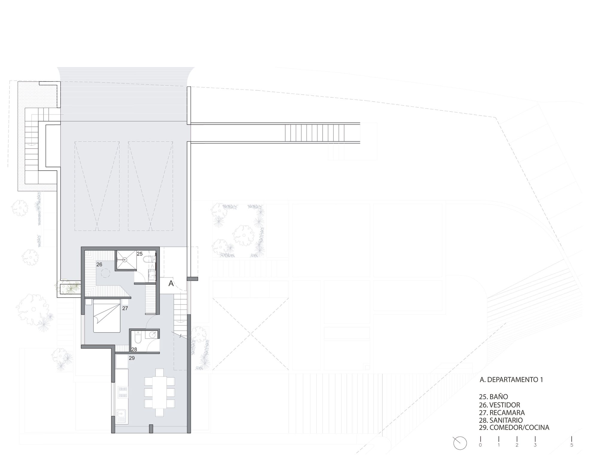
The condominium is made up of four apartments; the ground floor apartment is in dialogue with a garden that contains endemic vegetation, while the upper levels get panoramic views of the environment assisted by terraces to expand the social space. The project invites various playful tours on each of its levels, moving from public spaces to private areas.
The apartments total 470 square meters of construction, seeking to optimize space without leaving aside the quality of the different atmospheres. Plastically the project alludes to materials such as wood, adobe, clay, and earth tones.
Project Info:
Architects: RP Arquitectos
Location: Coatepeco,Mexico
Project Year: 2020
Photographs: Onnis Luque, Naser Nader Ibrahim
Manufacturers: AutoDesk, Cemex, Cesantoni, Helvex, Interceramic, Trimble Navigation
by Mohamed Hesham



























