Zhouzhuang Theate Façade Renovation | CAALADI + Practice on Earth
Zhouzhuang Theate Façade Renovation, The project is located at the entrance of Zhouzhuang, Jiangsu, and transforms a long-vacant 2003 hotel complex into the immersive theater space for Zhouzhuang Odyssey, a performance jointly produced by the Zhouzhuang Town Government and the China Oriental Performing Arts Group. The China Academy of Fine Arts Landscape Architecture Design and Research Institute led the EPC contract, with Dingzong Yu Studio as the design lead, and our team responsible for façade adaptation.
The main challenge was adapting the oversized building, originally designed as a hotel, to better fit the scale and atmosphere of the thousand-year-old water town. The design not only needed to respond to cultural symbolism, but also incorporate practical performance logistics like audience circulation and equipment access.Rather than covering the building in traditional motifs, we introduced The Curtain—a concept that works both visually and metaphorically. Two curved, curtain-like aluminum panels gently mask the original form, creating a light, open impression. The lifted entrance hints at theatrical anticipation, while the dark corridor behind forms a silhouette reminiscent of traditional Chinese gabled roofs—offering a cultural anchor to the modern intervention.
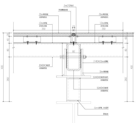
“The Curtain” had to respond to multiple factors: structure reinforcement, corridor widths, and fabrication complexity. A parametric design strategy was adopted early on to manage design changes efficiently, allowing for ongoing adjustments throughout development. Anodized aluminum panels were chosen for their dynamic reflection of natural light. The final design used 20mm-thick honeycomb panels, balancing material cost and constructability. Double-curved panel use was minimized through discretization, with smaller panels used in high-curvature areas—recalling the scale of traditional roof tiling.
Due to tight site constraints, the usual large-panel hoisting method was not feasible. Instead, installation relied on Total Station-assisted layout, steel positioning plates, and on-site fine-tuning by experienced contractors. This process enabled the accurate placement of 1,060 unique panels through a complete BIM-based workflow. To align the theater’s multi-dynastic aesthetic with local heritage, the team engaged in extensive consultations with directors, clients, and Zhouzhuang residents. The façade and entrance corridor were designed as one system—both functionally guiding audiences and embodying local spatial textures.
The corridor uses a 50×100 grid module that organizes all visible architectural elements, including walls, ceilings, twin columns, and eaves. Modular repetition and slight variation create a layered and lightweight pedestrian experience beneath the curtain. Rain was treated as a design opportunity. A hidden drainage system channels water from surface seams to eaves gutters and rain chains, feeding into pools below. On rainy days, the façade appears somber and textured; under sunlight, it shimmers in bright blue—a poetic material response to Zhouzhuang’s natural climate.
The theater spans three adjacent buildings, each with distinct façade conditions. The concept of the curtain was extended spatially, forming walkable areas like a continuous staircase behind the panels—offering room for future outdoor performances and audience interaction. A combination of four perforated aluminum panel types was used to create a soft, fabric-like effect across the surface, blending traditional reference with modern performance needs.
Project Info:
- Country: Suzhou ,China
- Area: 17000 m²
- Year: 2024
-
Photographs: Cloe Yun Wang
-
Theatre Design Institute Director: Dingzong Yu
-
Facade Designers: Haotian Wu, Yun Wang, Liang Hu, Naomi Ng
-
Design Institue Manager: Du Ruipeng
-
Architecture And Structure: Xie Xulong, Wu Limei, He Yong, Sun Tao, Yang Lixun, Wang Chaojun
-
Epc General Contractor: Kunshan Economic and Technological Development Zone Construction and Installation Engineering Co., Ltd.
-
Façade System Consultant: Suzhou Shaoxinsi Architectural Technology
-
Façade Lighting Consultant: ELA
-
Phase Ii Landscape Design: Suzhou Institute Of Landscape Architecture Design Co.,Ltd.
-
Interior Stage Design: Jin Tao Director Art Studio
-
Cultural Consultants: Hangzhou Taili Culture and Art Co., Ltd.
-
Client: Jiangsu Zhouzhuang Tourism Co., Ltd.
































