Zhonghe Sports Center | Q-Lab
Zhonghe Sports CenterÂ
Q-Lab, a design firm in Taiwan recently finished constructing Zhonghe Sports Center, located in the New Taipei City. The site is located on the corner of a large recreational park in the middle of the city. The sports center aims to provide a venue for various sports and other activities which include badminton, hockey, basketball and yoga center.
Usually the Sports centers in Taipei looked like office blocks, segregated by floors without any visual interaction with nature or surrounding thus creating a very monotonous and bland environment which does not conform to the ideals of sports.
As the main core of the building, Q-Lab developed a form which will house the majority of spaces required by the facility since budget was very strict. The 38-meter-high form has a hexagonal profile and is covered by a grey aluminum skin with a multi-storey glazing on the rear and front façade of the building so that there is visual interaction between the interior and exterior.
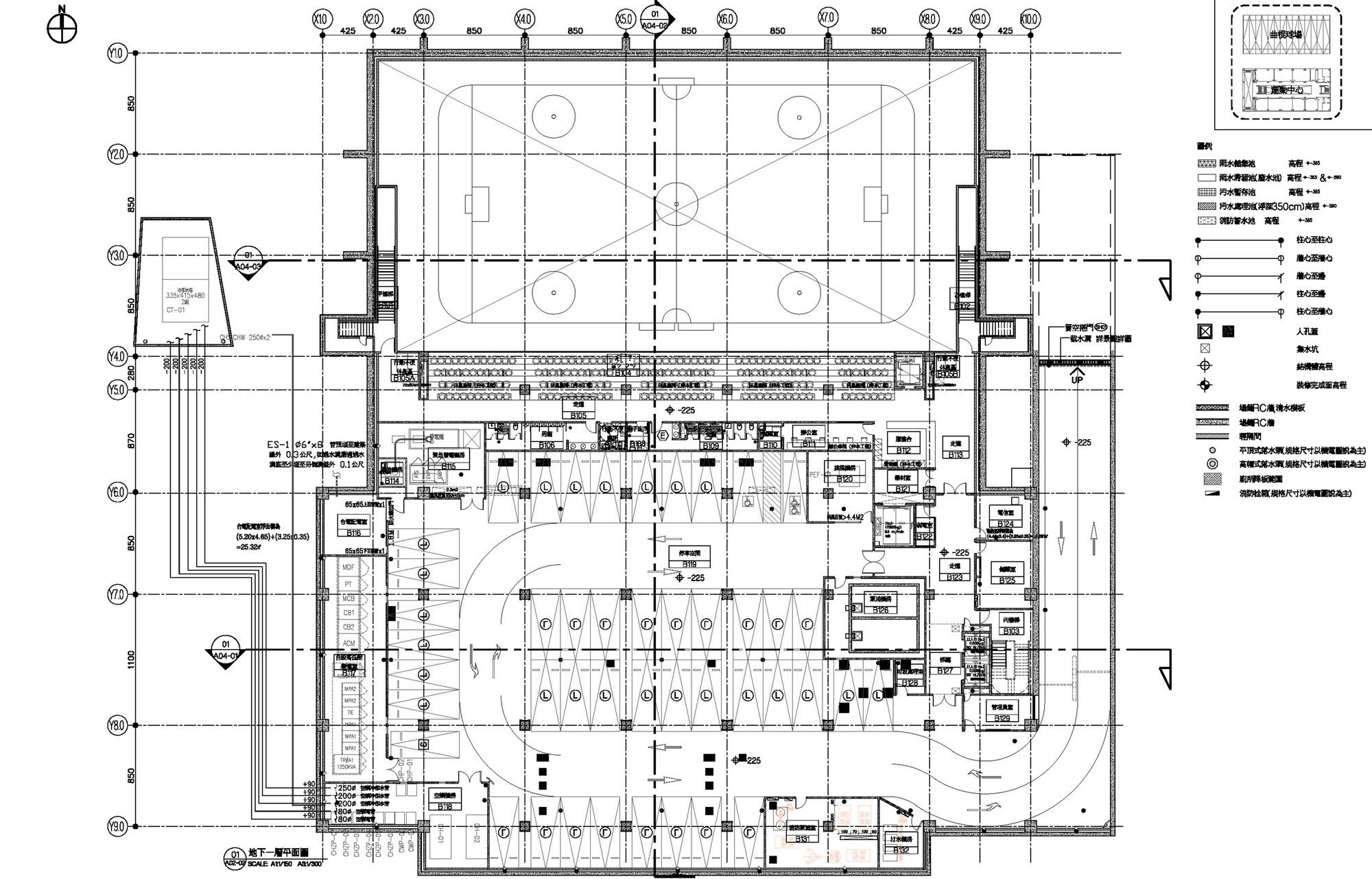
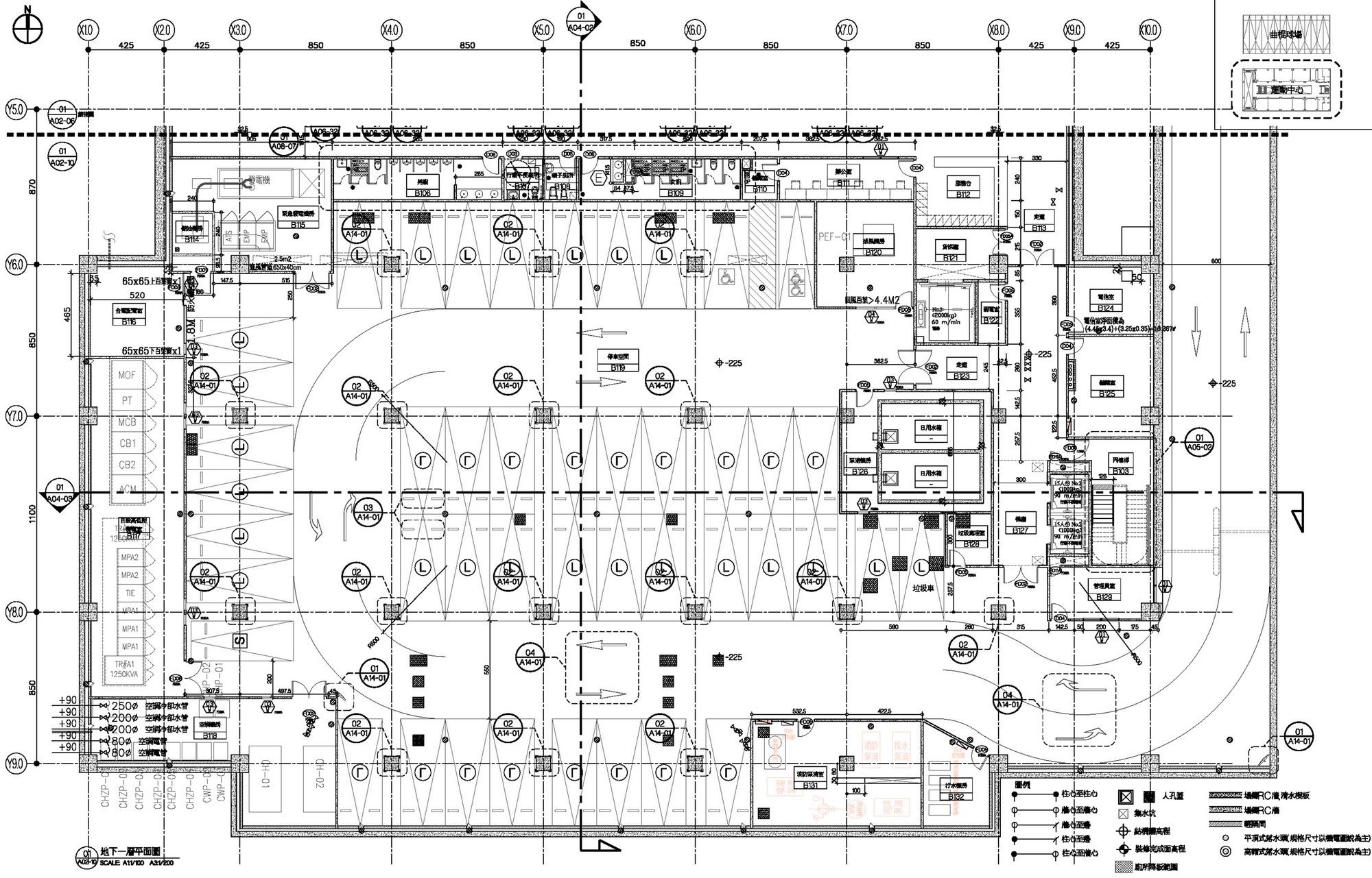
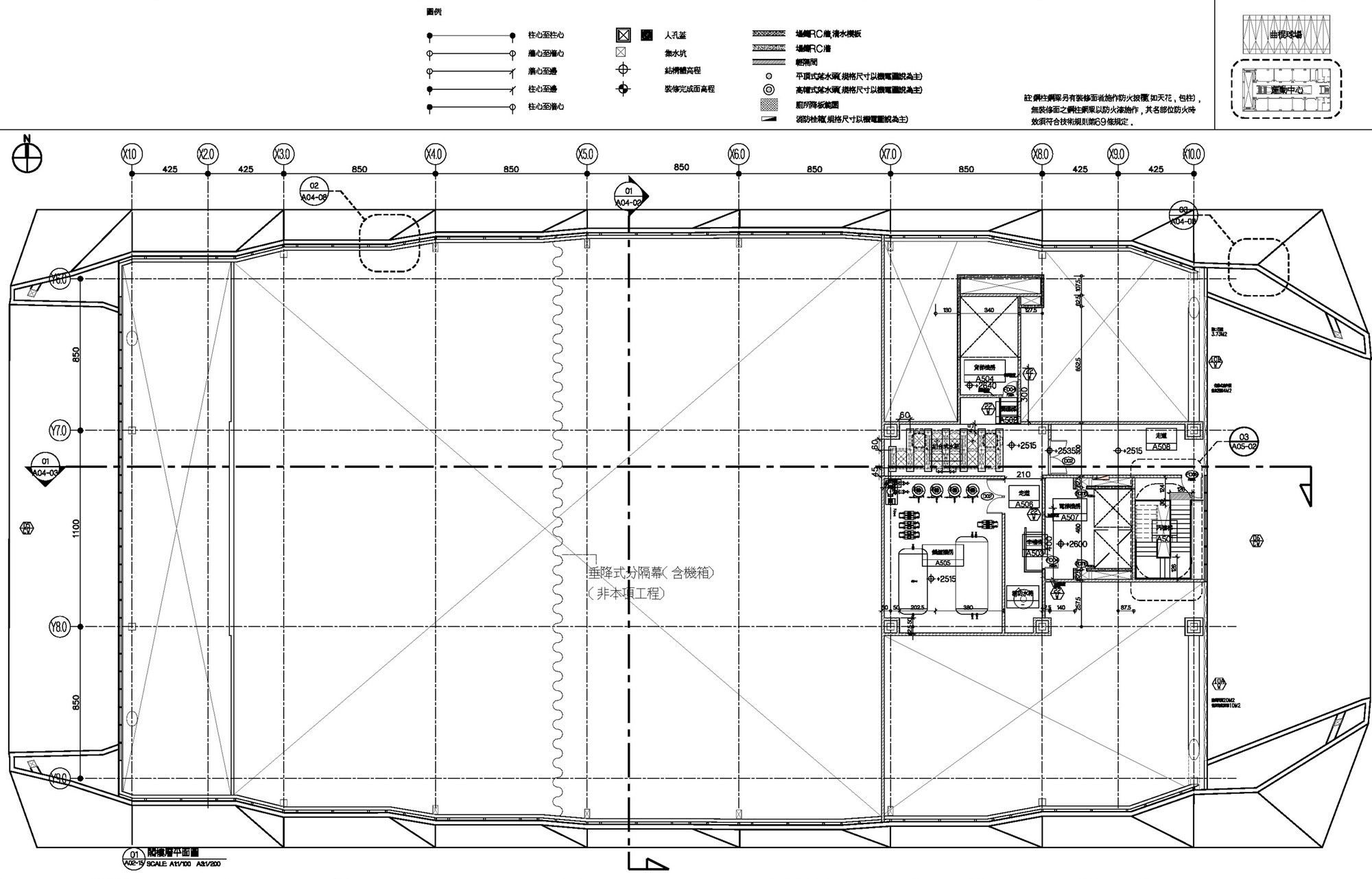
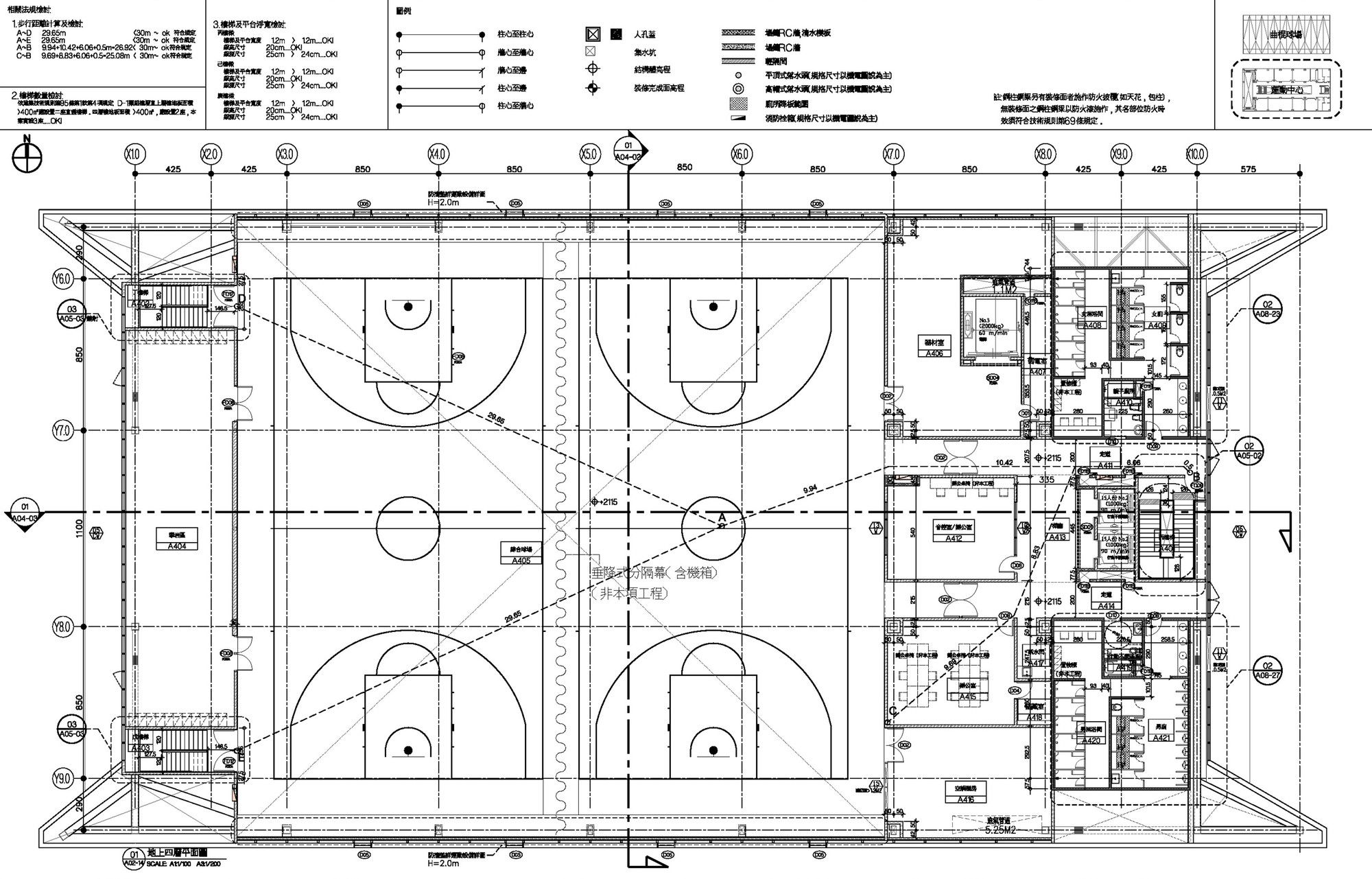
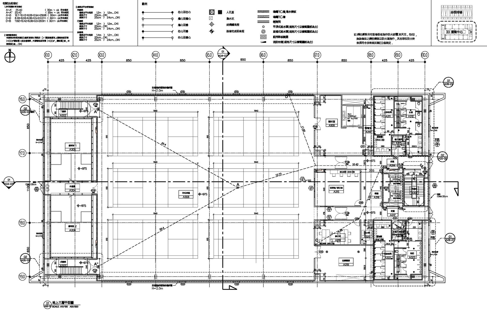
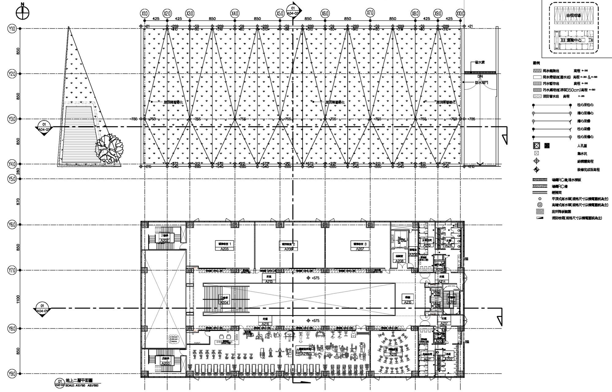
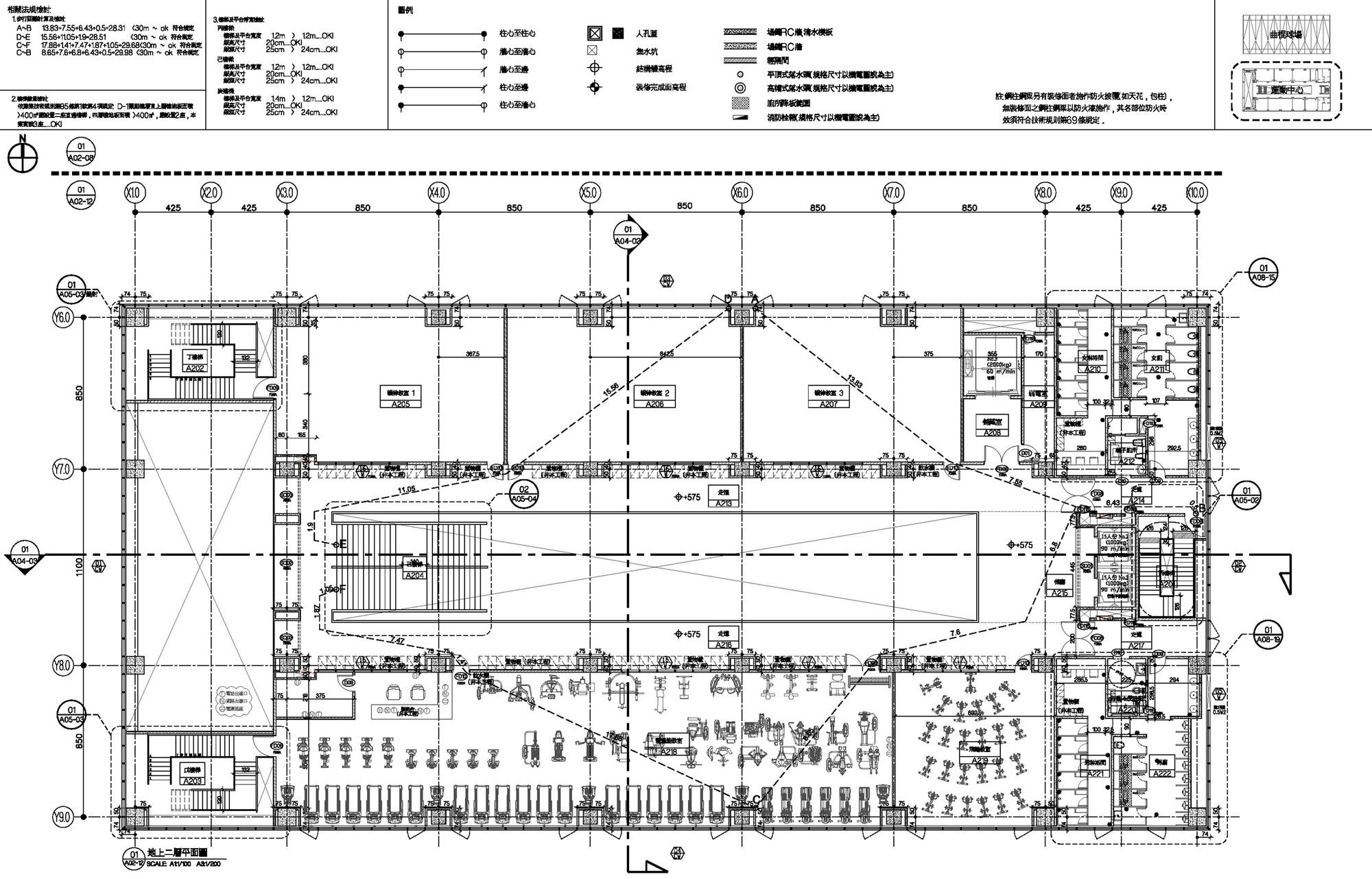
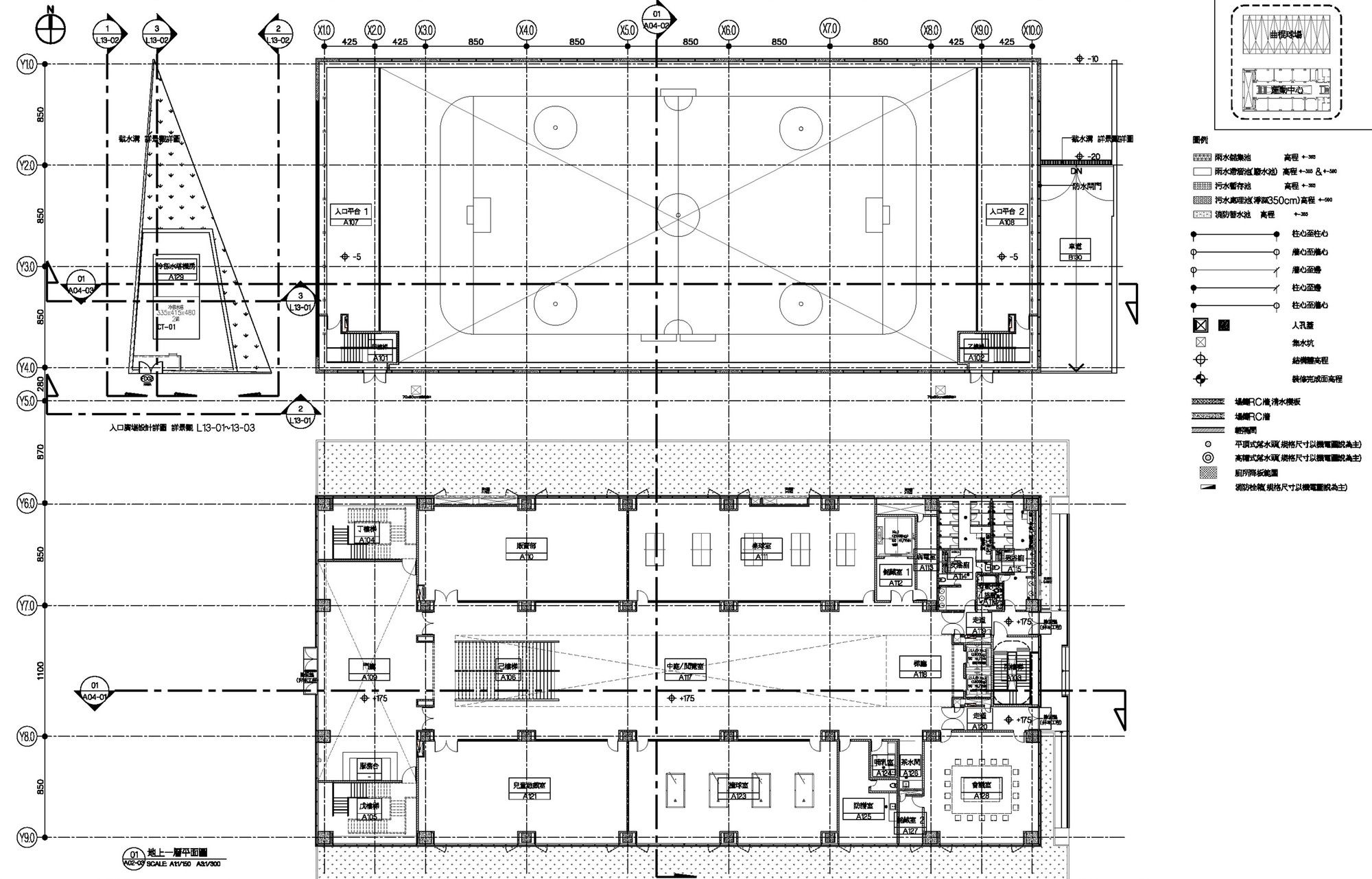
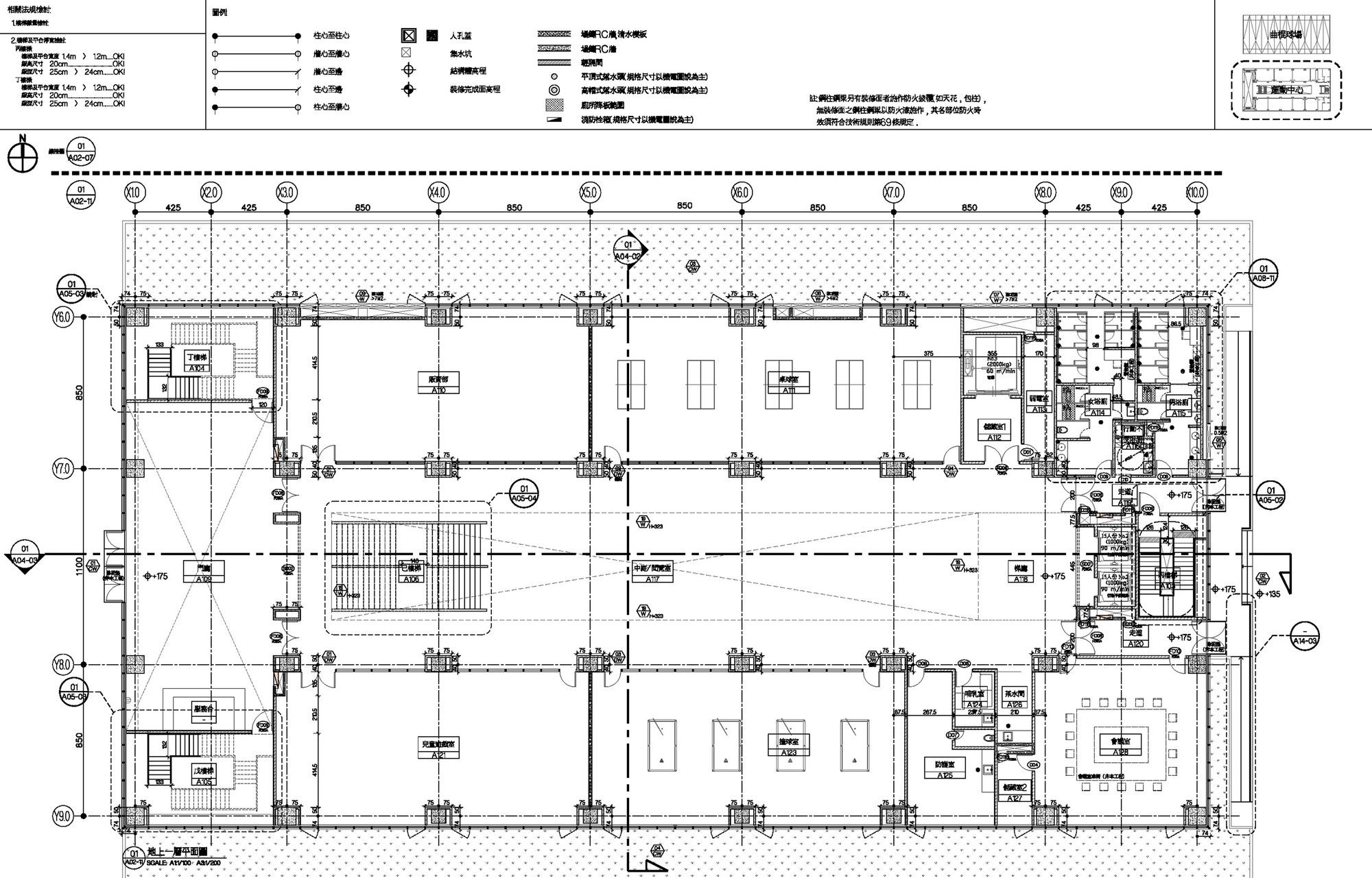
A bit bulky but compact, the main building consists of four floors. At the entrance is a double-height Atrium which acts as an Urban-living space where people could linger and wait before and after a sporting event. Accompanying this space is a corridor on Mezzanine level which leads to a fitness room, a spinning-bike room as well as three yoga rooms. The third floor has six badminton courts and two squash courts while the topmost floor has two basketball courts and a rock-climbing room.
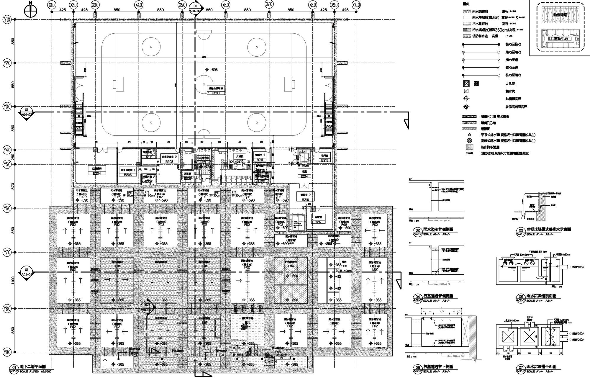
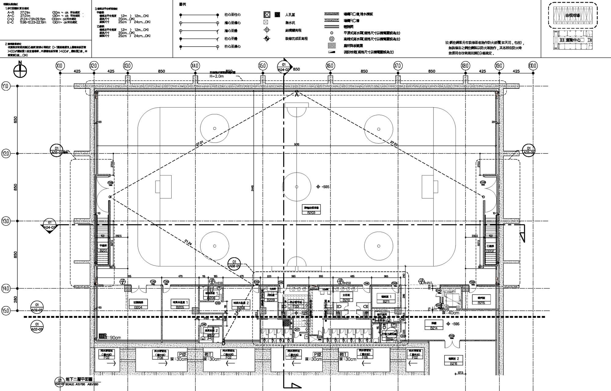
Apart from the building, there is a sunken hockey pitch in the basement. This would reduce the height of the building thus lowering the cost of the building while helping in properly managing the crowd. Acting as a roof is a grassy sand covering which complements the nearby park as well as minimizing the heat. The roof structure is triangular in profile having a series of clerestory windows under the zig-zag perimeter through which one could peep in to the hockey pitch. Apart from that, a seating of around 200 spectators is also provided around the pitch. The roof spans at an impressive size of 60 meter in length and 30 meter in width without a single column.
Regarding the structural aspect of the building, the architect explains
“We spent a tremendous amount of time finding the optimal building geometry so that all the column spacing would be equal and aligned, all the facades would be modulated and unitised, and all the structure pieces would be easily erected and assembled,”
Overall it is a nice attempt to create an unconventional building where people could gather, interact and share their passion and love for sports. Unfortunately, the lack of openings on the longer sides of the form is a bit strange and makes one doubt about visual interaction. Also the form of the building leaves a lot to be desired. On the other hand the positioning of hockey pitch arranging columns in a perfect grid is very impressive and provides stability and strength to the building.
Architects: Q-Lab
Location: Zhonghe District, New Taipei City, Taiwan 235
Principal: Sense Tseng, Borden Tseng
Design Director: Borden Tseng
Project Manager: Tunghan Wu
Project Designers: Liyu Chen, Jimmy Chang, Junyang Wang
Area: 12090.0 sqm
Project Year: 2014
Photographs: Highlite Images
Construction Company: Best Giving
Client: New Taipei City Government
Site Area: 23420 m2
By: Vaibhav Sharma



















































