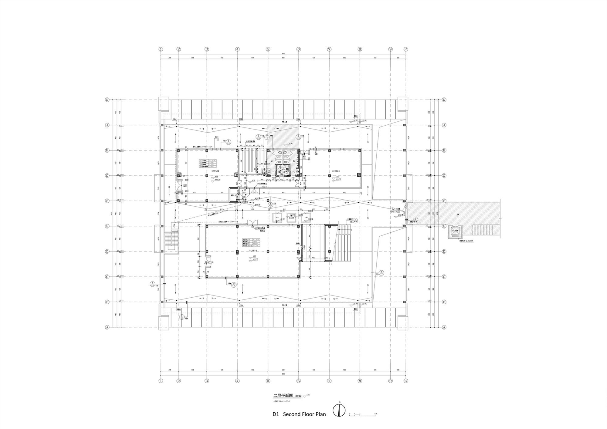
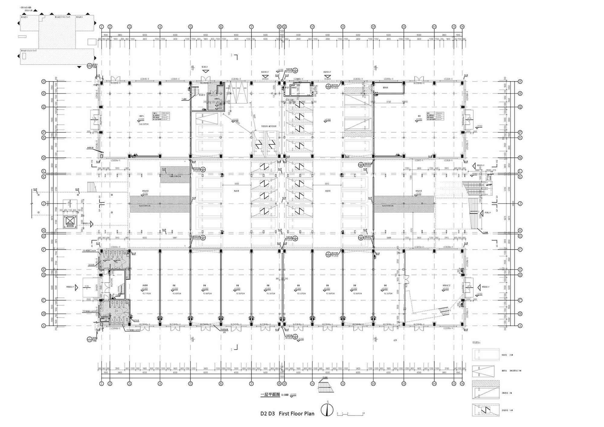
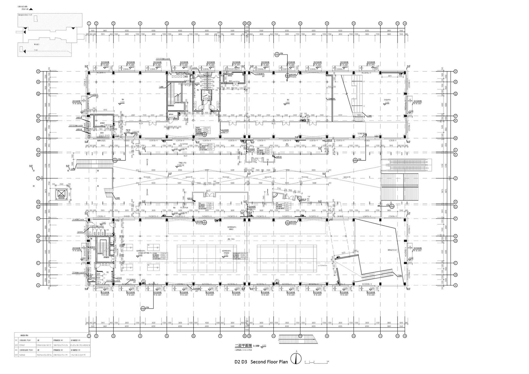
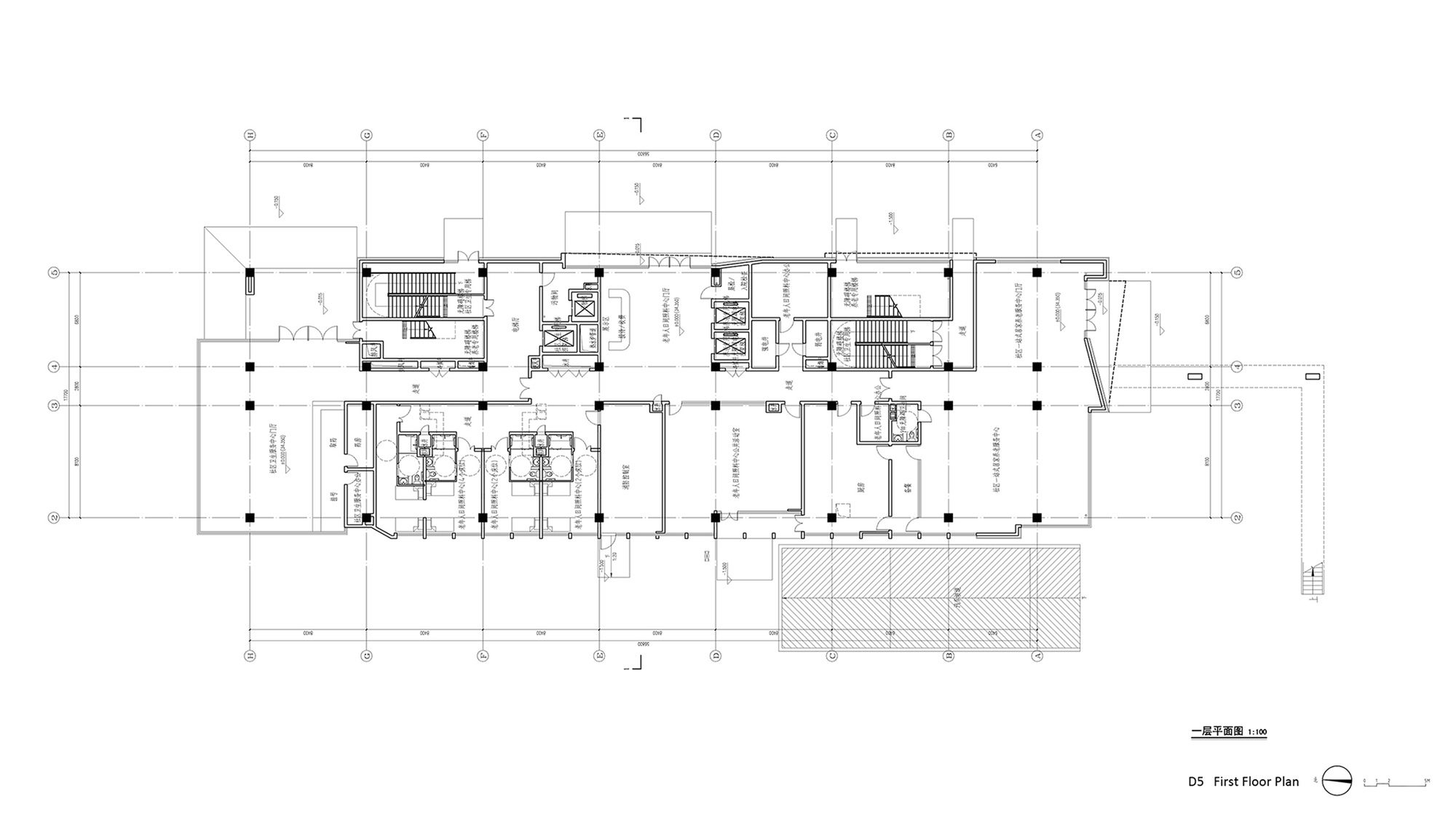
Youjia’ao Community Center, Overview – Nanjing Compressor Factory, established in the 1950s, is categorized as a Class II industrial heritage site in the “Nanjing Industrial Heritage Protection Plan”. Four factory buildings within the site have been repurposed into a community center, providing services to surrounding residents.
Protection: Preserving Urban Memory – Safety, authenticity, and reversibility are the three principles in the protection of industrial heritage: ensuring the structural safety of historical buildings, preserving and restoring their original style and characteristics, and completely separating newly constructed steel structures from the original concrete structures of factories to ensure the reversibility of the renewal process.
Renovation: Reshaping Authenticity – The Community center not only offers social services but also preserves historical imprints of the city. Authenticity at the public cultural level holds equal importance to the authenticity of functional material spaces. The “Cloud Shadow” space is a long corridor serving as the core axis of the building complex and connecting community cultural, sports, commercial, market, nursery, medical care, and elderly care functions. forming a dynamic “cloud” space. The lightweight design contrasts with the robust industrial architecture, blending old and new elements to create engaging experiences.
The large warehouse, the first industrial building in China with an “arched curved grid structure,” retains its iconic framework. We installed triangular membrane material devices – “flying birds” on the grid structure, resembling a flock of birds “flying” on the arch. Three reinforced concrete factory buildings, with skylights and roof trusses showcasing the aesthetic appeal of industrial structures. We restored and reinforced the red brick walls and partially constructed a 3-meter-high steel structure platform inside to meet functional requirements.
The medical and elderly care center, which can only be located in the area within the site that meets the sunlight requirements and allows for new construction, uses terracotta brick facade and perforated aluminum panels to harmonize with the industrial aesthetic. The abandoned circulating water pool was transformed into a sunken plaza, while the reinforced pneumatic conveying tower was relocated as a landmark. Original trees along the avenue were meticulously preserved.
Epilogue: The Interplay of Light and Heavy, the Fusion of Old and New – The transformation of industrial heritage into a community center should not merely focus on the configuration of functions. It is essential to recognize that this is an action for urban repair and improvement. The final outcome should provide a critical reflection sample. The preserved memories of the factory resonate deeply, while vibrant community life injects vitality into the historic site.
Project Info
Architects: UA GROUP
Country: China, Nanjing
Area: 22000 m²
Year: 2023
Photographs: Bowen Hou
Design Team: MA Zhujun、Pan Yifeng, Zhang Chengxin, Fan Qinfeng, Liu Wansong, Zhai Shiyang, Jian Hairui, Jin Haoji, Xu Jiahang, Liu Yingzhu, Wang Qiang
Clients: Nanjing Yihui Ju Real Estate Development Co., Ltd./ Yanlord (China) Investment Group Co., Ltd.

















































