Yongsan International Business District ‘Project R6’ | Rex Architecture
Yongsan International Business District ‘Project R6’ Rex Architecture
Designed by the New York-based REX architecture , ‘project R6’is a residential tower commissioned by Dreamhub for its re-imagining of Seoul’s Yongsan district. The tower is situated in a narrow parcel bounded by the mountain park which includes a children’s interactive spray park, rail road museum, outdoor amphitheater, Yongsan Station Esplanade and the Central Park which is adjacent to Hangang-Ro area. R6 is a strong sense of community through the creation of a central courtyard by pulling layers of the typical housing tower in opposing directions. The proposal allows the small units to maintain their size, but are stretched into favourable proportions that provide views and daylight from both sides, excellent cross-ventilation. More details from Rex Architecture comes after the jump.
YIBD ‘Project R6’ is an urban boutique residence for short-term business people, young urban professionals, and foreign residents. Due to the transience of its target users and the short duration during which they are home, R6’s unit sizes are small, including 40 m2, 50 m2, and 60 m2 residences, with the majority being 40 m2.
To meet the trends of its users and compensate for its small unit size, R6 must engender a strong sense of community and its residences must be highly attractive, providing generous views, daylight, and cross-ventilation. Maximizing daylight and cross-ventilation are also paramount to providing a highly sustainable residence.
In a standard housing tower, 40 m2 to 60 m2 units would create poorly dimensioned and oppressive residences, offering constrained views, little daylight, and poor ventilation, and community would be limited to activities at the tower’s base.
By pulling layers of the typical housing tower in opposing directions, the small units maintain their size, but are stretched into favourable proportions that provide views and daylight from both sides, excellent cross-ventilation, and a strong sense of community through the creation of a central courtyard, roof terraces, and conversation/reading/play pods.
The stretched layers are strategically positioned to guarantee unobstructed daylight into all units, and to create adequate continuity of the building’s primary structure: a concrete-encased steel mega-brace that encircles the courtyard.
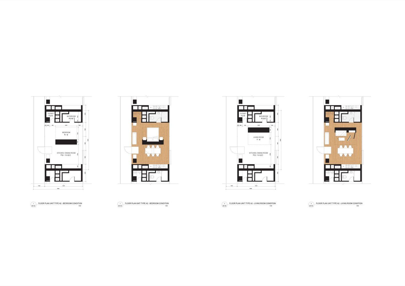
The mega-brace supports a shelf-like matrix of walls and floor slabs that define each unit. Into each shelf is inserted a wooden shell containing a bathroom on one side and a kitchen on the other. A movable wall, using standard compact shelving technology, shifts within the unit to define a bedroom (adjacent to the bathroom) or a living room (adjacent to the kitchen).The wall includes a bed, nightstands, couch, television mount, task lights, and storage.
A high-performance façade, composed of frameless IGUs, emphasizes the remarkable exterior views while interior black-out and shade roller blinds control sunlight and glare. The floor to ceiling interior façade, also composed of frameless IGUs and equipped with black-out and shade roller blinds, provides spatial relief and a sense of community while maintaining privacy. The resulting architecture provides views and daylight from both sides, and excellent cross-ventilation.
Community and spatial relief are further generated by conversation/reading/play pods extending into the courtyard. The pods playfully assume the varying widths of the walls behind such that no views are blocked and privacy in the units is maintained.
Block R6 is a narrow parcel bounded by the planned Mountain Park, including Children’s Interactive Spray Park, Rail Road Museum, Outdoor Amphitheater, and Yongsan Station Esplanade, and the central park of the planned development Zone B3, adjacent to Hangang-ro. By placing the building to the south of Block R6, all units command great views and the building forms a gateway to YIBD from Hangang-ro.
Architects: Rex Architecture











































