Yantai Chunhui Road Port Apartment | MAT Office
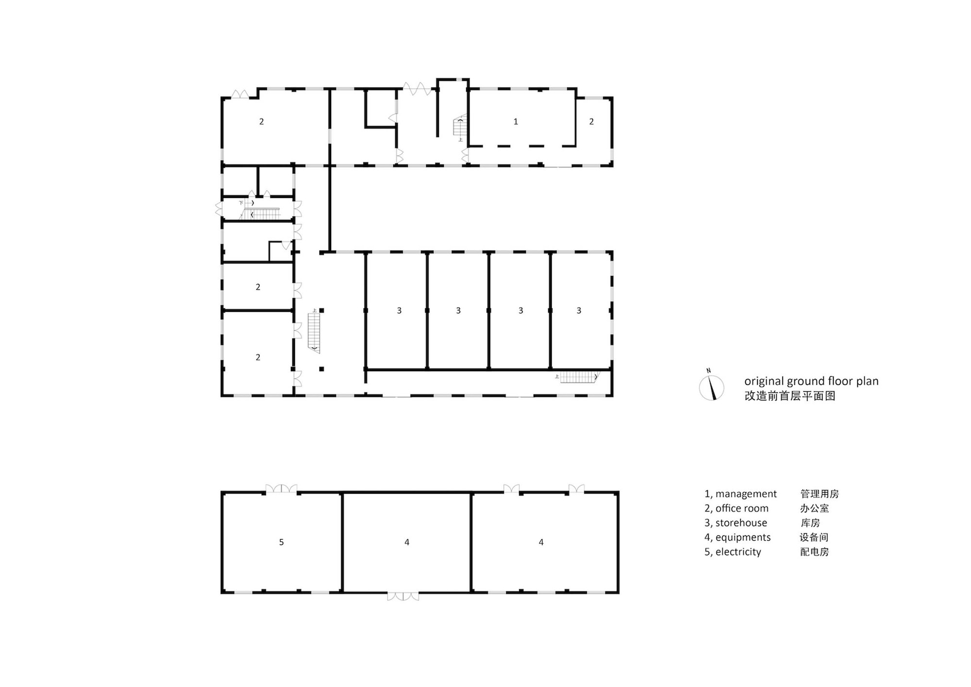
Yantai Chunhui Road Port Apartment is located in Laishan District, a place originally surrounded by educational institutions and former light-industries, there are some universities around such as Yantai University, Shandong Technology and Business University. The recent urbanization has made this area gradually become the heart of Laishan District, with most of factories moving away, leaving many vacant industrial buildings and warehouses. This project is right at the regenerating former industrial area, there were three buildings originally on the site, and the design mission was to transform the industrial space into a sharing living community for young people.
Yantai is a typical costal city of northern China, with its continuous mountains and ample sunshine. We hope to find the unique architectural feature by the perspective of city spirit, and bring the excellent quality of shared-living conditions for today’s young people.
On the north side of the site, two rows of lush sideway trees almost obscures the entire building façade alongside the road, however, the east side of the site is facing an open green space. So we boldly adjust the relationship of the façade and the surrounding environment: we make the east side as the main elevation of the apartment; the ground level lobby is also opened to the east, using as the sharing space for public activities; the east façade of the three buildings are integrated into a formative square language, as the main external character of the youth apartment.
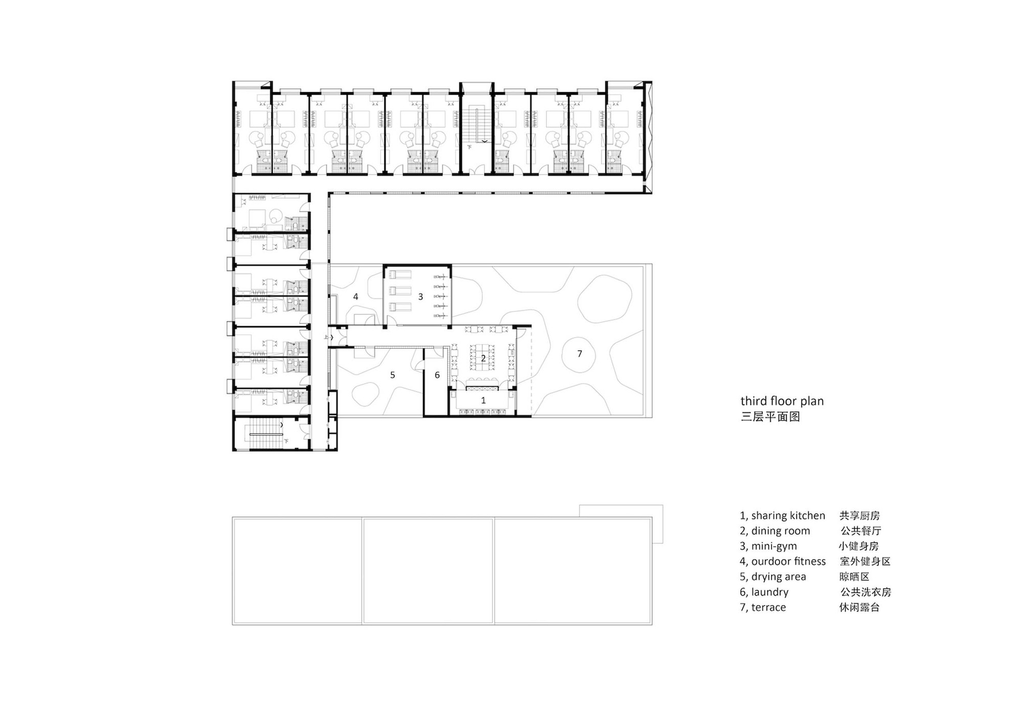
The original three-story building was limited in depth, in order to get a larger inside space; we add a new corridor as spinal transportation to connect each part of the apartment. The exterior wall of the corridor is made of artistic glass brick, and it forms a quiet courtyard together with the added lobby. On the roof of the original two-story storehouse, there are also some communal spaces for the youth apartment, such as dining, kitchen, laundry and fitness. The terrace is also faced to the open green space on the east, and it is the most popular outdoor space for social and leisure.
There are 102 rooms in total in this apartment, with 5 room types, depth from 5.6 meters to 7.6 meters. Each unit is divided into 3 or 4 modular partitions, which are entrance and bathroom, living area, sleeping area and extended workspace in sequence, each part is distinguished by different painting colors. We also introduce a LOFT type duo to the perfect height on the second floor of the original storehouse, and to separate the living area and the sleeping space. This typological and systematic arrangement enlarges the interior space in each unit, and could also increase the living condition by a clear functional zoning.
The frontality of the east elevation is consisted of simple square façade language. We make the artistic design by the angle changes of the inner wall within each square. The orange and yellow painting simulates the shadow projected on the inner walls under different angle. And on a sunny morning, there will be a rich and interesting light and shadow changes at different time. The contrast between this large-area of white and orange wall also coordinate the coastal city spirit under the blue sky.
The added corridor faces to the quiet inner courtyard, and the façade material is mainly a translucent 200mm-wide square glass brick. During the daytime, the soft light shines into the corridor through the glass bricks, and refracting the shadows of people moving; at night, the orange walls on the corridor and other public space are illuminated by artificial lighting, and the faint goose-yellow permeates into the outside, like overflowing orange juice, bringing young people a home-like warm feeling.
Landscape intervention is mainly on the treatment of the two courtyards and the terrace. The inner courtyard connected to the lobby, it is the first impression when entering the apartment, so we use white gravel and plants to create a quiet and comfort courtyard. The exterior landscape is mainly on hard paving, with different level of gray colors as the background of the building. Both courtyards and terrace are divided in island-shape patterns, attempting to bring a free and flexible landscape to the right-angled building footprint.
In The Origin of Works of Art, Heidegger mentions: “ The work is to be a work, only because the field the work opens up…to be a work means to set up a world”. For architectural works, to set up a world could also be understood as the establishment of a place. The renovation design for Yantai Chunhui Road youth apartment is no doubt experimental: it is not only a functional rearrangement to the original industrial building, but also an effort to find out the spiritual correspondence of the coastal city and the youth apartment. We adjust the relationship of the building and its surrounding city by manipulating the frontality on different directions; we create an unique and recognizable place for the youth apartment through the implantation of the artistic use of color and shadow on the façade; and we also trying to bring a sharing lifestyle and living experience for young people by the spatial design inside and outside.
Project Info
Architects: MAT Office
Country: China, Yantai
Area: 3220 m²
Year: 2019
Photographs: Kangshou Tang,Peizhi Zhang



























































