Wujiang Wedding Hall | NODE Achitecture & Urbanism
Wujiang Wedding Hall is located on the northern side of the Chuihong Scenic Area in Wujiang District, Suzhou. Its cultural roots could be traced back to the Chuihong Bridge, originally built during the Northern Song Dynasty. Over the course of a millennium, the site has accumulated a series of significant cultural landmarks, including the ruins of Chuihong Bridge, Huayan Pagoda, and the Ji Cheng Memorial Hall. Together, these elements form a historic landscape shaped by the convergence of Taihu Lake and the Grand Canal, bearing witness to the layered transformations of Wujiang’s urban and cultural history. The original project site consisted of a two-story cafe and a gateball court located at the intersection of two streets, which had been vacant for many years. The renovation preserves the existing structural framework while introducing new functions such as a marriage registration office, community-oriented commercial spaces, and public activity areas. Through this transformation, the project seeks to weave together historical context and contemporary urban life.
Design Strategy – The existing building adopts an L-shaped configuration with an enclosed massing. Visually, it forms a rigid barrier that interrupts the spatial and visual connection between the urban public realm and the Chuihong Scenic Area, making it difficult to perceive the natural landscape and spatial atmosphere of the site from the surrounding streets. Moreover, this inward-looking layout disrupts the continuity of the pedestrian network, preventing citizens from accessing the scenic area smoothly from the northern side. As a result, the accessibility and public service value of the site are significantly weakened, undermining the organic integration between the city and its natural landscape. By removing the walls at the street corner that blocked views and hindered circulation, the design creates a continuous north–south public corridor. This corridor serves not only as the main entrance to the Wedding Hall but also as a visual passage connecting the urban street to Huayan Pagoda. Through this intervention, the pagoda is revealed and visually reintroduced into the urban setting, reestablishing the spatial relationship between the city and the Chuihong Scenic Area. Through this intervention, the previously fragmented urban interface is reconnected, and the Wedding Hall becomes a mediator linking the urban public realm with the Chuihong Scenic Area.
Spatial and Functional Organization – After renovation, the building accommodates a hybrid program, integrating administrative services, public activities2, and commercial functions into a composite spatial system. The design organizes these diverse functions along a progressively unfolding circulation route, allowing spatial layers to be revealed gradually through movement and creating a rich and dynamic experiential sequence. Entering through the newly opened main entrance on the ground floor, visitors are gently guided inward by a water feature that forms an inviting forecourt. Flanking the entrance are the waiting and service areas of the marriage registration office on one side, and a café and flower shop on the other. The registration office is integrated with the waterfront landscape, enhancing the experience of visitors while they wait. Meanwhile, the café and flower shop adopt a dual-facing frontage, seamlessly connecting the street and the park, and enabling an organic integration between commercial functions and public space.
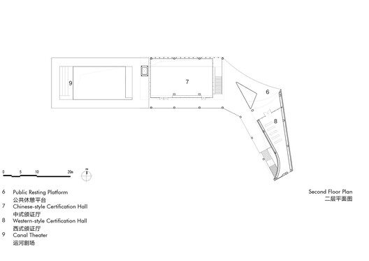
Ascending to the second floor, the circulation route branches into two certification halls—a Western-style hall and a Chinese-style hall—each offering a distinct spatial character. The western hall features a high skylight that introduces ample natural light, combined with a minimalist interior to create a serene and dignified ceremonial atmosphere. In contrast, the Chinese hall employs bamboo-steel as its primary material and uses a “borrowed scenery” strategy to draw the outdoor garden landscape into the interior. The natural texture of the bamboo interweaves with the surrounding scenery, conveying a warm, elegant, and culturally rich ambiance. The spatial layout is further extended outward. The former gateball court on the western side of the original building has been transformed into an open-air stage, serving as an entrance and gathering space on the northern edge of the Chuihong Scenic Area. Its second-floor platform connects directly with the two certification halls, forming an integrated viewing terrace where visitors can pause and enjoy panoramic views of the scenic landscape.
The architectural design adopts a dual-façade strategy of being “shielded outward and open inward.” Facing the city, the building presents a relatively restrained interface that serves as a buffer, mitigating the impact of traffic noise and urban disturbance. Toward the park, however, the façade opens up with a transparent and permeable form. Through multi-level corridors, viewing platforms, and continuous resting spaces, architectural activities are drawn into the surrounding landscape, enabling a seamless integration between built space and natural environment. This multifunctional and composite layout endows the building with vitality and attractiveness throughout the day, transforming it into an urban public space characterized by both spatial depth and human warmth. Here, administrative visitors, cultural enthusiasts, and casual tourists alike can find spaces suited to their needs and enjoy distinctive experiences. The building thus becomes a carrier of shared value, fostering a symbiotic relationship between the urban public realm and the Chuihong Scenic Area.
Space and Structure – The original building was constructed as a reinforced concrete frame structure, with a roof composed of both flat and pitched sections. To accommodate the spatial requirements of the Chinese- and Westernhalls and to create the desired visual corridor, the design selectively removed portions of the existing enclosure components and flat roof structure, while retaining the primary structural framework of the pitched roof. On this basis, an integrated redesign of space and structure was carried out, enabling the organic combination of new and old structural systems and ensuring their functional compatibility.
Chinese hall – The two primary façades of the Chinese hall face the urban street and Chuihong Park respectively. To mitigate noise interference from the street, the main functional space is covered by a large sloping roof, which rises toward the park side to maximize views of the natural landscape and introduce ample southern daylight. The newly added large sloped roof interweaves with the retained smaller original pitched roof, forming a composition of two roof forms with different inclinations and reinforcing the spatial hierarchy. Through this integration of space and structure, the design achieves a balanced expression of both lightness and stability. The Chinese hall employs bamboo-steel as its primary material, complemented by glass, to create a light and warm spatial atmosphere. The staggered bamboo-steel beams are assembled into a truss system through metal joints, achieving a balance between structural performance and aesthetic expression. With its excellent strength-to-weight ratio, bamboo-steel ensures structural stability while imparting a sense of visual lightness and agility to the architecture. Under natural light, its distinctive texture and color reveal an inherent natural beauty. Serving as both the core load-bearing element and the visual focus of the space, the material continues the spirit and tactile quality of traditional Chinese architecture in a contemporary form.
Western Hall – The design of the western hall responds to the original building’s plan, which gradually tapers from north to south. By elevating the volume, the renovation creates a space with strong vertical emphasis and a heightened sense of spatial tension. The hall adopts a flat roof and a predominantly white palette, forming an enclosed and inward-focused environment that underscores a sense of spirituality and solemnity. In terms of façade design, the two elevations facing the urban streets adopt solid white walls to enhance acoustic insulation and reinforce an inward-oriented character. On the side facing the park, high-level windows are introduced to ensure adequate daylight while maintaining a sense of spatial intimacy and subtlety. The area beneath the original pitched roof has been transformed into a corridor space, corresponding to the corridor of the Chinese hall and establishing a coherent spatial dialogue between the two. In addition, a portion of the wall facing the Chinese hall is lifted to create an articulated opening. This gesture not only enriches the expression of the façade but also serves as the main entrance to the Westernhall, establishing a direct connection between the two halls.
Open-Air Stage – The open-air stage area is transformed from the former gateball court on the western side of the original building. A continuous looped open corridor is introduced as the key element to organize and define the space, creating a distinctive scenic gallery that integrates circulation, viewing, and performance functions. The side of the stage facing the city is designed as an open entrance, marked by a pair of moon-shaped openings. This design pays homage to the Italian architect Carlo Scarpa’s concept of the double oval ring (Vesica Piscis), serving both as a spatial marker and as a symbolic gesture that resonates with the building’s function as a wedding hall. The second-floor platform of the stage connects directly with the Chinese- and Westernhalls, forming an integrated viewing space, with an additional viewing terrace overlooking the canal.
Conclusion – Within the constraints of the existing structure and site conditions, Wujiang Wedding Hall transforms a long-vacant space into a public hub that connects the city with the Chuihong Scenic Area through spatial reorganization and structural integration. With an open and welcoming attitude, the Wedding Hall becomes an integral part of the scenic context, contributing to the preservation and continuation of the historical legacy of Chuihong Bridge.
Project Info:
-
Architects: NODE Achitecture & Urbanism
- Country: Suzhou ,China
- Area: 1160 m²
- Year: 2024
-
Photographs: James Young
-
Lead Architects: Doreen Heng Liu
-
Schematic Design: Huang Zanning, Peng Bocheng, Sun Jia’ao(Intern), Han Weifeng(Intern)
-
Design Development And Construction Coordination: Zhuang Weihang, Huang Jiebin
-
Design Management: Urban Research Institue of China Vanke
-
General Design Contractor: Guangzhou Ruihua Architectural Design Institute Co., Ltd.
-
Structure Consultant: AND Office
-
Lighting Consultant: Shenglin Lighting Design (Shanghai) Co., Ltd.
-
Construction Drawing Design: Jiangsu Boson Architectural Design Co., Ltd.
-
Construction (Epc Contractor): Longhai Construction Group Co., Ltd.
-
Developer: Songling Subdistrict Office, Wujiang District, Suzhou



























































Isabelle Laurent is a Built Projects Editor at Arch2O, recognized for her editorial insight and passion for contemporary architecture. She holds a Master’s in Architectural Theory from École Nationale Supérieure d’Architecture de Paris-Belleville. Before joining Arch2O in 2016, she worked in a Paris-based architectural office and taught as a faculty adjunct at the École Spéciale d’Architecture in Paris. Isabelle focuses on curating projects around sustainability, adaptive reuse, and urban resilience. With a background in design and communication, she brings clarity to complex ideas and plays a key role in shaping Arch2O’s editorial











