World of Food | Harvey Otten + Ted Schulten

World of Food

The Southeast quarter of Amsterdam is known as one of the most multicultural communities in the world. Almost 180 nationalities live together in this suburban area that consisted of high rise apartment buildings. In recent decades the high rise flats are demolished and replaced by row houses.

Photography by © Luuk Kramer

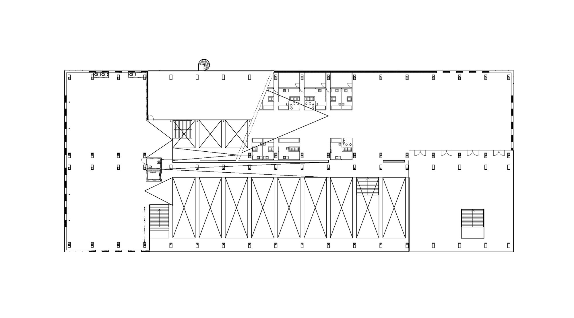
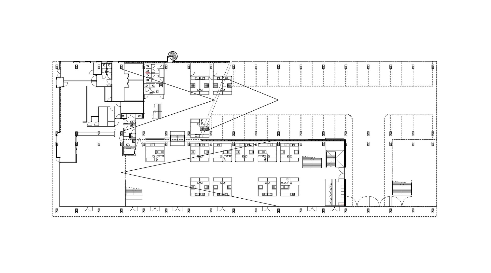
World of Food creates a new stage in the renewal of Amsterdam Southeast. It is an exotic food market in a spectacularly transformed old garage. Armenian, Egyptian and Liberian specialties are served next to the best dishes of the Thai, Caribbean and Indonesian cuisine. Even a McDrive, a student pub and an Italian espresso-corner is present.

Architects Ted Schulten and Harvey Otten took the initiative to accommodate this long long-cherished wish of the local authorities. Together with developer Lingotto an abandoned parking garage is transformed.

Finally the impressive quality of the concrete construction is visible. The garage consists of heavy concrete beams with a large open floor space. By cutting holes in the thin floor between the beams a larger height with plenty of natural light is created. Thanks to the parking floors all the slopes are connected to each other.

Photography by © Luuk Kramer

Many terraces are created, including a large terrace on the former parking deck. The old guardrail serves as a balustrade. Glass and steel from demolished identical garages is used for the refurbishment of this garage.

Within a tight budget and with minimal resources this new venue exposes the pride of one the most interesting parts of Amsterdam.

Photography by © Luuk Kramer

Architects: Harvey Otten, Ted Schulten
Location: Develstein, 1102 Amsterdam Zuid-Oost, Netherlands
Architects in Charge: Harvey Otten, Ted Schulten
Project Year: 2015
Photographs: Luuk Kramer , Klaarlicht
Developer: Lingotto ontwikkeling bv
Contractor: Plegt-Vos

Harvey Otten
Arch2O.com
Logo