Westminster Academy designed by Allford Hall Monaghan Morris, Thinking about ‘Universality of Use’ and employing connectivity and flexibility to provide pupils with a place where they take control of their own education, Westminster Academy’s open configuration of spaces is as much a creative work as it is a theatre of learning.
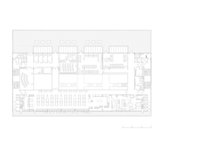
A long, rectangular block, stratified with glass panels and colored bands of terracotta tiles, rises up out of its gritty context to provide a civic landmark. The plan centers on a ground floor ‘marketplace’ which links all key communal spaces and visually connects the entire school via a full-height atrium.
Within the building, a robust material palette of unfinished concrete, timber, and painted blockwork combines with super scaled graphics and artworks to foreground the learning environment and encourage exhibition and display. This Stirling Prize-shortlisted city Academy accommodates 1175 students and 128 staff. The local community, who were extensively consulted with during the project, has access to much of the school and its sports facilities.
Project Info:
Architects: Allford Hall Monaghan Morris
Location: Westminster Academy, 5601 North Federal Highway, Fort Lauderdale, FL 33308, United States
Project Manager: Capita Symonds
Area: 141000.0 ft2
Project Year: 2007
Photographs: Timothy Soar, Matt Chisnall
Project Name: Westminster Academy
Lead Consultant: Building Design Partnership
Main Contractor: Galliford Try
FF&E Consultant: Building Design Partnership
Graphic Designer: Studio Myerscough
Quantity Surveyor: Davis Langdon
Structural Engineer: Building Design Partnership

















