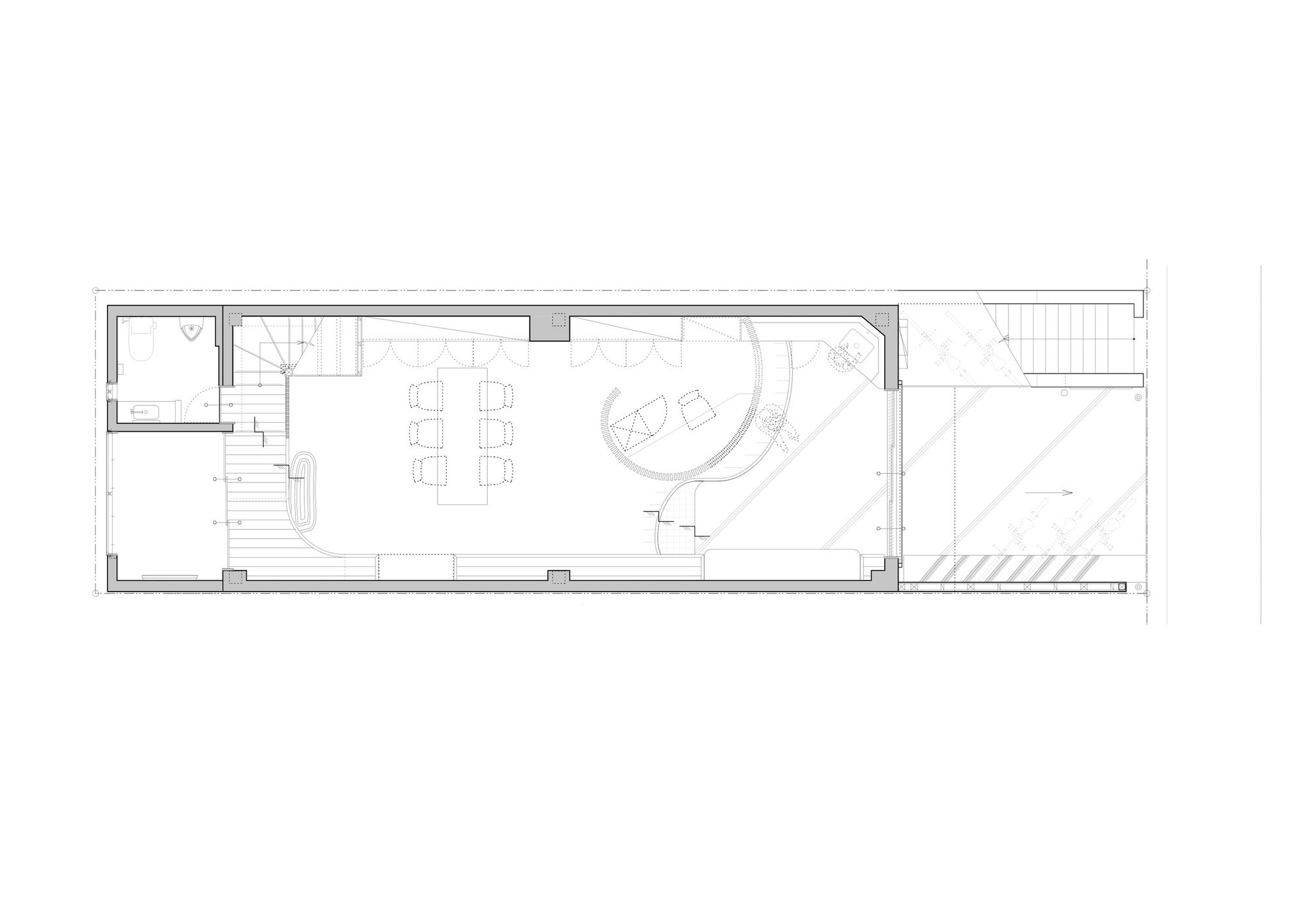
WA House, Plans for the renovation of a space that used to be a parking lot into offices. Kyoto has a long history of creating “mise-tana” and “machi-tana” to connect with the city, and it seems that the ground floor has always been regarded as a special place. In designing the building, we considered the continuity from the ground to connect the inside and outside of the building with the sidewalk so that the “openness and locality of the ground floor” would be connected.
The space is intended to connect spaces gently and segmentally without dividing people’s places. The louver wall, which serves as an office and a place to welcome visitors, is designed to create a space that gently connects the earthen floor area and the office area without dividing them.
The louvers and top and bottom stile are elliptical in shape to create a flat expanse created from an even shape. The louvers and top and bottom stile are elliptical in shape to generate a flat expanse born from an idiosyncratic shape.
Since there was a request to build only with ordinary materials, the walls and The approach to the floor and the earthen floor are all washed out with a mixture of Nambu stone, and the ceiling is painted with EP on Japanese paper cloth. This kind of materiality created by human hands is an element of architecture that attracts people. We believe that the sense of materiality created by human hands is an element of architecture that attracts people’s hearts.
Project Info
Architects: ujizono architects
Country: Japan, Kyoto
Area: 56 m²
Year: 2023
Photographs: Shohei Yoshida
Collaborators: Hirasan Corporation, Masanori Hirayama




















Sophie Tremblay is a Montreal-based architectural editor and designer with a focus on sustainable urban development. A McGill University architecture graduate, she began her career in adaptive reuse, blending modern design with historical structures. As a Project Editor at Arch2O, she curates stories that connect traditional practice with forward-thinking design. Her writing highlights architecture's role in community engagement and social impact. Sophie has contributed to Canadian Architect and continues to collaborate with local studios on community-driven projects throughout Quebec, maintaining a hands-on approach that informs both her design sensibility and editorial perspective.
