Inserted on one of Manaus’s main avenues, VIPE 201 emerges as an internal bet by the Vipe Arquitetura office, aiming to contribute to the city with a building of innovative language and a careful approach to thermal comfort. The project intends to establish a balanced relationship of the construction with time, embracing patina and avoiding aesthetic control.
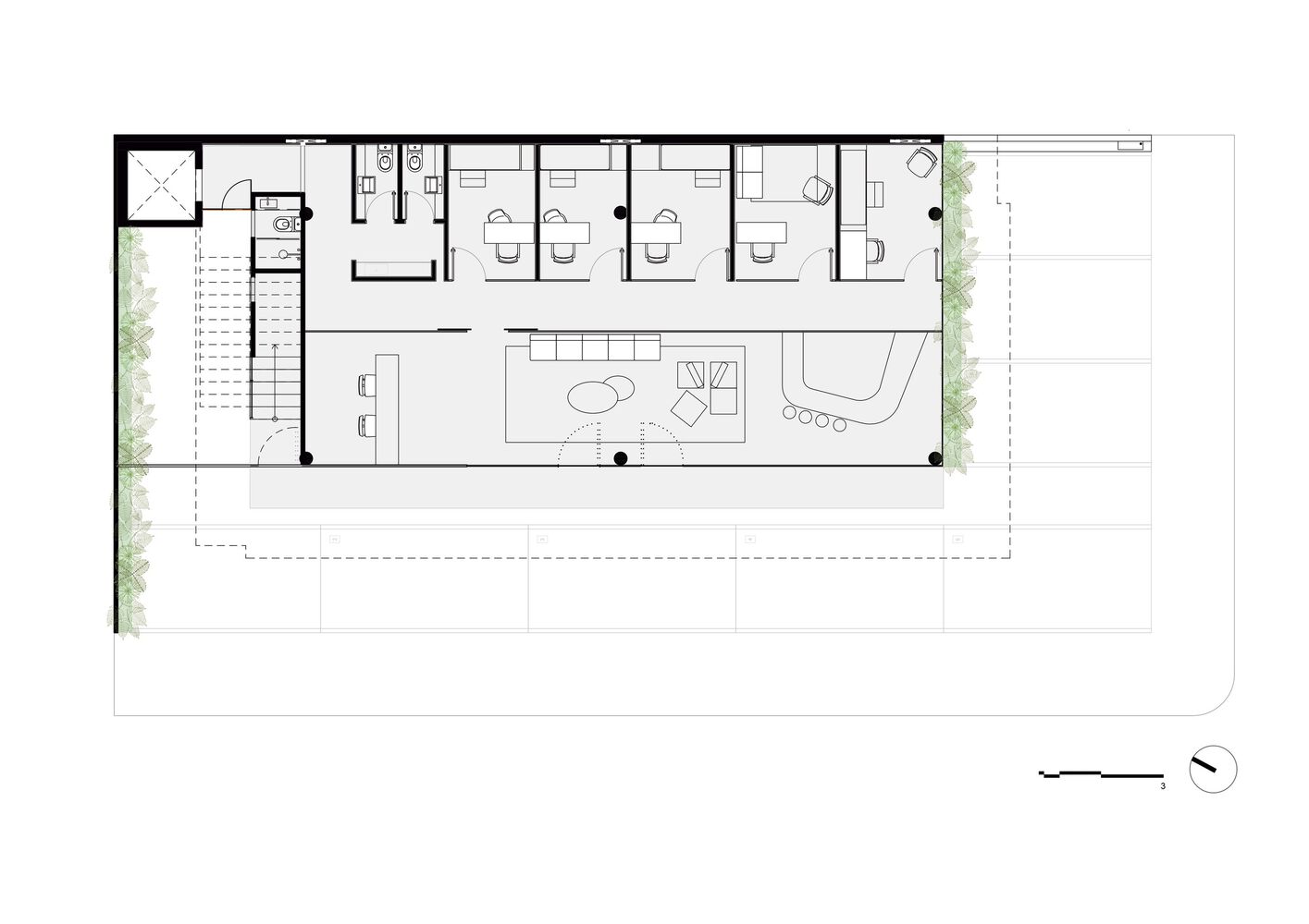
It works with materials that adapt to circumstances, where, pragmatically, this unpredictability becomes an inherent element of the object, consequently reducing maintenance frequency. The construction consists of precast concrete pieces, corten steel panels, and prominent vegetation vertically supported on its facades, ensuring elegant architecture and rapid project execution. The building is structed with only six pillars and three flat prestressed slabs. The largest façade facing west requires protection provided by large prefabricated brise-soleils, shading sunlight, and enabling the use of recessed glass panels. These planes define internal spaces, yet their transparency articulates constant visual permeability between inside and outside, the building and the city. Two openings at the ends of the slab allow sunlight to reach the greenery in planter boxes and brise-soleils, while domes ventilate bathrooms and solar panels enhance building energy efficiency. The commercial use program includes a reception, waiting hall, café, commercial rooms, and restrooms on the ground floor with double-height ceilings, plus an external restroom and storage. The first floor accommodates nine other commercial rooms, waiting areas, and restrooms.
The office is located on the second floor, featuring a reception, lounge, workstation, meeting room, pantry, restrooms, bathroom, storage, and an external relaxation space. VIPE 201 allows multiple programs, floor plans and layouts due to its open plan. Finally, enriching the urban landscape further, the greenery of tumbergias, guaimbês, syngoniums, jaboticaba trees, dinheiro-em-penca plants, and yellow alamandas are present and communicate with existing trees in the surroundings.
Project Info:
























