Villa Yume house is a distinctive residential project located in the exclusive Papagayo Peninsula of Costa Rica, designed to harmonize modern architectural expression with the dramatic natural beauty of its site. As part of the broader context of high-end developments in this pristine coastal region, Casa Yume stands out for its bold geometries, refined spatial composition, and a deep sensitivity to its surroundings. The house embodies an architectural narrative that draws from the terrain and topography while embracing expansive views of the Pacific Ocean.
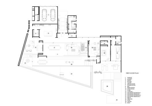
A defining feature of Casa Yume is its site design and the way the architecture responds to the landscape. The house is positioned on a sloped plot overlooking the horizon, and the design takes advantage of this topography by creating a seamless visual and spatial connection between indoor and outdoor areas. The project is anchored by a geometric structure whose spatial organization is informed by a single strong diagonal axis. This diagonal becomes the spine of the project — a conceptual and physical gesture that cuts through the plan and defines the composition of the main volumes.
The diagonal is not merely a graphic or structural device; it organizes the project’s circulation and demarcates the separation and fluid transition between public and private zones. Most significantly, it opens the social areas — the living room, dining area, and kitchen to a vast 17-meter span that creates a completely unobstructed view toward the ocean. This impressive cantilevered opening allows for panoramic visual access from nearly every part of the house’s social core, enhancing the indoor-outdoor living experience and maximizing natural light and ventilation.
Project Info :















