Villa Dellago is a private villa located in the natural landscape of the east shore of Garda Lake, in Italy.
The morphology of the area becomes the matrix for the project guidelines: the building is based on a natural terrace selected in the topography of the site, parallel to the lake, on a compact area to minimize excavation and earthworks.
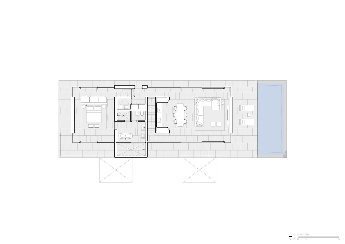
It is a one-storey pavilion where the living area is on one end and the Master Bedroom on the other. The service spaces are in the center, where a staircase descends into the underground areas that have been designed from a careful study of the natural slope. Two large patios, opened towards the lake, allow the rooms on this lower level to enjoy the view and natural light, and they are shaped on the slope of the terrain.
The elevations of the main floor are largely glazed: all the rooms have a wide view of the lake and the pavilion becomes a light and permeable object. The flat roof has a cantilever on all 4 sides and the volume slightly exceeds 3 meters in height: in this way there is the perfect balance between light and shadow and the house is completely integrated into surrounding vegetation. The roof surface has been thought with the same care as an elevation: the technical components have been hidden and the surface has been covered in light gray ceramic material.
The unique closed part of the façade is the master bathroom on the main level, which however enjoys the light coming from the open-air patio that extends the interior space to an external wet area. This whole part is clad in wood plastic composite slats, whose oak finish brings to mind the tones of the natural landscape in which the building is located. A white aluminum frame at the base of the pavilion marks the entire perimeter and, at the south side of the platform, a swimming pool is designed inside the extension of the building’s outline.
The interiors include fully custom-made fixed furniture, like the oak “boiserie” that covers the walls, the marble vanities in the bathroom or the open kitchen that integrates various technical equipment into its structures. The furniture floats in the rooms to intensify light and and contemporary appearance of the interior. Privacy is managed through the use of retractable roller blinds which, perfectly integrated on the perimeter of the internal ceiling, could filter the view from the outside.
The garden is designed with lines that follow the levels of the land, and the vegetation depends on the orography of the site: the lawn on the flat terraces, specific essences for the most significant slopes. Native Olive trees and tall pre-existing cypresses have been preserved and enhanced in the composition of the project: the vegetation is as important as the architecture for the customer’s comfort.
Project Info:
-
Architects: JM Architecture
- Country: Torri del Benaco, Italy
- Area: 250 m²
- Year: 2023
-
Photographs: Jacopo Mascheroni
-
Manufacturers: ECLISSE, Flexform, Kaldewei, AQUAPANEL, B&BItalia, Casalgrande Padana, Flaminia, Gaboli, Lombardo, Metra, Oty Light, Silent Gliss, WOODN
-
Landscape Design: Frassinago
-
Category: Houses
-
Design Team: Jacopo Mascheroni, Diego Magrì, Bartolomeo Zanotti, Mattia Santambrogio






















Anastasia Andreieva is an accomplished Architectural Projects Editor at Arch2O, bringing a unique blend of linguistic expertise and design enthusiasm to the team. Born and raised in Ukraine, she holds a Master’s degree in Languages from Taras Shevchenko National University of Kyiv. Her deep passion for architecture and visual storytelling led her to transition from translation and editorial roles into the world of design media. With a keen eye for conceptual clarity and narrative structure, Anastasia curates and presents global architectural projects with precision and flair. She is particularly drawn to parametric and digital design, cultural context, and emerging voices in architecture. When I’m not analyzing the latest architectural trends, you’ll probably find me searching for hidden gems in cityscapes or appreciating the beauty of well-crafted spaces. After all, great design—like great connections—can be found in the most unexpected places. Speaking of connections, because architecture isn’t the only thing that brings people together.







