VIKASA Headquarters | Enter Projects Asia

VIKASA Headquarters

Enter Projects Asia Design Nature-Inspired Headquarters for Vikasa Bangkok – A wellness brief for the internationally acclaimed yoga brand, completed January 2020. Enter Projects Asia have completed their design & construction for the headquarters of Vikasa. This is the yoga brand’s anchor building in Bangkok, symbolizing the Vikasa ideals around health, wellness and evolution.

Photography by © Ed Sumner

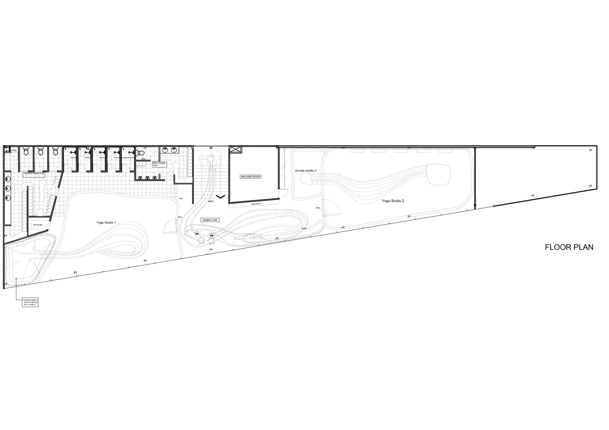
The 450sqm space is comprised of a series of free-form yoga pods – two public and two private pods with a lobby area and luxury bathrooms integrated seamlessly into the layout.  Floor-to-ceiling windows were designed across the entire front façade to flood the space with natural light, whilst allowing the pods to remain private.

Photography by © Ed Sumner

Using their signature geometries, Enter Projects Asia facilitated the fusion of 3D technologies with local Thai craftsmanship to bring nature to an urban context. All elements of the project were made from natural, local materials: Thai hardwood, rattan, palm leaves and local black slate.

Photography by © Ed Sumner

Patrick Keane, Design Director at Enter Projects said, “We sought to create a space which mimicked the natural world and reflected the never-ending cycle of life. The result is a space of captivating calmness, cloaked in quiet contentment – an oasis of tranquility amongst the chaos of Bangkok .”

Photography by © Ed Sumner

Project Info:
Architects: Enter Projects Asia
Location: Bangkok, Thailand
Area: 450 m²
Project Year: 2020
Photographs: Ed Sumner
Manufacturers:  HafelePANDOMOAutomatic Locker Company LimitedNorthern Lights EnterpriseThai Stonetrade

 

Enter Projects Asia
Arch2O.com
Logo