Vakko Headquarters and Power Media Center | REX
Vakko Headquarters and Power Media Center
Despite the mix of the existing concrete structure with the new additions and the complex inner core (dubbed the “showcase”), the exterior of the building is read as a whole. The structural “X” of the glass panels on the facade break the monotony of the box on the outside, contrasting with the mirror like finish of the volume on top.
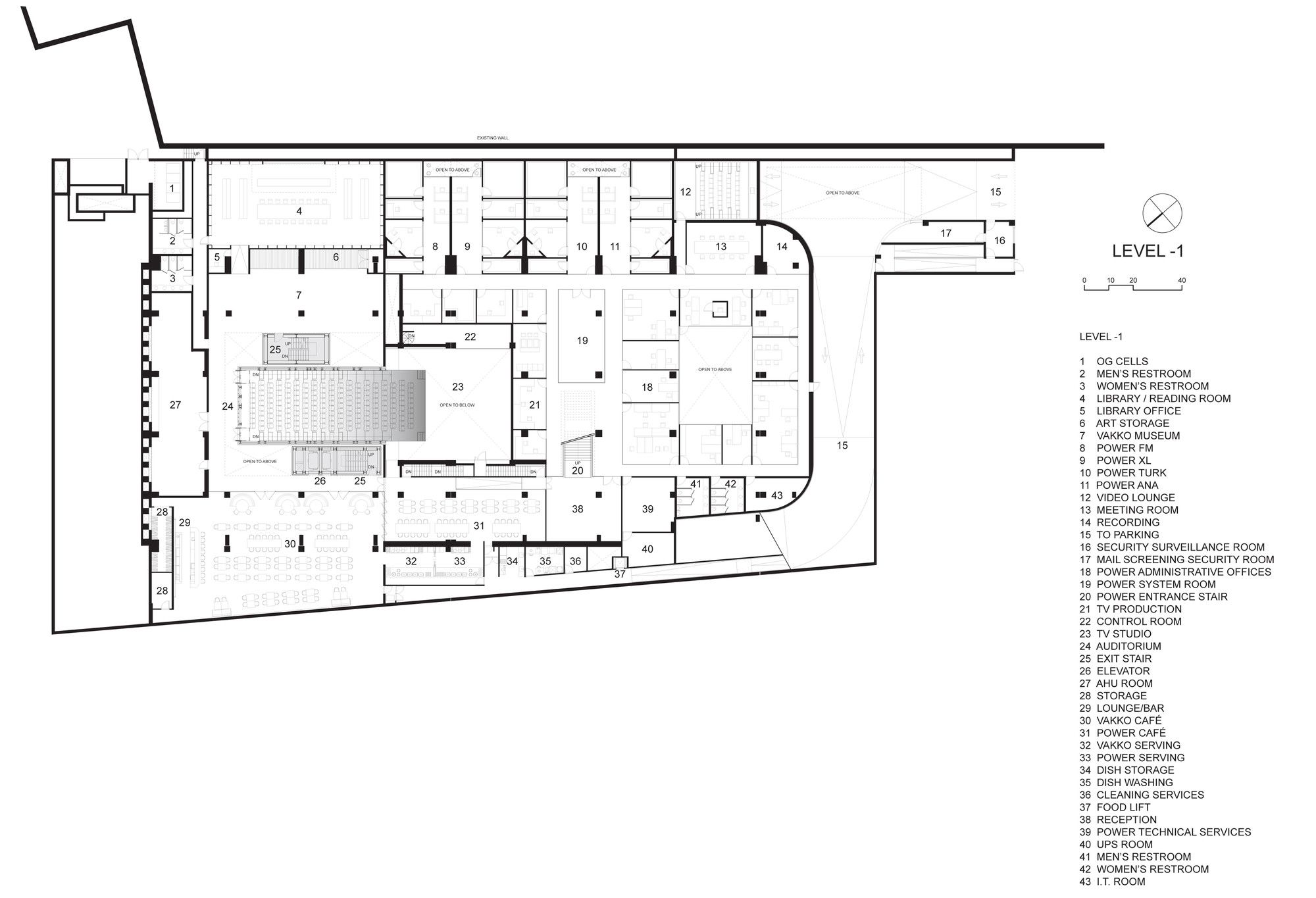
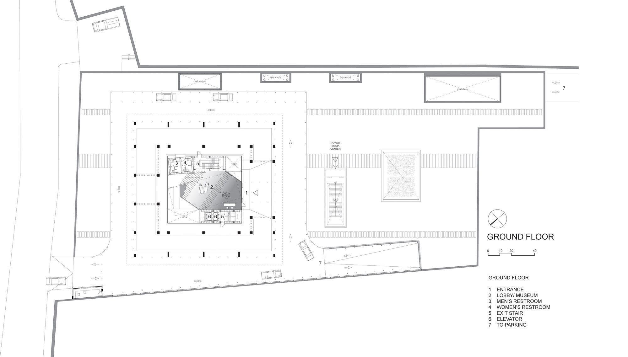
The “showcase” fills the central void with a mirror finish that turns the volume into a sculpture (as seen on the photos and on the showcase elevations below), while housing different programs that benefit from the arrange of the boxes, such as the auditorium, meeting rooms and showrooms. REX once again shows innovative structural solutions in relation with the program, together with new uses of materials as we previously saw at the Wyly Theatre in Dallas.
Program: Headquarters for a Turkish fashion house—including offices, showrooms, conference rooms, auditorium, museum, and dining hall—as well as the television studios, radio production facilities, and screening rooms of its media sister-company
When Caltech’s senior administration suddenly changed REX’s design for the Annenberg Center for Information Science and Technology was canceled. Two months later, the CEO of Vakko (Turkey’s pre-eminent fashion house) and Power Media (Turkey’s equivalent of MTV) approached REX with plans to design and construct a new headquarters by the year’s end using an unfinished, abandoned hotel. The requested timetable would normally have been absurd. However, the unfinished building fortuitously had the same plan dimension, floor-to-floor height, and servicing concept as the Annenberg Center’s “Ring” (the so-called “Sheep”).
By adapting the Construction Documents produced for the Annenberg Center to the abandoned concrete hotel skeleton, construction on the perimeter office block commenced only four days after Vakko/Power first approached REX. This adaptive re-use opened a six-week window during which a unique portions of the program could be designed simultaneously to construction. Speed became the design’s most significant parameter.
Whereas the Annenberg Center’s Ring was a fragile, post-tensioned concrete structure which depended upon the robust, steel interior for support, Vakko/Power’s existing Ring is painfully over-designed, the byproduct of numerous, deadly earthquakes in Turkey.
The design problem is therefore reversed: Vakko/Power’s unique interior must remain detached so as not to disrupt the structural integrity and waterproofing of the in situ skeleton. Dubbed the “Showcase,” this unique interior houses the auditorium, showrooms, meeting rooms, and executive offices, as well as all vertical circulation and restrooms. Meanwhile, the upper floor of the skeleton’s subterranean parking houses Power Media’s television and radio studios, which require acoustic damping and light control.
Project Info
Architects: REX
Location: Istanbul, Turkey
Key Personnel: Erez Ella, Tomas Janka, Mathias Madaus, David Menicovich, Tsuyoshi Nakamoto, Joshua Prince-Ramus, Ishtiaq Rafiuddin, Tieliu Wu
Consultants: ARTE, Autoban, Buro Statik, Cedetas, Dora, Eleksis, Front, Gurmen Muhendislik, Lamglass, Norm Tecnic, Say Yapi, STEP, Superpool, Cem Mimarlik
Program: Headquarters for a Turkish fashion house—including offices, showrooms, conference rooms, auditorium, museum, and dining hall—as well as the television studios, radio production facilities, and screening rooms of its media sister-company
Area: 9100.0 sqm
Year: 2010
Type: Headquarter
Photographs: Iwan Baan, REX, Cemal Emden





























































