V60 House
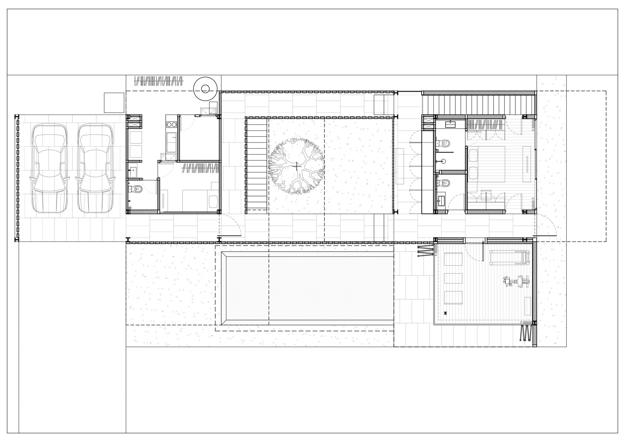
House’s owners, both husband and wife are both airplane pilots, which is a career that takes long work periods in a very small area like cockpit. They all rarely have body movement or touching natural air when working, meanwhile each other’s schedules don’t match completely. To solve those problems, we thought of how to create spaces to enable them to take deep breaths of the fresh air and able to see each other every time they want. The house is located in a very good location with low level of air pollution in a far deep alleyway (soi Vibhavadi 60) and far from main road, the place located on an inheritance land, surrounded by their relatives, allow this house to have plenty of spaces to plant trees around the house.
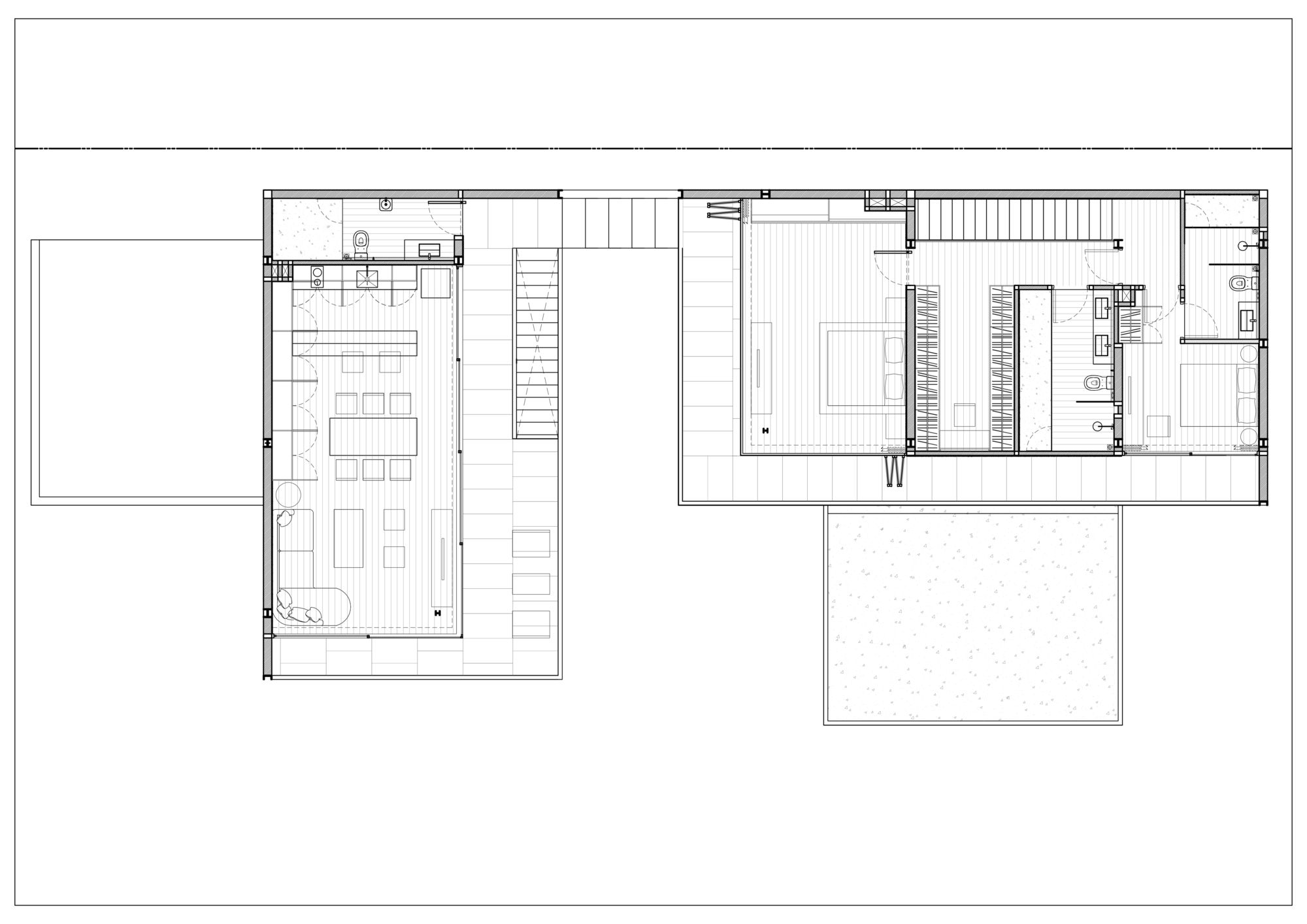
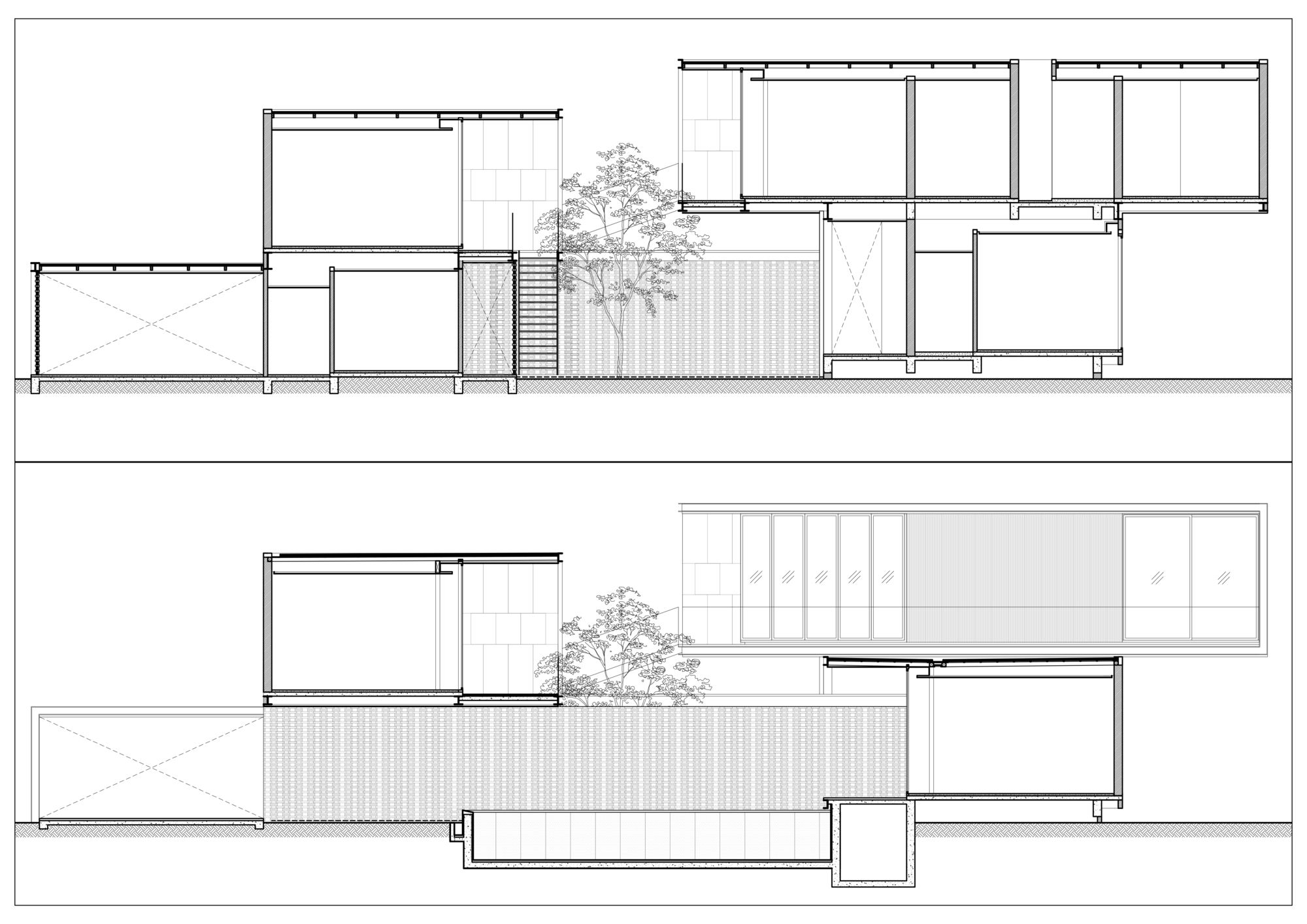
An area size of 200 square seems too big compare to owners’ required usable area, therefore, there is no need to design a house too compact. We separated house elements into 3 zones, e.g. Living area, bedroom, and guest area. Inserting spaces between these zones with green courtyard, results in meeting owners’ needs mentioned above. To optimize an architecture surface to touch the nature as much as possible, both from experiencing green view from their eyes, or from opening all glass folding doors to create natural ventilation, able to feel the fresh air. All these three zones are not divided by interior partition wall, you have to walk from interior of one zone to exterior first, in order to lead dwellers to perceive a scent of nature among green courtyard before walking to other zones. Furthermore, wherever you are in these three zones, you can see each other all the time, for example, when one of the owner brew a coffee in the living area, able to see another one appreciating collectibles in the bedroom, and simultaneously seeing his parents exercising in a swimming pool.
Project Info:
Architects: WARchitect
Location:Â Khet Lak Si, Thailand
Area: 450 m²
Project Year: 2020
Photographs: Rungkit Charoenwat
Manufacturers: Lumion, COTTO, A.P.K., GstarSoft, MN Metal, TOA, Timbercharm, Trimble Navigation






















































