Urban Garden, Redefining boundaries through green planning Private and Public Life. “The tree, my roommate”. “The tree tenant pays its rent with oxygen, through its dust-absorbing capacity, as an anti-noise machine, by eliminating toxins, purifying polluted rainwater, as a producer of happiness and health, a butterfly-bringer, and through beauty” Friedensreich Hundertwasser,1973.
The notion of plants, trees, and people coexisting under one roof can be characterized as timelier and more necessary than ever. While the horizontal ground of our cities is being covered by the construction front, the vertical ground is evolving, creating living buildings that are deemed viable cells in the urban fabric and contributing to improving the quality of life of residents and neighboring schemes.
The name of the building derives from the creation of a private vertical garden, which aims to offer its users the same benefits as a public one while deconstructing the boundaries between the building and its neighborhood, and redefining its identity as a private building, a small-scale ‘Urban Garden’. Naturally, a residential building proposal is limited to its programmatic use and its plot boundaries, creating a division between the building’s occupants and the neighborhood.
The purpose of the design is to deconstruct these established boundaries between the private building and the neighborhood and to redefine the relationships between the residents. The traditional concept of an architectural facade coincides with this boundary and therefore is being replaced with a living, green shell that allows for the development of communication and sightings and allows the building’s inhabitants to reveal and conceal their private life.
IDEA. The two opposing concepts, the public and the private, frame the architectural proposal and are invited to coexist through this bioclimatic design. Just as the benefits of a public garden are not limited to its natural boundaries or its use, but instead extend to its surroundings, similarly, the private garden attempts to expand beyond its boundaries and become a sustainable cell within the neighborhood.
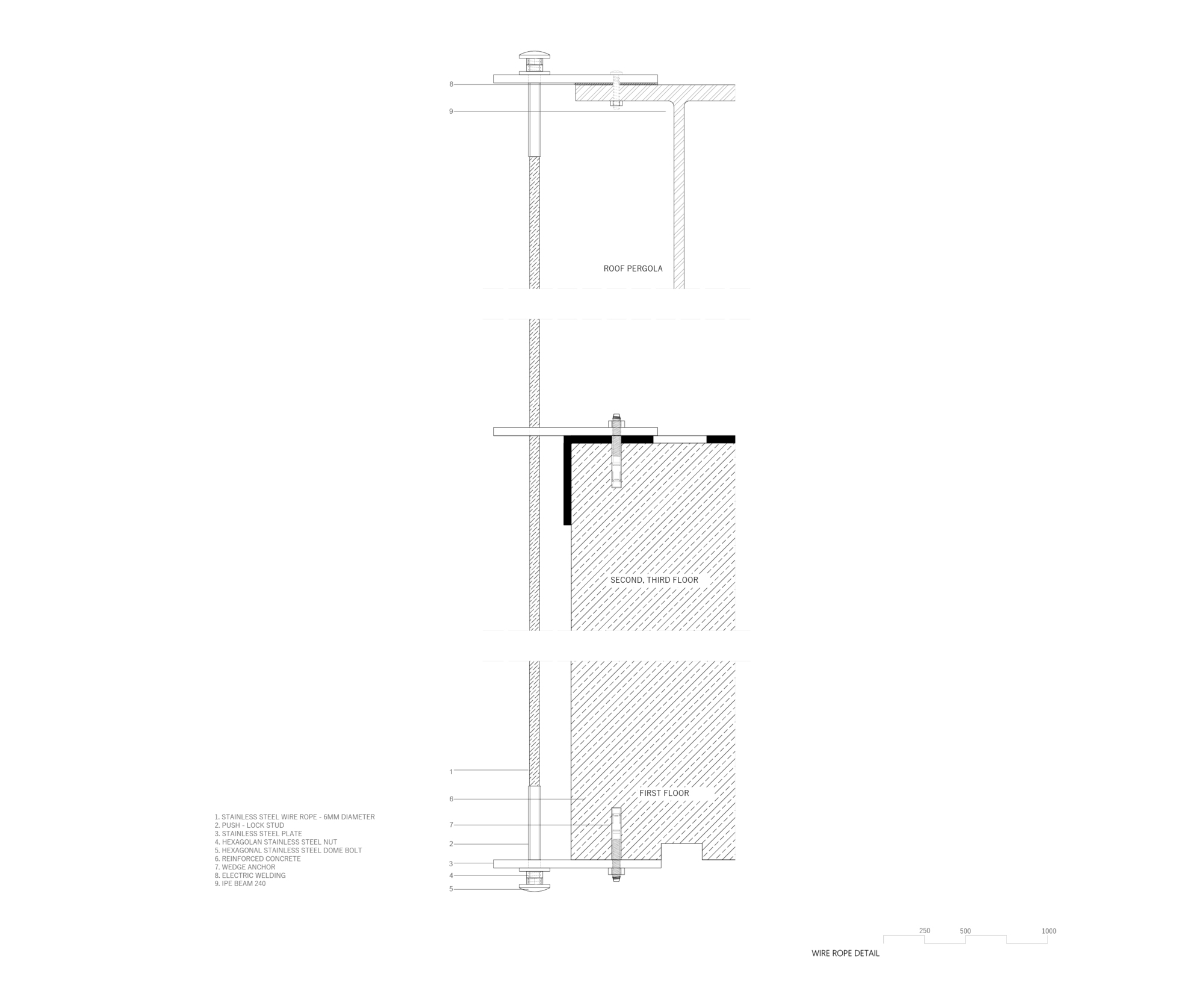
The primary element of the boundary’s deconstruction is the wire rope shell. This allows the plants within the building to grow both vertically and horizontally, creating a green facade around the perimeter of the building. The perimeter flowerbeds on all levels of the building host a variety of local and foreign plants, suitable for growing in the environmental conditions of Cyprus. At its maximum development, the facade forms a vertical garden that benefits its users and the building itself, creates shade for the interiors, and thus reduces energy consumption. As part of the urban fabric, the building aesthetically improves the image of the neighborhood, enriches the space with scents, and attracts local wildlife.
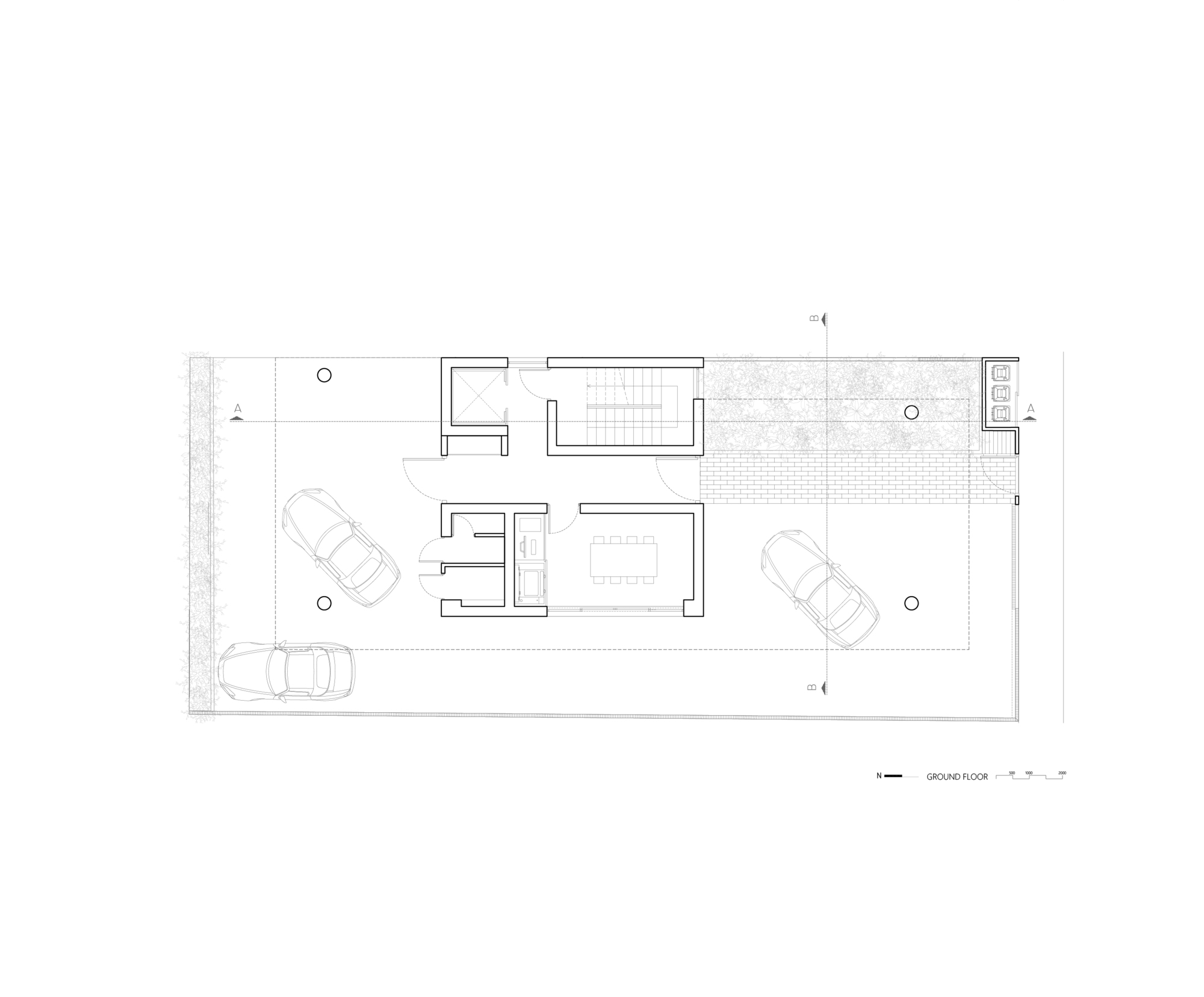
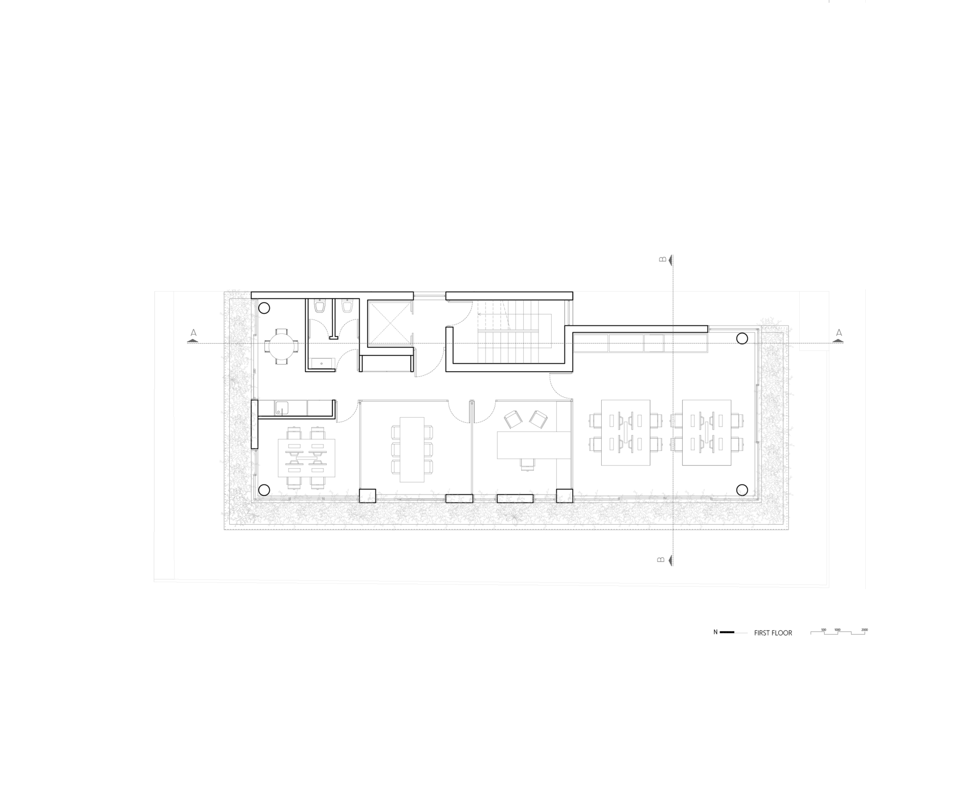
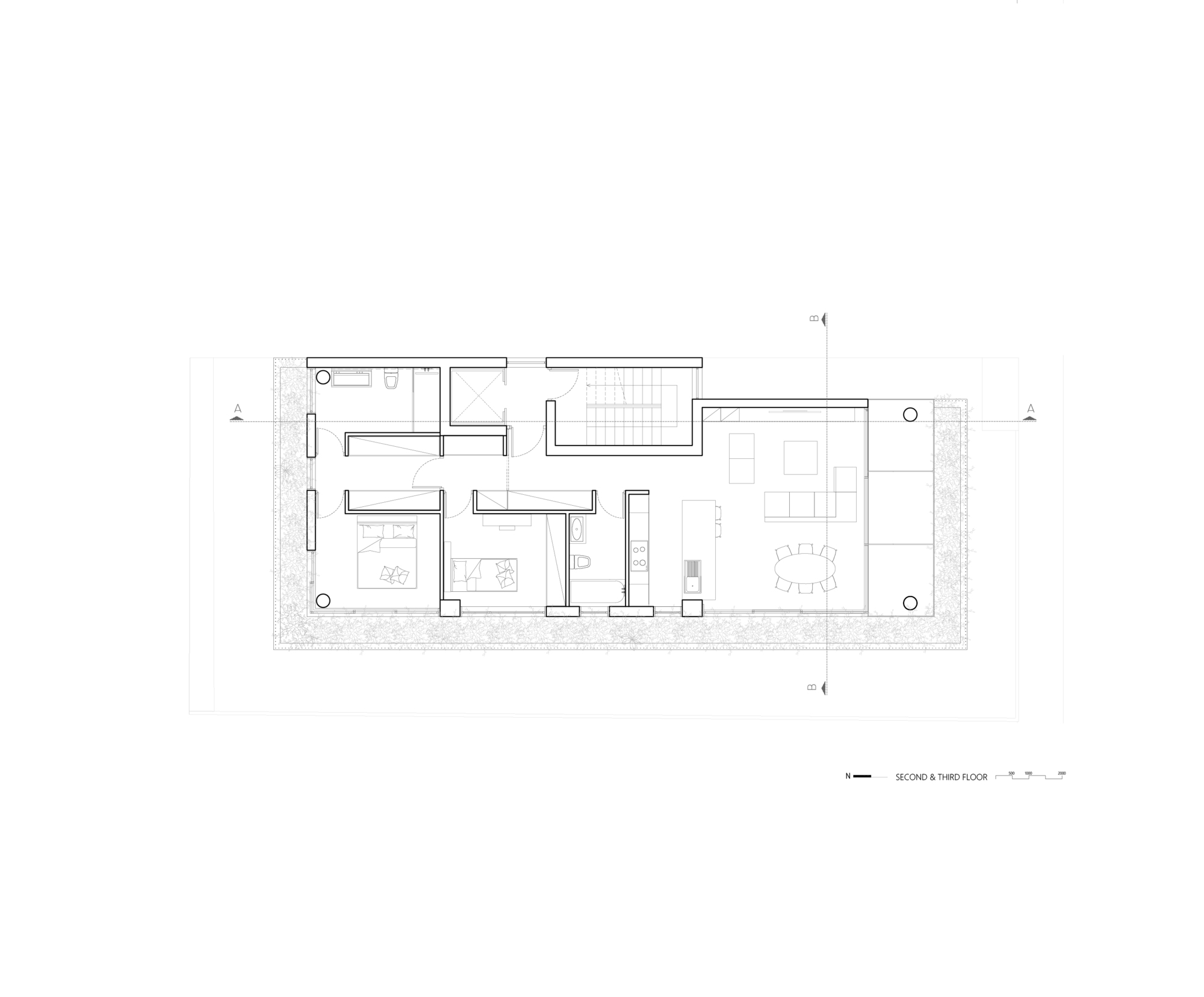
The building is located in the densely populated area of Ayios Nikolaos, east of the center of Limassol. An area characterized by the single-family houses of the 60s and 70s and that has been undergoing intense urban and architectural changes in the last decade. The building is divided into five levels, the piloti, three stories, and the roof garden. The piloti allows access to the building and is also the parking area. The first floor houses an architecture studio space with a drawing room and a meeting room. The second and third floors are floor apartments that include an open-plan kitchen, living room, dining room, two bedrooms, and two bathrooms. The open-plan apartments are surrounded by south and west-facing openings while the bedrooms are west and north facing.
All interiors are surrounded by sliding thermal aluminum glazing. On the one hand, they help reduce energy loss while on the other hand, they unify the exterior and interior spaces, allowing the user to have an unobstructed view of the green facade. The roof garden consists of a dining area, lounge area, and barbecue facilities. A metal pergola covers the entire rooftop. Double-sided photovoltaic panels are located on the upper part of the pergola, helping to reduce the energy consumption of the building and creating shade during the daytime. The project as a living urban cell evolves as an active member of the neighborhood. Urban garden, my neighbor. Sustainability, Experimentation, Change.
Project Info
Architects: Loizou Architects + Associates
Country: Cyprus, Limassol
Area: 360 m²
Year: 2022
Photographs: Maria Efthymiou

































Sophie Tremblay is a Montreal-based architectural editor and designer with a focus on sustainable urban development. A McGill University architecture graduate, she began her career in adaptive reuse, blending modern design with historical structures. As a Project Editor at Arch2O, she curates stories that connect traditional practice with forward-thinking design. Her writing highlights architecture's role in community engagement and social impact. Sophie has contributed to Canadian Architect and continues to collaborate with local studios on community-driven projects throughout Quebec, maintaining a hands-on approach that informs both her design sensibility and editorial perspective.

