Unión Suites | FORMAtaller + Departamento de Arquitectura
FORMAtaller and Departamento de arquitectura develop Unión Suites project. It is a long-term temporary-stay building located in Guadalajara, Jalisco, Mexico.
The sun is an important factor because it hits directly to the front and back facades. In order to reduce the solar incidence, a lattice membrane was used to cover most parts of the building.
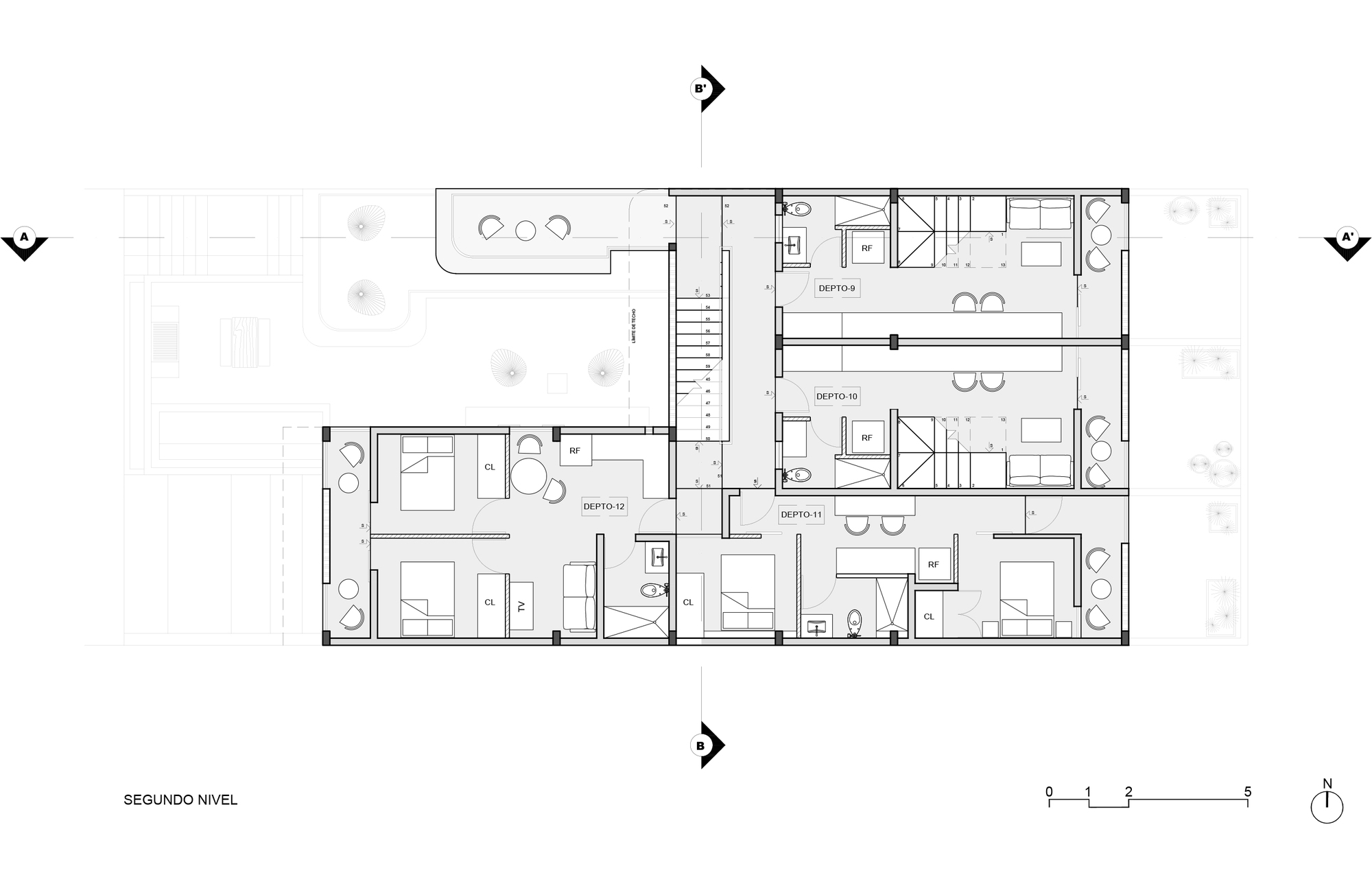
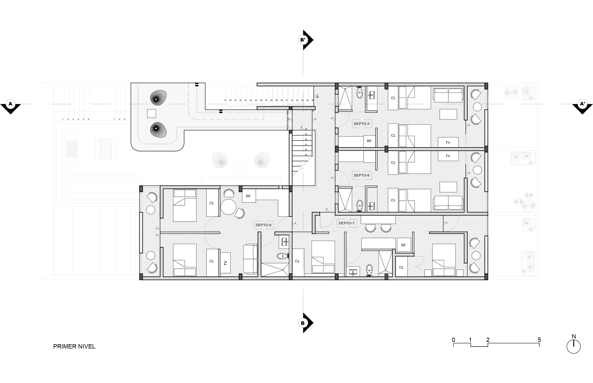
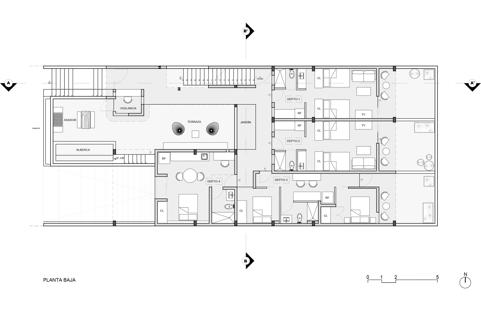
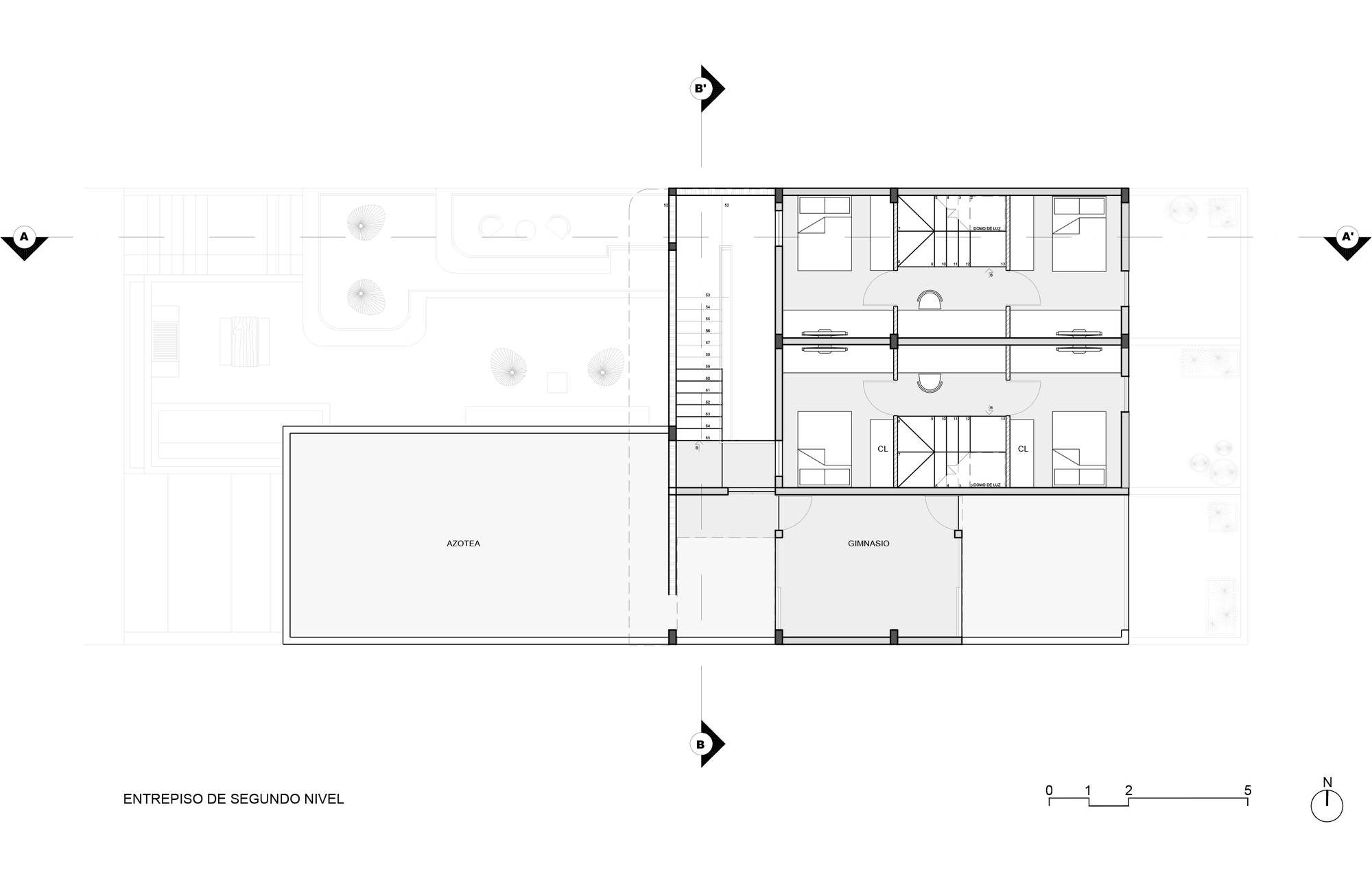
The main shape of the building is like a horseshoe. Then an important mass in the shape of an L rises up leaving a series of semi-open bridges in the rest of the extension. This is an open courtyard in the center of the building. That can be seen from some of the rooms and the staircase that circulates between the first, second, and third levels.
It has twelve housing units with different morphologies to offer a wide range of functional possibilities to different users.
The building has rooms that go from single rooms up to four-person rooms. There is even a couple of two-level apartments on the upper floors.
Each of the rooms has a place to eat, rest, sleep and wash, as well as a series of balconies that serve as the border between the living space and the lattice membrane that faces the outside. This allows for spatial unfolding and natural thermal isolation. All this causes a greater comfort inside due to the crossed ventilation offered by the design.
Project Info
Architects: Departamento de Arquitectura, FORMAtaller
Area: 1049 m²
Year: 2019
Country: Guadalajara, Mexico
Photographs: César Béjar, XuXyEh
Manufacturers: AutoCAD, Concremex, Daltile, Garcia’s Ladrillos, Interceramic, Mosaicos Eternos, Revit
Lead Architects: Alejandro Ramírez Gasca, Susana Limón Lara, Jorge Alejandro Rivera Gutiérrez
Design Team: María José Melo Gómez
Clients: Grupo Montemorelos
Engineering: Víctor Ruiz
Construction: PAVIMAQ






























Anastasia Andreieva is an accomplished Architectural Projects Editor at Arch2O, bringing a unique blend of linguistic expertise and design enthusiasm to the team. Born and raised in Ukraine, she holds a Master’s degree in Languages from Taras Shevchenko National University of Kyiv. Her deep passion for architecture and visual storytelling led her to transition from translation and editorial roles into the world of design media. With a keen eye for conceptual clarity and narrative structure, Anastasia curates and presents global architectural projects with precision and flair. She is particularly drawn to parametric and digital design, cultural context, and emerging voices in architecture. When I’m not analyzing the latest architectural trends, you’ll probably find me searching for hidden gems in cityscapes or appreciating the beauty of well-crafted spaces. After all, great design—like great connections—can be found in the most unexpected places. Speaking of connections, because architecture isn’t the only thing that brings people together.

