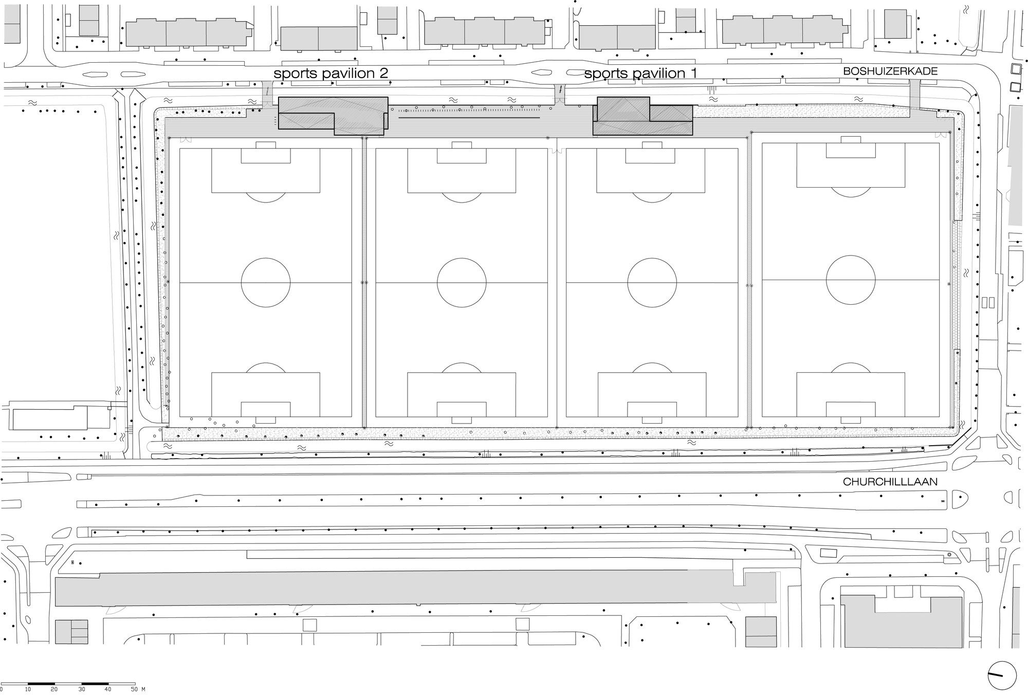
Two Sports Centers Boshuizerkade, The municipality of Leiden was looking to replace the old sports facilities in Leiden with a new complex which would separate the youth football association from the Leiden sports company. The position and footprint of the pavilions was predetermined by Buro Sant and Co who were responsible for the urban design.
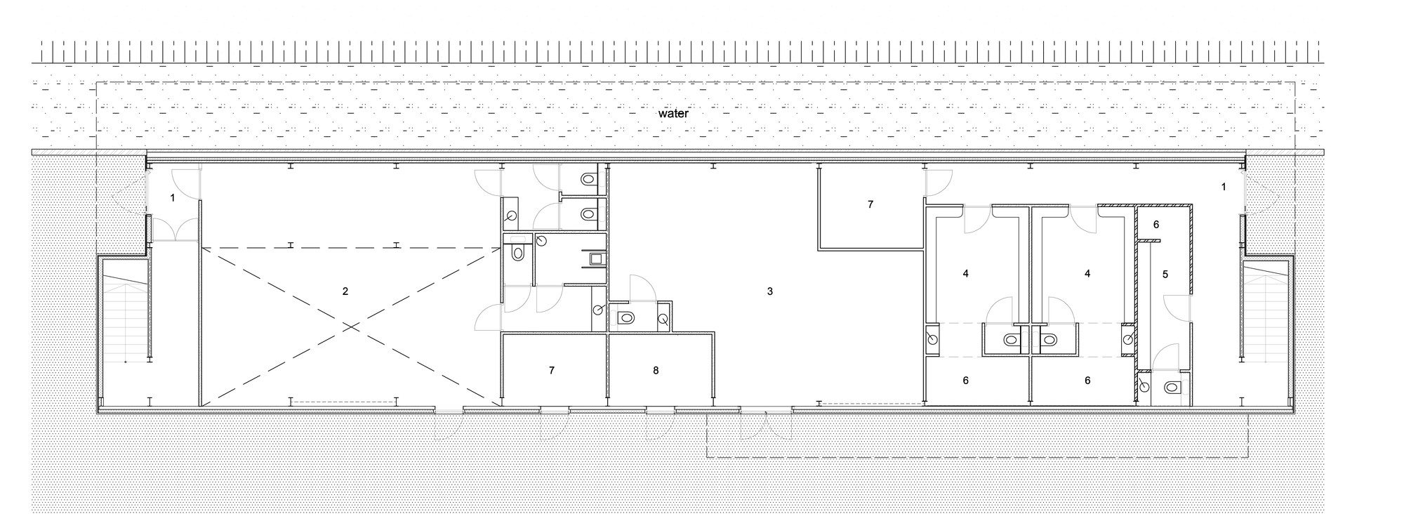
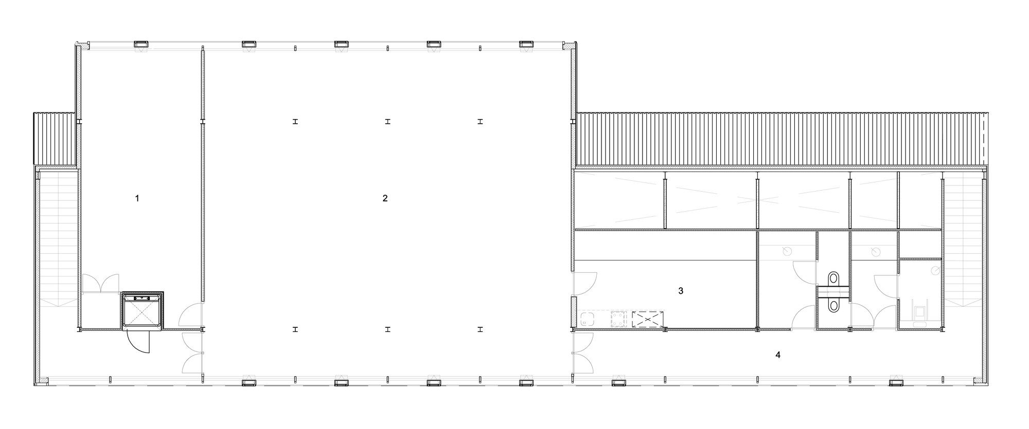
Due to the wide variety of users it was important to strike a harmony in balance between the two pavilions. The first pavilion is dedicated to Football. With the changing rooms on the ground-floor and the canteen and office function on the first floor, the canteen has a stretched glass façade which focuses on the playing fields. On the other side of the canteen is another glass façade which connects the pavilion visually to the surrounding neighbourhood.
Interaction is more apparent in the second pavilion where there is a glass façade running alongside the street, this wall is also the dividing wall that separates it from the youth soccer association. At ground level the amenities are shared between the pavilions.
Project Info
Architects: René van Zuuk Architects
Country: Leiden, The Netherlands
Area: 1590 m²
Year: 2009
Photographs: Courtesy ofRené van Zuuk Architects















Tags: 2009ConcreteLeidenRené van Zuuk ArchitectsSteelThe NetherlandsTwo Sports Centers Boshuizerkade
Sophie Tremblay is a Montreal-based architectural editor and designer with a focus on sustainable urban development. A McGill University architecture graduate, she began her career in adaptive reuse, blending modern design with historical structures. As a Project Editor at Arch2O, she curates stories that connect traditional practice with forward-thinking design. Her writing highlights architecture's role in community engagement and social impact. Sophie has contributed to Canadian Architect and continues to collaborate with local studios on community-driven projects throughout Quebec, maintaining a hands-on approach that informs both her design sensibility and editorial perspective.
