Tsinghua Ocean Center
Tsinghua Ocean Center, a laboratory and office building for the newly established ocean deep-ocean research base of Tsinghua University, is located at the eastern end of the Tsinghua graduate school campus in Shenzhen Xili University Town, and right next to the main campus entrance.
Instant university towns are recent Chinese urbanization in epitome: far away from city centers, these isolated urban archipelagos are often over scaled, lack of humanistic concern and its related services. With the opportunity of designing Ocean Center, the last building on this campus, we hope the new building will participate in the campus life with a brand-new attitude and present possibilities that rarely existed before. This is a building with an open and welcoming atmosphere, while the injected public spaces encourage all the staff and students to participate and socialize; It is a building where intelligent brains may encounter each other and inter-disciplinary communication happens naturally.
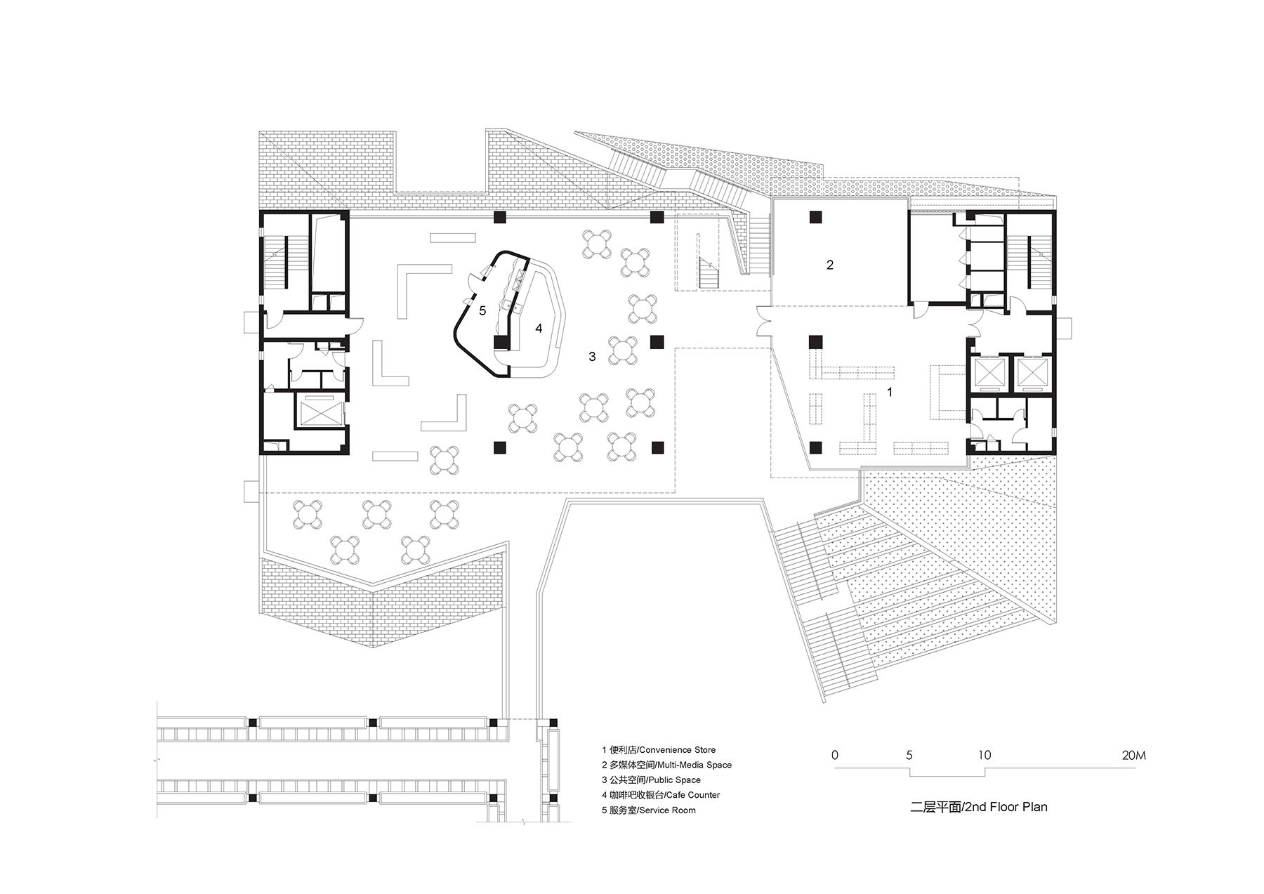
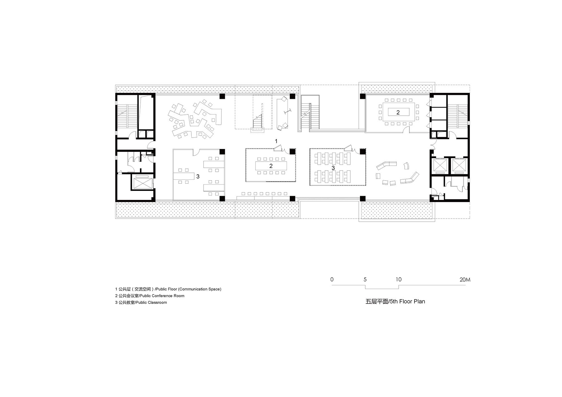
The design takes the organization of public spaces within the overall campus as a starting point. Instead of terminating the campus’ main axis on the plan, the building folds the axis to extend it upwards, with abundant public spaces injected along the way. The conventional quad typology for university campuses is re-interpreted here, to form a lively vertical quad system. Meanwhile, the semi-autonomous yet interdependent relationship among the research centers can be visualized in this vertical campus – a shared public level is sandwiched in between every two research centers. Conference room, brainstorming area, exhibition space, study rooms, cafés and other facilities can all be found in these shared levels. Furthermore, within each research center, the labs and offices are separated by a vertical gap, with stairs connecting different horizontal and vertical public spaces together. As time goes by, the plants in these shared spaces will flourish and extend the greenery on the ground all the way up to the roof garden at 60-meter high. The roof garden has a small open air theater which will be a very special panorama viewing platform in the campus, where one may not only enjoy the views of distant mountains and changes of the sky but also glimpses of giraffes in Shenzhen Wildlife Zoo not too far away.
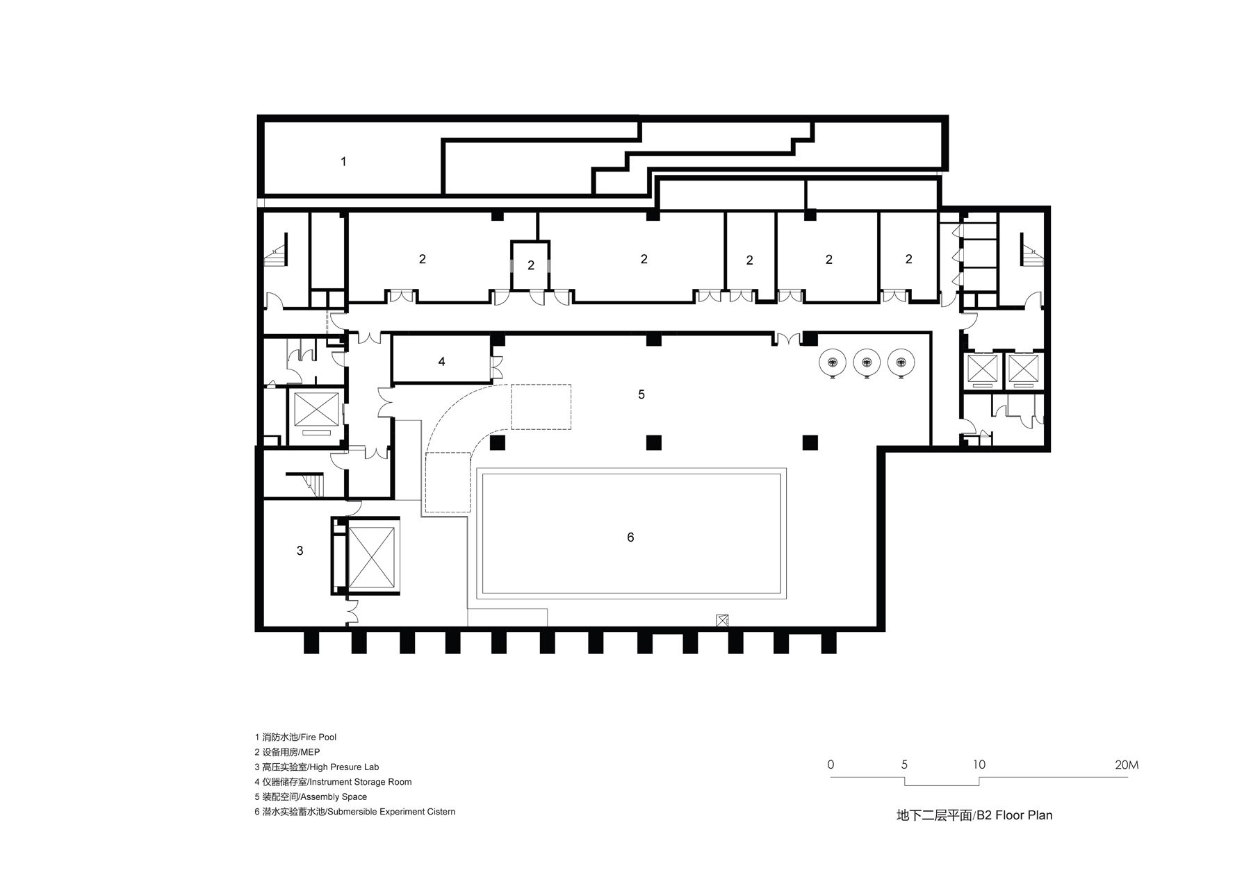
Hidden underneath the entry plaza, there is a deep-sea research tank, a unique lab of this center. Three concrete cone-shaped skylights bring natural lights from different directions down to the basement, while forming abstract sculptures for the entry plaza. Round windows on the concrete walls of the meeting rooms recall the memories of ships. The brise soleil on the façade is organized according to “ocean” by Debussy, varying its angles to produce a symphony of light play every day. The blue soffit colors of the public floors gradually change from deep color below to lighter ones above, not unlike the ocean with different light appearances at a different depth.
The architectural language of the building is born out of the local climate of Shenzhen. Abundant semi-outdoor spaces regulate the micro-climate of the building, while the thin-slab typology maximizes the potential of natural ventilation. Densely and carefully placed exterior shading device efficiently cut down the heat gain, yet still offers good views for the lab and offices. Passive strategies are adopted whenever possible to lower the energy consumption. Exposed structural concrete provides a long-lasting and maintenance free exterior finish, in direct contrast with its stucco-ed neighbors.
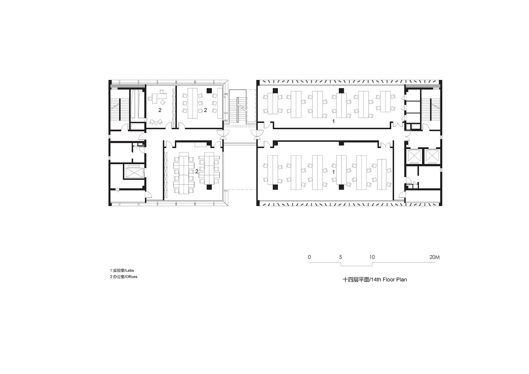
The mechanical rooms and shafts required for the laboratories, together with the vertical structural cores, are organized at both ends of the building, which then delivers the various building mechanical systems horizontally through the ceilings of the central corridor to different laboratories. This configuration leaves the research floors open and allows flexible re-partition should alternative future changes be needed. The research labs are planned according to a basic module. Offices and ancillary spaces are arranged in a vicinity, to offer scientists both quietness and convenience.
Project Info
Architects: OPEN Architecture
Location: Shenzhen, China
Architect in Charge: LI Hu, HUANG Wenjing
Design Team: Victor Quiros, ZHAO Yao, ZHANG Hanyang, ZHOU Tingting, YAN Dihua, ZHOU Xiaochen, QIAO Shawei, ZHANG Chang, QI Zhengdong, Joshua Parker, CHEN Chen, Laurence Chan, JIN Boan
Local Design Institute: Shenzhen Institute of Building Research Co., Ltd
Client: Graduate School at Shenzhen, Tsinghua University
Building Area: 15,884 m2
Land Area: 2,439 m2
Year: 2016
Type: Office Building
Photographs: Iwan Baan, ZHANG Chao















































