Triplex in Paris | Bertina Minel Architecture
Triplex in Paris
Located in the heart of Paris, this 235sqm apartment spread over three floors had not undergone any transformations in decades. At the request of the new owners, we were tasked with rethinking and restructuring the entire triplex. Our first concern was to completely review the distribution of spaces and their organizations in order to adapt them to the needs of new owners. At first, all the existing partitions were demolished: The objective was then to preserve and enhance the light that had become through after demolition.
Thanks to a new layout of the rooms, the apartment, doubly oriented, is now bathed in natural light throughout the day and in all rooms. In addition, the work has helped to recreate a link between the ground floor and the first-floor thanks to the opening of the double-height of the living room. The new distribution of spaces has provided fluidity in the spaces while allowing a better distribution of different reception spaces, leisure spaces, and intimate spaces.
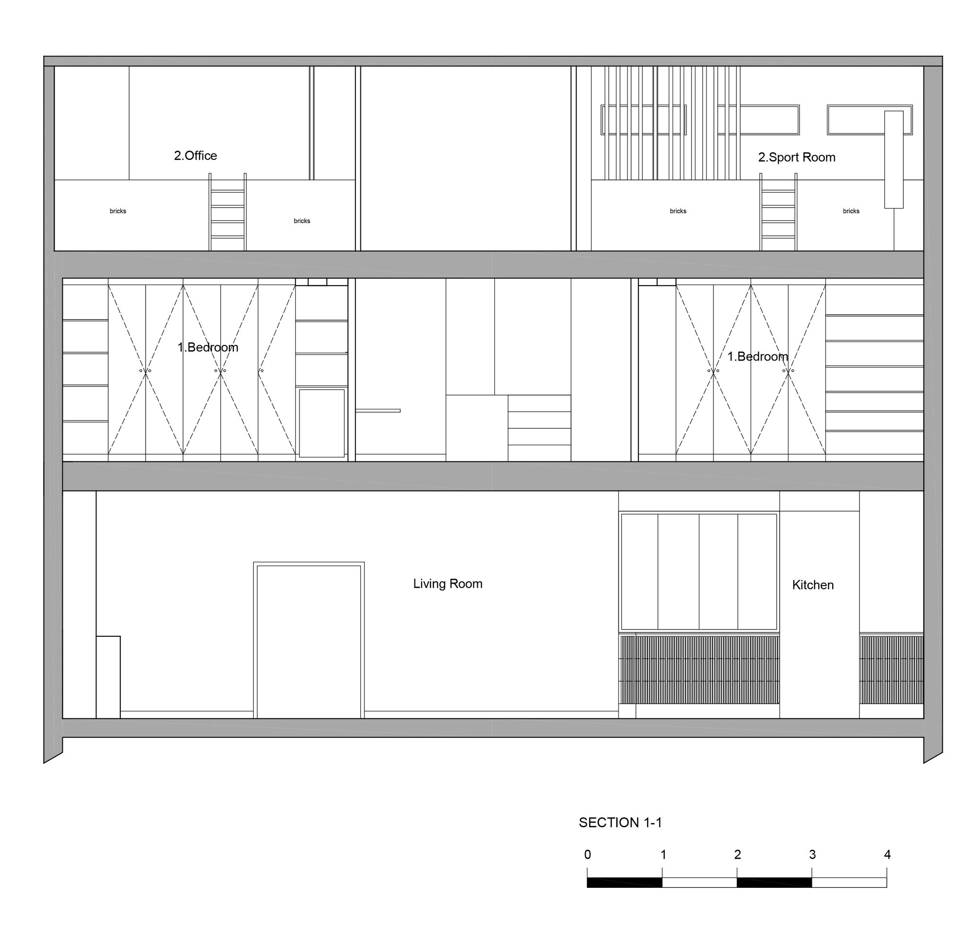
On the ground floor are the living and reception rooms: the kitchen dining room and living room. On the first floor, the children’s bedrooms are connected by a common playroom overlooking the double height of the living room, as well as their private bathroom. And separated by a few steps is the master bedroom with its large volume and its “mini” bathroom designed like a cocoon. And finally, the top floor slope under the roofs is thought of as a relaxation area hosting an office and a sports room as well as a third bathroom. In the decorative choices, meticulous work has been focused on the choice of materials and chromatic range.
Light oak and blue shape the identity of the apartment while giving it its character. The link between the different spaces is created by the custom oak arrangements and the blue that is found in the kitchen, the living room library, and in the entrance. On the floors, each room has its own identity but remains in harmony with the whole with careful chromatic and decorative choices and a light oak flooring that creates the link throughout the apartment. On the 2nd floor, it is discovered and recovered brick that gives all its character to the rooms intended for leisure.
Throughout the project, special attention has been paid to adopting a responsible approach: from spatial organization to interior decoration, through the choice of materials. We have decided to retain as many old elements as possible such as the 2nd-floor brick or the ground floor floor floor, the cast iron radiators, and the chimney that could be recovered to combine the past and the present. These elements, beyond the ecological approach of “recycling”, allow keeping the identity of the dwelling while transforming it into a warm and contemporary dwelling.
Project Info:
Architects: Bertina Minel Architecture
Location: Paris, France
Area: 235 m²
Project Year: 2020
Photographs: Agathe Tissier
Manufacturers: 41zero42, Artemide, Laufen, Northern Lighting, Zangra, Au fil des couleurs, Borastpeper, Consentino, Little Cabari, Ondyna, Plum kitchen, Ressources peintures, The cool republic, Winkelmans, bomma cz
































