Designed by Andrew Franz Architect, In Manhattan’s landmarked Tribeca North, the top floor, and roof of an 1884 caviar warehouse are reconceived as a warm and open residence. The design, guided with a goal of a sustainable and healthy, living environment, features a relocated mezzanine with a planted interior court which connects to the new green roof garden. Embracing the building’s industrial past, a visual discourse between new and old is devised through insertions of modern materials along with restored or reclaimed materials.
Outdoor Connection
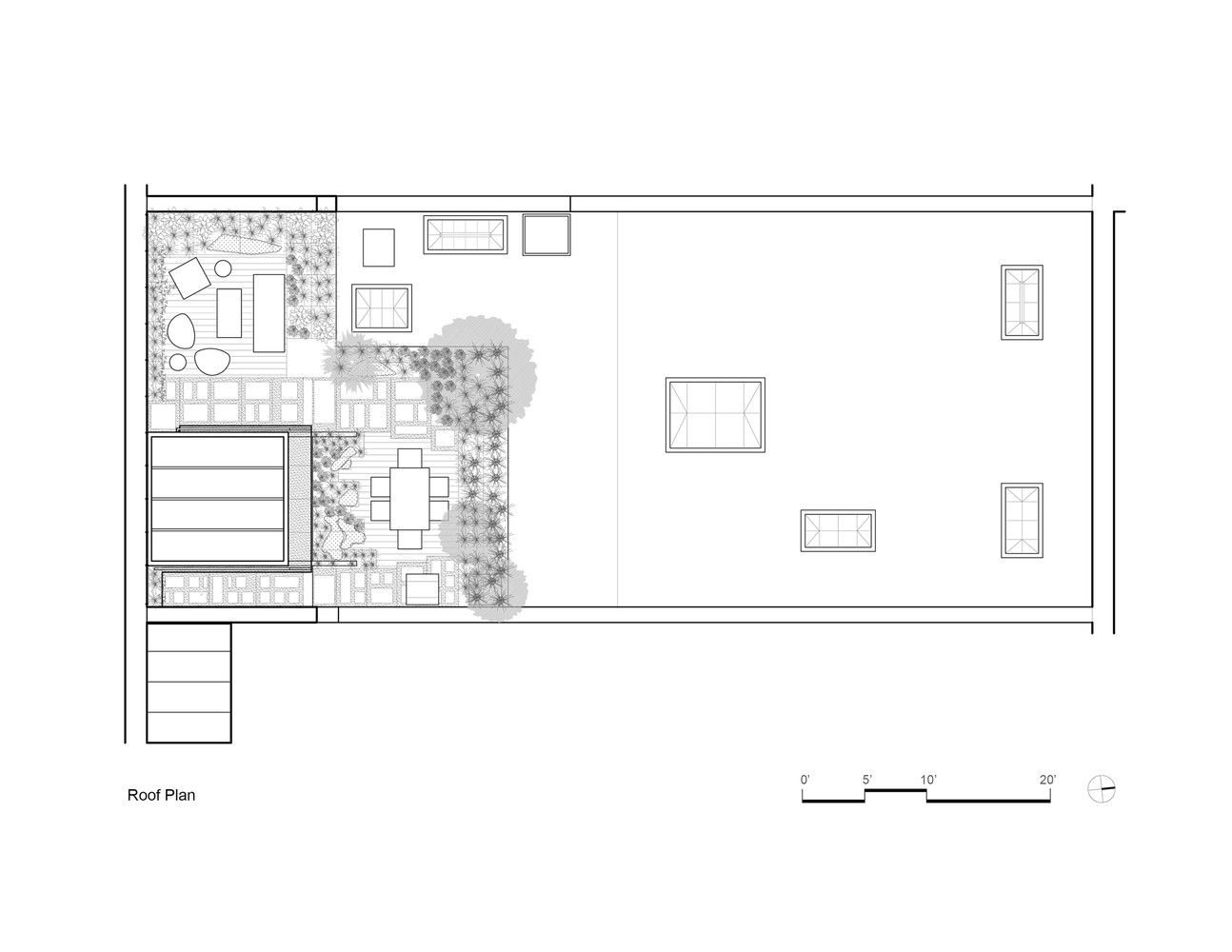
The residence is transformed by a relocated mezzanine where a sunken interior court with a retractable glass roof connects to the planted green roof garden above. This gesture of subtracting volume from the interior brings the outdoors into the primary living zones. The roof, peeled back, showers the spaces with natural light. When open, ample air flow enters what was once a poorly ventilated and dark loft. By night, the court acts as an internal lantern illuminating the loft below.
Historic Dialogue
Embracing the building’s industrial past, a visual discourse between new and old is devised through insertions of modern materials along with restored or reclaimed materials from the loft. A custom steel stair repurposes timbers from the old roof joists as treads and landings. The multiple level residence is unified by a walnut fascia that serves as a conceptual datum.
Sustainability & Health
To add to its sustainable nature, new and energy-efficient mechanical systems and appliances are employed. The project reclaims and reuses loft materials while bringing in new, locally sourced products including the appliances, retractable glass roof, architectural metal work, and cabinetry. The new roof terrace utilizes reclaimed bluestone pavers and a majority of native plant species that require little water while insulating the environment below.
Project Info:
Architects: Andrew Franz Architect
Location: New York, NY, United States
Area: 3000.0 ft2
Project Year: 2013
Photographs: Albert Vecerka/Esto
Project Name: Tribeca Loft












Tags: Albert Vecerka/ EstoAndrew Franz ArchitectFSGlassLandmarkMaterialNew YorkNew York CitySustainableSustainable BuildingTribecaTribeca Lofttribeca new yorkUnited States
