Treehouse Coliving Apartments | Bo-DAA

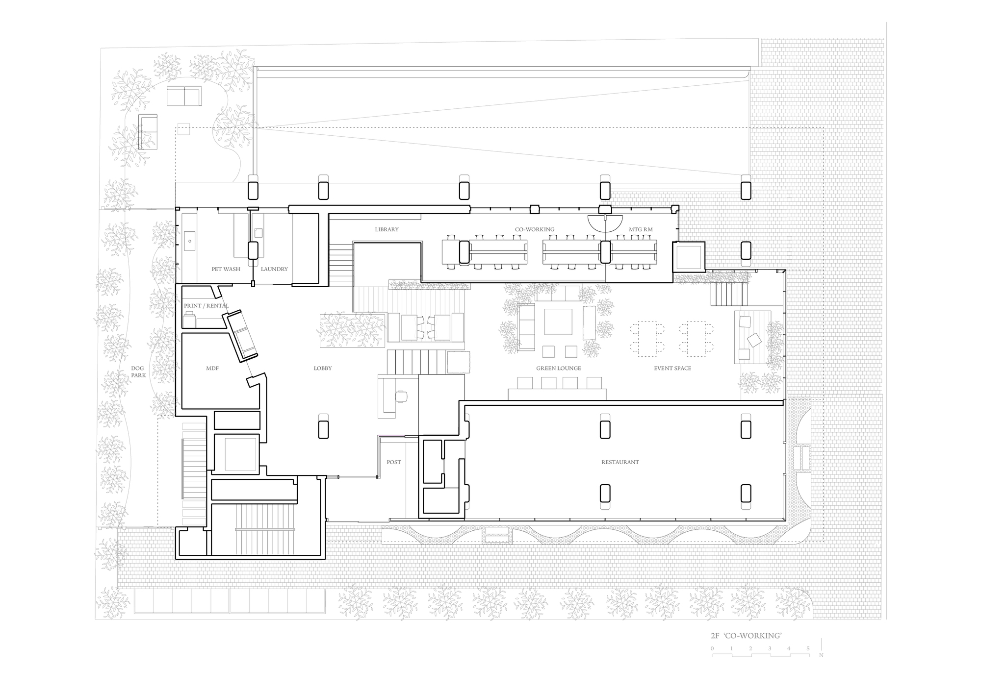
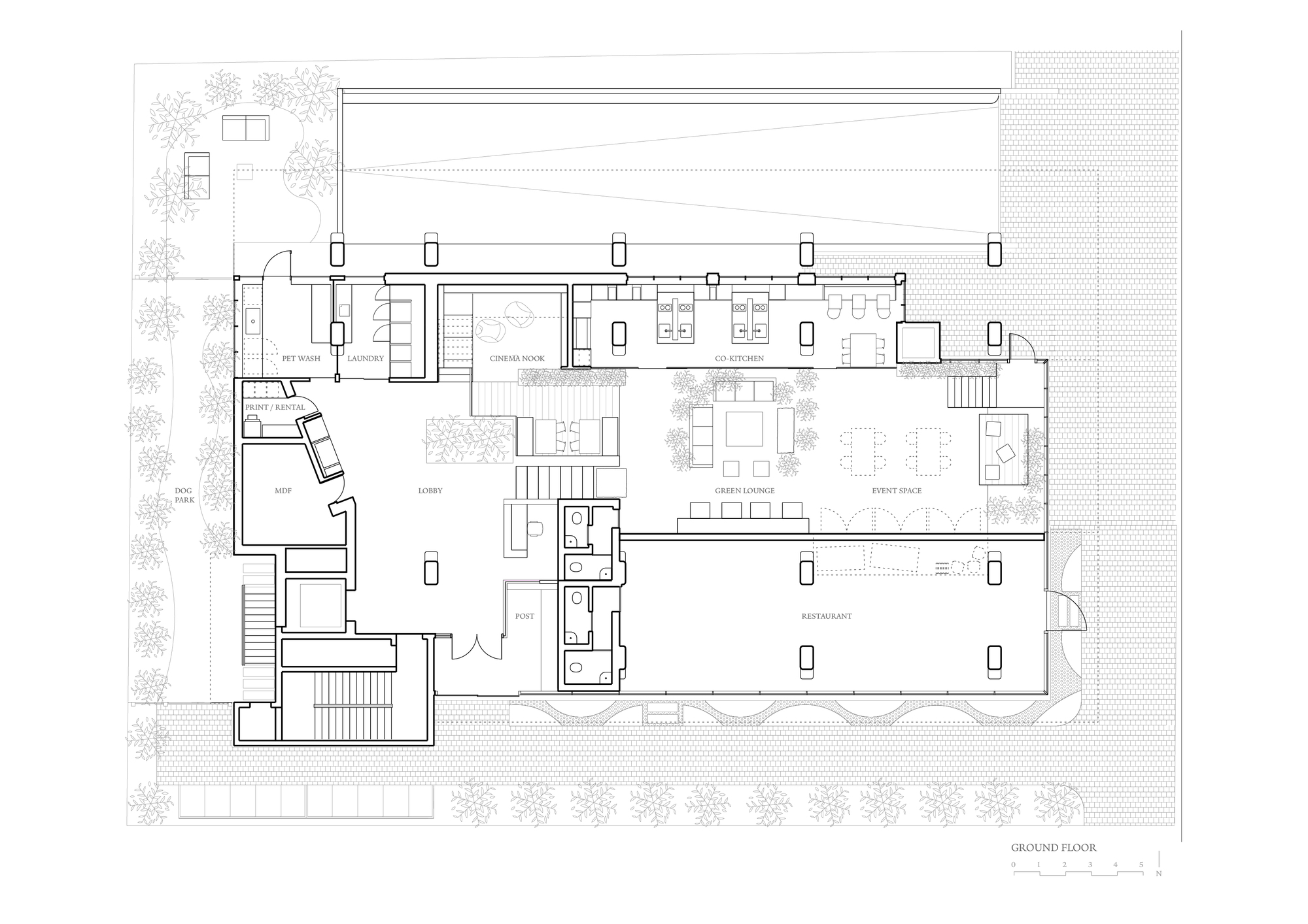
Treehouse Coliving Apartments is a 72-unit co-living complex in the heart of the Kangnam, the start-up hub of Seoul. Composed of micro-studios and micro-lofts, it is designed for single professionals and their animal companions. Treehouse is centered by an interior garden that is lined with collaborative work areas, relaxing lounge spots, communal kitchen, laundry and pet baths.

Treehouse Coliving

© Rohspace

Above the garden are six floors of residences. Each floor has a differently styled unit – whether lofted sleeping quarters over an open soaking tub; a ladder of ledges to provide perches for feline residents; or a spacious penthouse for couples. Key architectural details are full-width slanted windows with blinds that rise bottom-up for privacy while providing a slice of the sky.

Treehouse Coliving

© Rohspace

Other details are sliding doors that double as shelving; full wall magnetic paint or modular storage for easy personalization; and loft units with additional ventilation windows into the atrium for cross ventilation. The beauty of the project is how the spatial composition reflects the communal lifestyle. The atrium is the spatial heart of the residence, yet it is the stacking of private units that creates the space.

Treehouse Coliving

© Rohspace

The community cannot exist without the individual, and the individual is anchored by the community. Residents look upon the garden twice: upon entry into the ground floor and as they enter their unit. Community is not forced but coaxed: each unit is designed for a single person with private bath and kitchenette, and residents only share amenities where larger scale and community make for a better experience.

Project Info

Architects: Bo-DAA
Area: 4810 m²
Year: 2018
Country: Gangnam-gu, South Korea
Photographs: Rohspace
Manufacturers: Amadas, Marmoleum
Consultants: Kolon Global, Hanki Engineering and Architecture, Kidea Partners
Architect In Charge: Melody Song, Xinyi Wang, Dionysus Cho
Design Team: Xiao Wu, Hayeon Kim, Nam Yong Kim
Client: Kolon Global

Melody Song
Arch2O.com
Logo