TP-LINK Hangzhou R&D Center | SZA
TP-LINK Hangzhou R&D Center
When the office has slowly entered the era of mobility as expected 10 years ago, the “router” seems to be a reference to a new type of office facility connecting people and resources. This project is designed for a manufacturer which is specializing in the research,development and manufacturing of network and communication terminal equipment, and also is the world’s largest router manufacturer–TP-LINK, as the East China R&D Center.
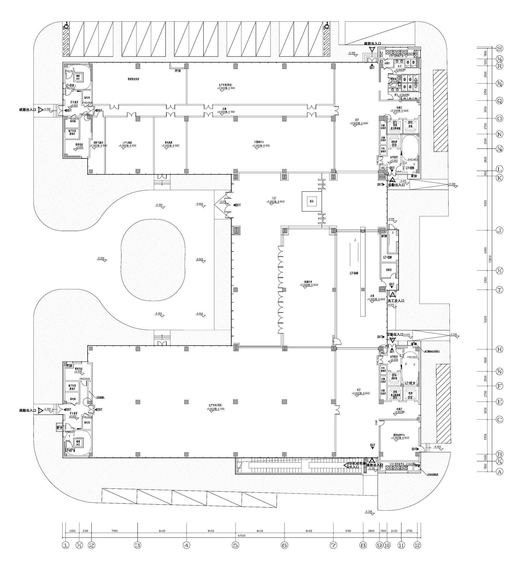
The project is located in the high tech zone of Hangzhou Binjiang district. It’s surrounded by high-tech enterprise R&D parks, and the regional arterial road is located on the west side of the site. The above-ground building area is about 26,700㎡.
As an R&D office building for enterprise’ own use, its building form can be quite different from that of general office buildings. The building space organization is customized design according to the requirements of the enterprise, and usually more shared spaces are accomodated. At the same time, the architecture will also be used as a carrier of corporate social image and value in a sense.
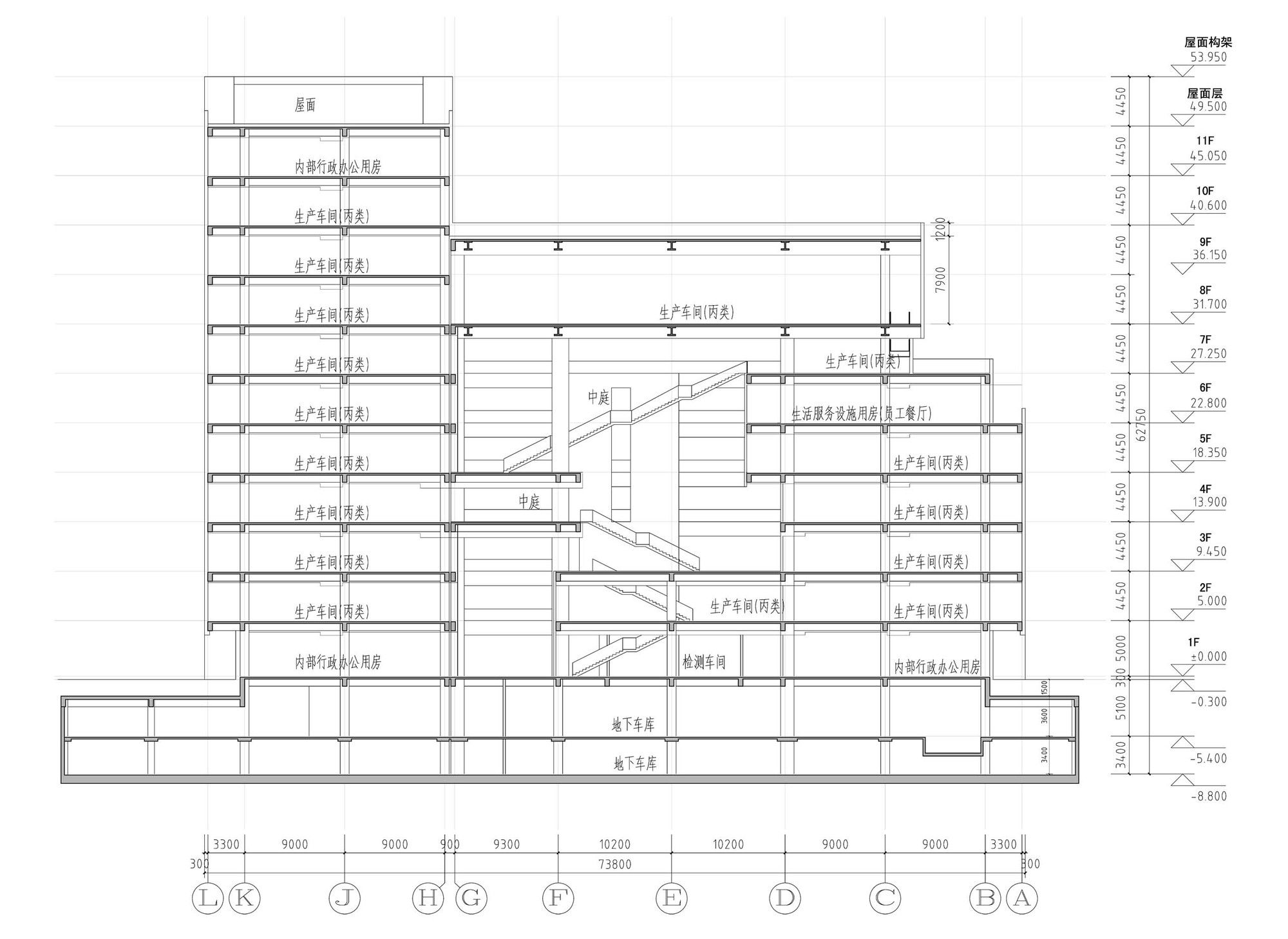
After many rounds of discussions with the owners, the final design is a clear spatial model: the R&D function as two externally invisible “black boxes” utilizing the north and south daylighting, and the common space between the two black boxes are shared by all departments. The shared function blocks include conferences, restaurants, lecture halls, etc.; and the top surface of each function block becomes an shared platform without definite assinged function. Via vertial traffic connections between each two platforms , the common spaces continue from from inside atrium to outside roofgardern of south slab.
The logic of architectural space is clearly ariticulated from the view of the west main facade. The common spaces in the atrium that are not strictly assigned with specific functions actually become the core of the architectual space and function as the engine driving the connection between varied uses.
According to the requirements of users, the slab buildings (black boxes) on the north and south side are designed with a depth of 22 meters .The core and vertical connection are located at the east and west ends of the slab building, to block the undesirable low-angle light. The shared space between the two slabs is 30 meter wide, with height ranging from 4 to 20 meter, and the space transition to an outdoor roof terrace at the 6th floor.
The atrium curtain wall is composed of suspended- cable structure and ultra-white laminated glass to achive a more transparent appearance. The north and south slab buildings apply with higher reflectivity Low-E insulated glass and the are designed in a way of vertical aluminum panels combined with operable windows inbetween. The curtain walll design is utilizing different wall types to emphasize the logic of the space organization.
Locating the core outside firstly allows the open office space to be more efficient and flexible. The massing of the cores , along with the glass curtain wall and atrium space confidently express the internal relationship of the building. The cores are enclosed with dark gray stones, which apply with subtle texture variations to achive a richer visual effect for the large area of solid wall.
Among the future employees in the R&D center, young people under 30 will account for 90%. As an IT enterprise which established in 2000, TP-Link is not only different from traditional electrical brands , but also different from software and internet companies emerging in recent years. Its interior space needs to provide comfortable, efficient and confident working environtment and communication places for employees.
If each building is regarded as a terminal of the city, we hope to design this terminal which can not only accommodate, but also stimulate and instruct people’s creative behavior. This is also the mission of the enterprise carried by this R&D building.
Project Info:
Architects: SZA
Location: Hangzhou, China
Area: 39180 m²
Project Year: 2019
Photographs: Weiqi Jin
Manufacturers: 吴江南玻华东工程玻璃有限公司







































