Torrey View Buildings | Flad Architects

Offering exceptional views of the Pacific Ocean and its surrounding natural landscape from every point on the site, Breakthrough Properties’ Torrey View Development works in tandem with its environment to express its own character while echoing the site’s layered geologic formations in its coffered façade. The steeply graded window panels establish its dynamic, tessellated signature envelope. Seeking to create flexible, daylight-infused interior floor plates that maximize energy efficiency, digital tools were employed to assist in massing, placement, and façade development. The interiors promote occupant wellness by providing natural daylight and views without compromising building performance.

Torrey View

© Jason O’Rear

With the need to strictly align with safety standards and accommodate specialized equipment, scientific workplaces present design challenges when also seeking to create a desirable work environment to attract and retain top-tier researchers. This life science campus addresses those challenges by providing three thoughtfully designed, state-of-the-art scientific workplaces and an amenity building totaling 515,000 square feet, offering top-tier leasable space for biotechnology firms in San Diego.
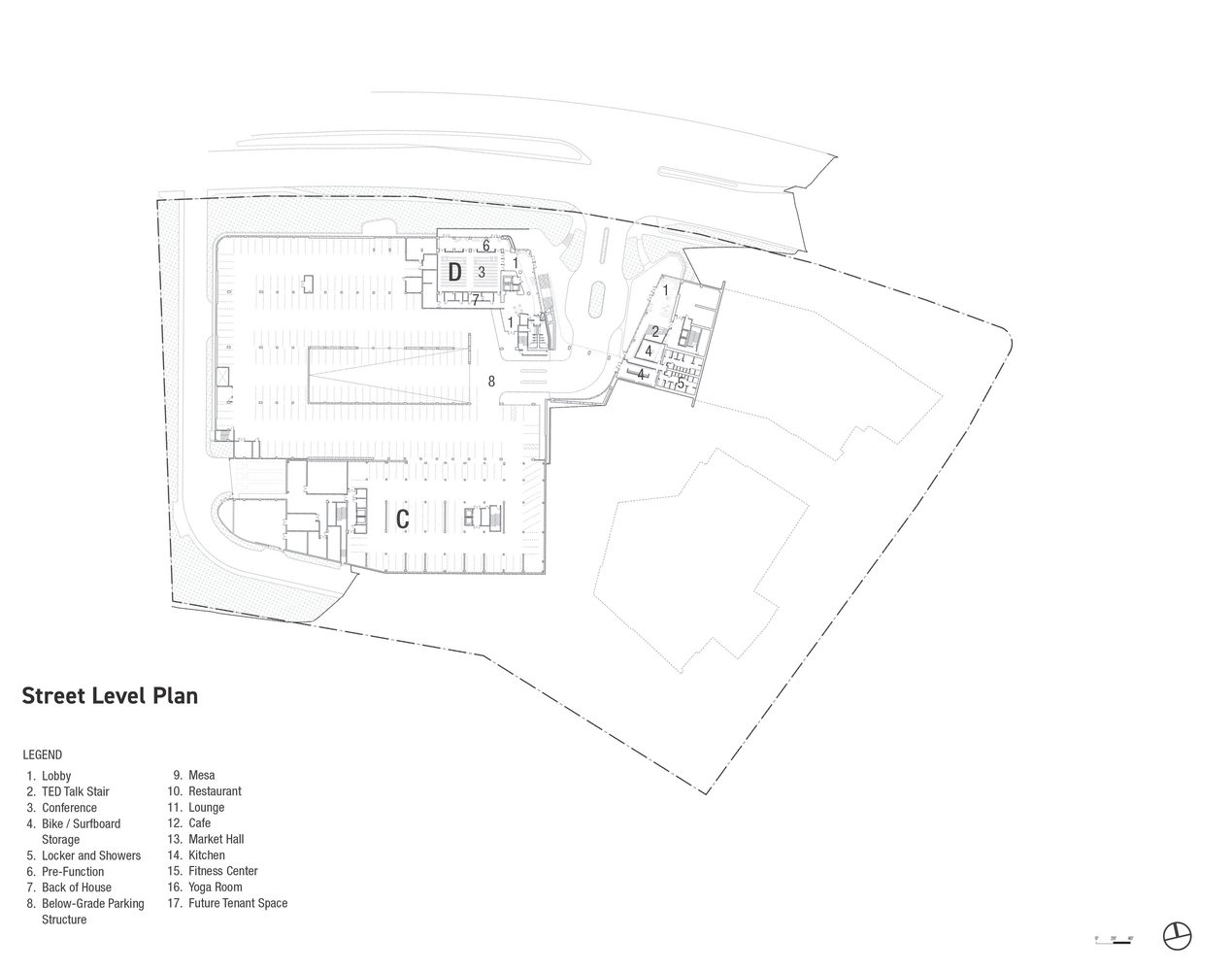
The design team used the site’s sloping terrain to limit vehicular traffic on campus, placing the site entrance at the highest point and locating the parking structure below grade. This freed up space above the parking garage for a publicly accessible, landscaped plaza or mesa.

Torrey View

Site Plan

Surrounded by research laboratories, offices, and amenity spaces, the plaza unites the campus and provides a connection to the outdoors. Integrated into the plaza is a signature amenity building featuring a restaurant, bar, café, library, and lounge. The amenity building’s green roof reduces heat gain and rainwater runoff, while also offering an inviting view from upper levels. Integrating nature and technology to create an inspiring workplace, the design of the campus ensures the building remains in constant dialogue with its surroundings, offering a dynamic visual experience. Officially opening in the summer of 2024, Torrey View is certified LEED Gold and designed to achieve Fitwel certification.

Project Info:

  • Architects: Flad Architects
  • Country: San Diego, United States
  • Area: 515000 ft²
  • Year: 2024
  • Photographs: Jason O’Rear
  • Manufacturers: Terrazzo & MarbleSherwin-WilliamsUnika Vaev9WoodArizona TileArmstrong CeilingsBenjamin MooreBobrickCTL leatherCaesarstoneCalico WallpaperCamiraCertainTeedConcrete CollaborativeCrane CompositesCreative Materials CorporationCristacurvaDDSFilzFeltGatekeepers, +19
Flad Architects
Arch2O.com
Logo
Send this to a friend