“The Third Space” is located in the prosperous North Jianshe Road, of which the east side is next to north-south parallel rows of workers’ house. The direction, layout, the volume and the shape of tower and podium are nearly all determined by the calculation of sunlight in order to fulfill the rigorous sunlight standard. Two parallel 100 meters high slab-type building are rotated by a certain degree along the direction of the incoming southwest sunlight and then face southeast with the roof of the podium cut into a zigzag shape leaving a ribbon shape garden in the east side.
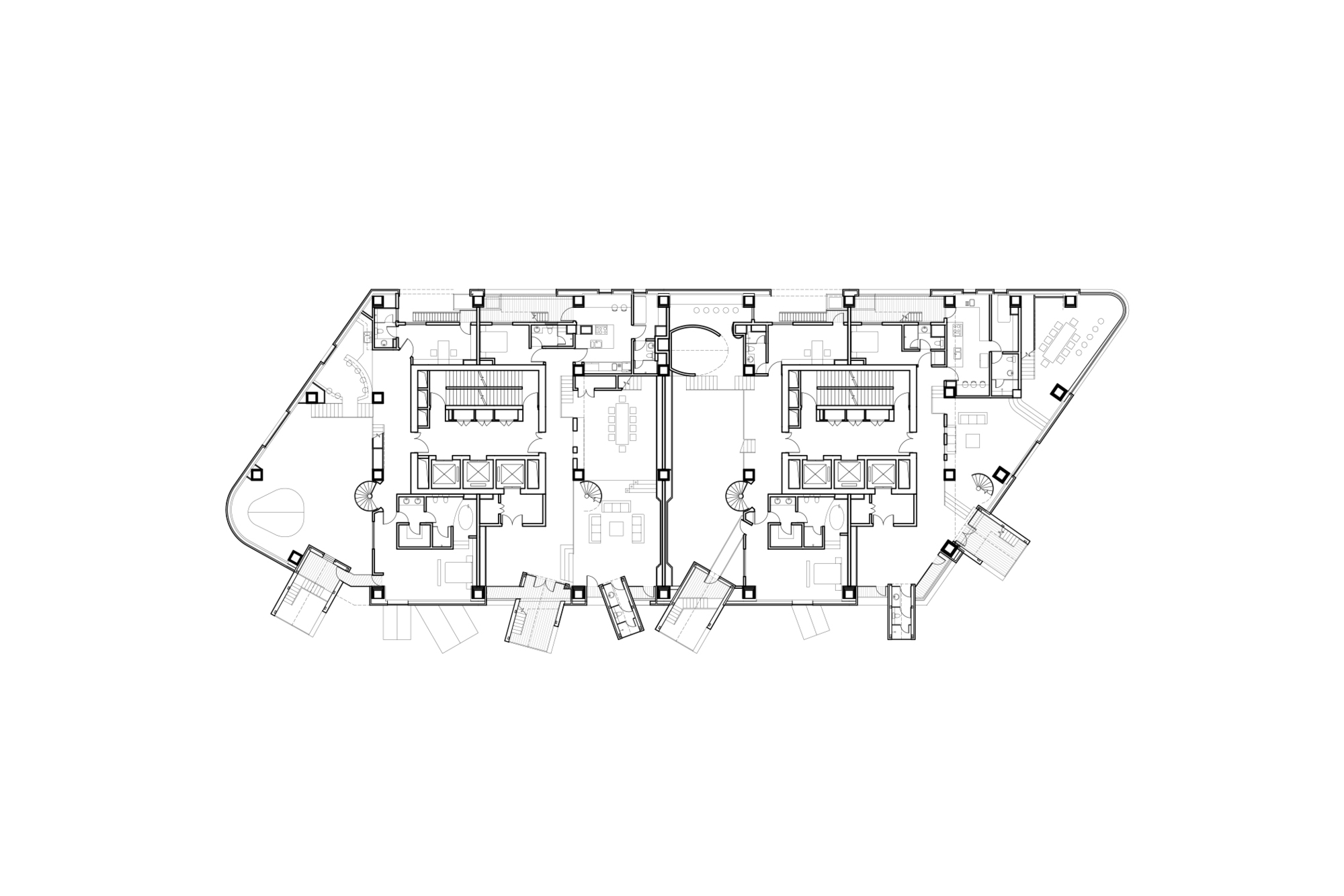
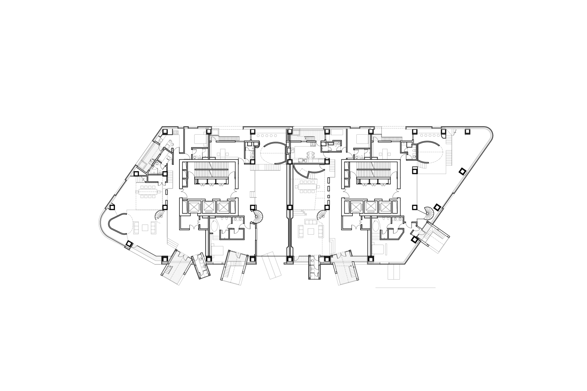
“The Third Space” complex tries to convey a kind of image of a three dimensional city settlement extends to the sky with 76 vertical stacked villas in the city. The floor slabs in usually flat in “Standard floor” in this project are stacked with staggered structural arrangement and thus form continuous increase of height level in each unit like geometric artificial terraces containing the transition of functions from the public to the private with the inhabitants climb and cross in the terraces, feeling the quiet atmosphere forming in the continuous spatial transitions.
Collection and media space are formed into the shape of houses on the slope. Pavilion houses with different size, shapes and direction are all transferred to the elevation in order to take in the city views and serve as several lively platforms of life open to the city thus becoming a symbol of dense vertical arranged “city settlement”. The real verdant courtyard is introduced into the top units with the help of the roof and thus creates a different feeling of height than that in the common villa.
All the duplex apartment units are stacked vertically with outdoor pavilions of different sizes and directions cantilevered in the corresponding elevation, taking in the city and nature view below and far away and becoming a new landscape in the city.
Project Info
Architects: Atelier Li Xinggang
Area: 88011 m²
Year: 2015
Country: Tangshan, China
Photographs: Guangyuan Zhang, Xinggang Li, Peng Sun
Lead Architects: Xinggang Li, Bangbao Fu, Peng Sun, X iaoyu Zhao, Zeyang Tan, Yiting Zhang
Structure: Fukui Zhang, Wenhua Kong
Engineering: Xin Zhao, Jianye Li, Jianli Hu, Weiwei Wang, Dongmei Xu, Wenwen Hao






























Madeline Brooks is a Projects Editor at Arch2O, where she has been shaping and refining architectural content since March 2024. With over a decade of experience in editorial work, she has curated, revised, and published an array of projects covering architecture, urbanism, and public space design. A graduate of the Harvard University Graduate School of Design, Madeline brings a strong academic foundation and a discerning editorial eye to each piece she oversees. Since joining Arch2O, she has played a pivotal role in shaping the platform’s editorial direction, with a focus on sustainability, social relevance, and cutting-edge design. Madeline excels at translating complex architectural ideas into clear, engaging stories that resonate with both industry professionals and general readers. She works closely with architects, designers, and global contributors to ensure every project is presented with clarity, depth, and compelling visual narrative. Her editorial leadership continues to elevate Arch2O’s role in global architectural dialogue.

