The Romanticism Shop | SAKO Architects

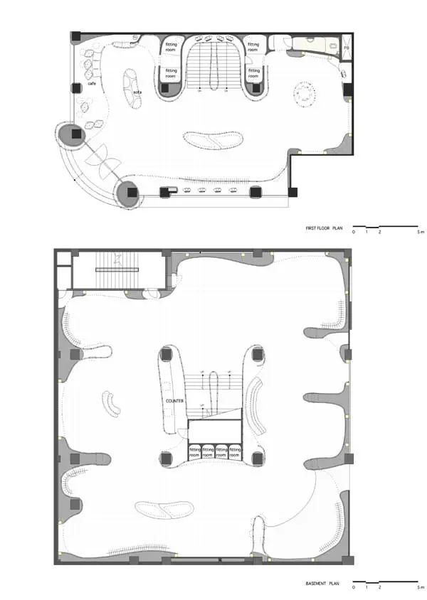
The Romanticism Shop, “The client asked me for a design that no one could copy. There were no other requests. My design style is that if a client has a requirement, I try to get a grip on his thinking and bring it further. As there were no requirements, I questioned the concept of the boutique, the clothes and the relationship between body and space.

hangzhou store sakoarchitects170508 24

In the end I designed an organic net winding through the space. Clothes are our second skin, space a third skin, and my design is positioned in between the clothes and space. It’s like a piece of furniture that you can hang clothes on and it changes its shape into partition, counter, chair, furniture as well as railing.

hangzhou store sakoarchitects170508 21

” interview with movingcities.org, Keiichiro SakoDesigned by Japanese architects Keiichiro Sako and Takeshi Ishizaka of SAKO Architects, The Romanticism Shop in one of many stores in Romanticism chain, which is a famous women’s clothing brand with about 500 stores in China. The design is so innovative, great, sophisticated and made with the great combination of materials, which made this store more chic and beautiful, such a great place to visit.

Ibrahim Abdelhady
Show full profile Ibrahim Abdelhady

Ibrahim Abdelhady is an architect, academic, and media entrepreneur with over two decades of experience in architecture and digital publishing. He is the Founder and CEO of Arch2O.com, a leading platform in architectural media, renowned for showcasing innovative projects, student work, and critical discourse in design. Holding dual PhDs in Architecture, Dr. Abdelhady combines academic rigor with industry insight, shaping both future architects and architectural thought. He actively teaches, conducts research, and contributes to the global architecture community through his writing, lectures, and media ventures. His work bridges the gap between practice and academia, pushing the boundaries of how architecture is communicated in the digital age.

Arch2O.com
Logo