The Prémont Lantern | DMG architecture + Bourgeois Lechasseur Architectes

Harley-Davidson, a legendary motorcycle brand, knows how to stand out, what’s cool and elegant, yet at the same time raw and gritty. Capturing the Harley-Davidson spirit, the Prémont Lantern, located in Québec, projects freedom and independence expressed by a desire to place itself beyond conventions. Surrounded by generic architecture laid out on rigid and regular plots of land, this design becomes an iconic building with its own simple, but dynamic identity.

Stéphane Groleau

The general form of the building is in a ‘U’ shape, where it turns its back to the highway to create a protected yard on the other side. The defined yard provides protection from noise, wind, and pollution for visitors. On the southern end of the site, a tower is formed, the upper part of which disappears in order to make room for the Prémont Lantern, which can be seen at night like a lighthouse.

One of the more interesting aspects of the design is its double skin of black aluminum. The layers making up the façade give it depth and the sense of movement as vehicles travel by it, while also helping to filter light, providing different effects at both day and night. The metal grill gives the impression of opaqueness and creates a play of shadows as it gradually reveals the interior through the use of large openings.

Stéphane Groleau

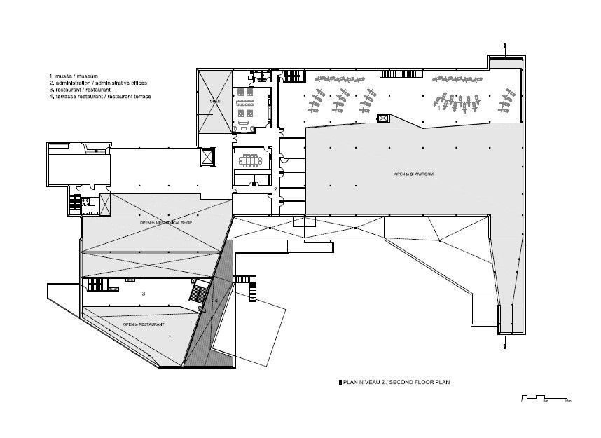
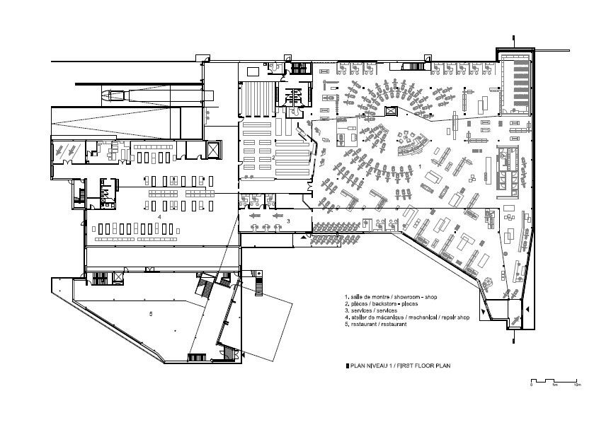
As visitors approach the building, the envelope frames a two-story high opening that displays a few motorcycles and sets the tone of the rest of the visit. Measuring around 8000 square meters, the building contains a large showroom situated in front on the boulevard, a museum that includes several collectors’ items, a large repair shop, a theme restaurant, and administrative offices.
The interior is designed more like a museum walkway than a simple store, following a sequence that tells the history of the Harley-Davidson company. By having the entrance under the tower, upon entry, the visitor is submerged in the light that comes from the tower and then is directed through various spaces by a light dot course and openings that highlight the objects on display, allowing the motorcycles to be displayed in all their glory. Stepping away from the banal metal boxes that surround it, the Prémont Lantern is the perfect beacon for all Harley-Davidson fans.

Courtesy of  DMG architecture + Bourgeois Lechasseur Architectes

Kristin Hoover
Kristin Hoover

Kristin Hoover is an editor at Arch2O and a proud graduate of Virginia Tech. Since joining in July 2014, she has authored over 200 insightful articles covering everything from adaptive reuse and cultural centers to eco-buildings and urban infrastructure . With a passion for architectural storytelling, Kristin skillfully curates and crafts compelling narratives that bring design innovation to life. Her editorial work reflects a broad yet finely honed interest in how architecture intersects with society, technology, and the environment—making her a key voice shaping Arch2O’s explorations of contemporary built form.

Arch2O.com
Logo
Send this to a friend