The Mori House , Originally designed by prominent Pacific Northwest architect Saul Zaik, this 1963 mid-century modern house is remodeled for a young, minimalist family.
The Mori House sits on a gently sloped, forested site off a quiet road in the west end of Portland, Oregon. It has a detached garage/studio structure and elevated decks for entry and connection to a detached tea house pavilion.
Saul Zaik originally designed the house for his friend and next-door neighbor, interior designer Howard Hermanson. The new owners, a young couple with design ambition and knowledge of Saul Zaik, are drawn to an “East meets PNW” modernist minimalism with clean lines, clear alignments, and natural materials. Design goals for the project were to maximize natural light and views of the forest and sky, reconfigure the existing spiral stair vertical circulation, create clear separation to private program areas, and increase the usability of outdoor decks.
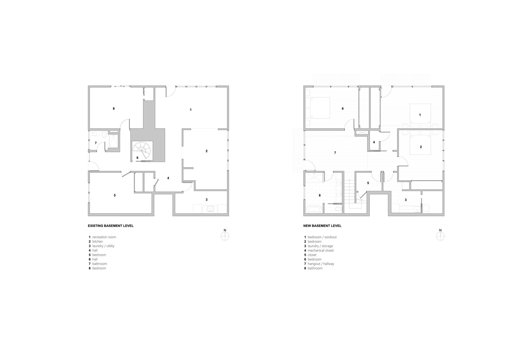
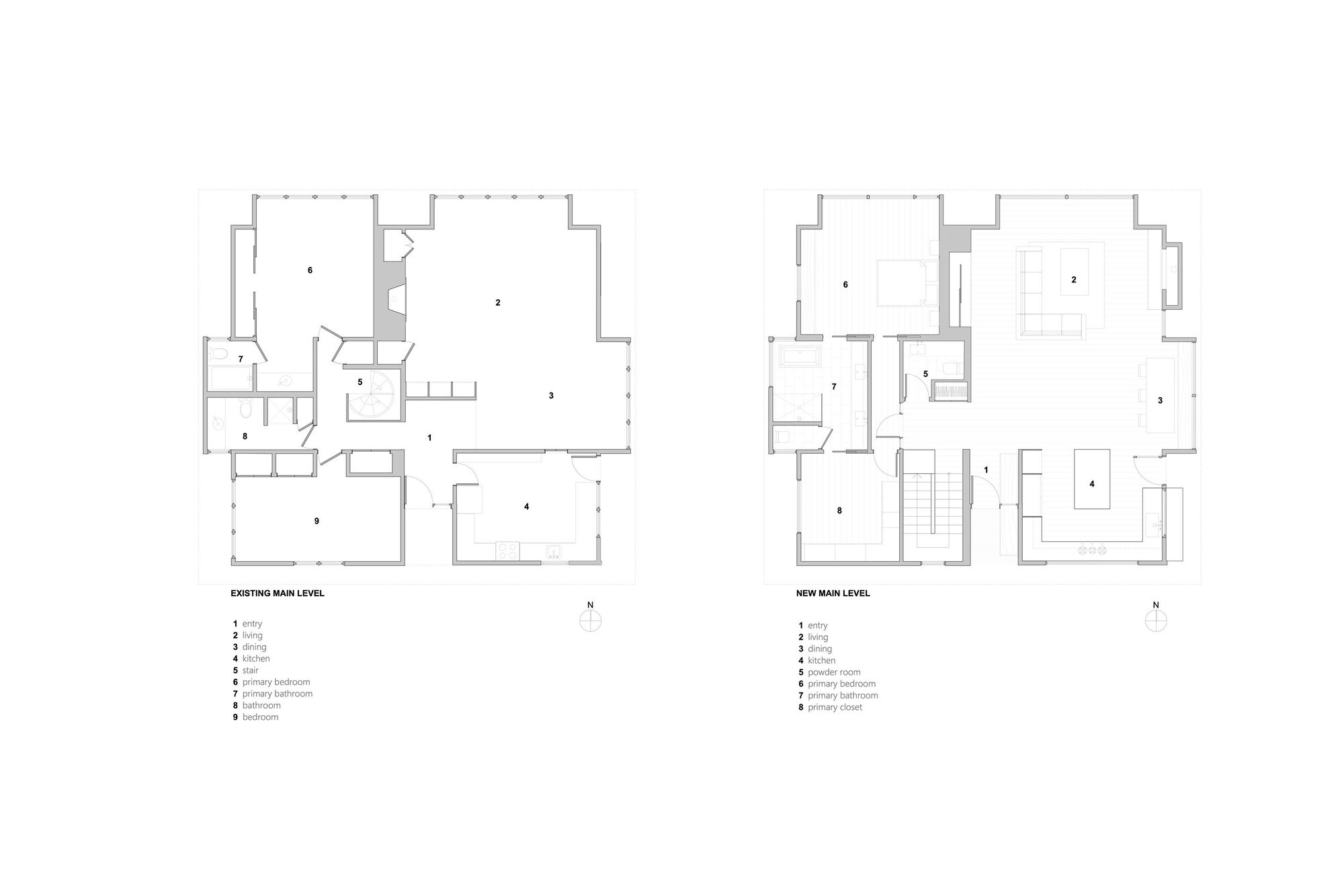
The resulting program comprises the living/dining/kitchen and primary suite on the main level and three flexible bedrooms, a bathroom, a hangout space, a wine cellar, and laundry on the lower walkout level.
On the main floor, the entry is retained but the experience is dramatically altered. By removing an existing loft and spiral staircase, the design unveils a soaring, nail-laminated wood roof that extends to a central skylight. This skylight floods the newly arranged spaces with forest-filtered light, clarifying the structural and spatial layout. Key features include a new switchback stair on the southwest side of the house, a primary suite that runs northeast-northwest on the north side of the house, and open living, dining, and kitchen spaces that run southeast-southwest on the south side of the house. In place of the spiral stair sits an entry closet and powder room that borrow light from the skylight above.
The kitchen features a horizontal window above the cooktop, offering views of mature rhododendrons. It opens into a dining nook featuring a custom fir bench in front of floor-to-ceiling glass. A new glass door and a picture window above the sink provide direct access to the existing deck and teahouse pavilion. In the living room, a relocated fireplace flips the primary seating towards the south and views of the forest and, on clear days, Mount Saint Helens. The former fireplace area now houses a built-in bar and tech closet.
Separated by the central space under the skylight, the primary suite introduces fir slats above the door to allow light into the hall and bathroom. This suite transforms an existing bedroom and bathroom into a spacious primary bathroom with an adjacent walk-in closet. The primary bathroom features a Japanese soaking tub, a thoughtfully detailed vanity, custom medicine cabinets with integrated LED lighting, and transom windows to borrow light from the skylight.
A datum of wood slates defines the new switchback stair and creates a stair volume that features filtered light from the large skylight. All upper-level rooms have some connection to the skylight, both visually and for access to light. The stair descends to a hangout space with floor-to-ceiling glazing overlooking the forest. The lower level includes three private, flexible spaces suitable for bedrooms, home offices, or workout rooms, along with a new bath and a wine cellar tucked beneath the stairs.
Project Info
Architects: SHED Architecture & Design
Country: United States, Portland
Area: 3715 ft²
Photographs: Rafael Soldi, SHED Architecture & Design
Manufacturers Gaggenau, Louis Poulsen, Lutron, Allwood, Ann Sacks, BM, BUILD, Benjamin Moore, Big Branch Woodworking, Bosch, Brendan Ravenhill, Brizo, DWR, Emtek, Eric Pfeiffer, Graff, Intrepid Marble and Granite, Jonas work room, Kohler, Kolbe, +7: Gaggenau
Original Architect: Saul Zaik









































