The Lap Pool House | Aristides Dallas Architects
The Lap Pool House
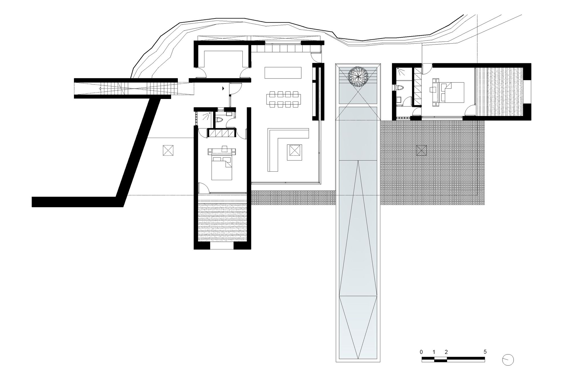
The house in Tinos, inspired by the cavities and ledges of the rocks, emerges from the natural landscape as a man-made cave, re-creating spatial points of exposure and introversion. The entrance is found in the back of the building, through an earth crack, while different cuts in the roof allow light and air to enter the building. The water in the pool contrasts with the rocky texture of the bare concrete as a translation of the interactions between natural elements.

Photography by © Panagiotis Voumvakis
A single slab of concrete, planted so it appears as an extension of the landscape, covers the three building volumes in the Lap pool house and shapes the individual architectural qualities of open and closed space in the residence. The two volumes that project from the slab perpendicular to each other make up the private spaces, a bedroom and a guest house. In the same volume there is a protected semi-outdoor space that frames the view while offering shelter, at the request of the owner.
The roof that is blending with the ground in one side, becomes a big cantilever in the other side, setting its appearance as a greatly innovative structural element. That way, in the middle space under the slab, the common areas are formed. Perfectly connected with the interior of the house this concrete cantilever provides with an extended semi-outdoor living space, which might be the most appealing spot during the summer period.

Photography by © Panagiotis Voumvakis
The tense of the building is underlined by the linear volume of the pool that comes out of the slope and leads the perspective to the horizon.
The used color palette emerges from the color of the rocks while the materiality and textures of the bare concrete enhance the blending of the building with the sight. Therefore, the scope of the project is to achieve a camouflage in the landscape while maintaining a dynamic presence itself. Embracing this idea of merging with the landforms around it, the building urges the habitant to live with absolute connection with the scenery of Tinos and with nature altogether.

Photography by © Panagiotis Voumvakis
Project Info:
Architects: Aristides Dallas Architects
Location: Greece
Area: 150 m²
Project Year: 2020
Photographs: Panagiotis Voumvakis
Manufacturers: Alumil, Mapei, Design Plaza



























