The Kensington Learning Space | Plan Architect
The Kensington Learning space is a new concept of kids’ learning space which consist of a learning space, playing space, and natural space. The site location is sitting in the Bangkok suburban area with the not-so-interesting surrounding. So the layout design is set to create its own atmosphere.

The Kensington Learning Space’s Functions:
The learning space is designed for two main functions which are classrooms and sports complexes. With various functions and room dimensions the design intends to put every function sitting in nature with natural light and greenery view coming through the window.
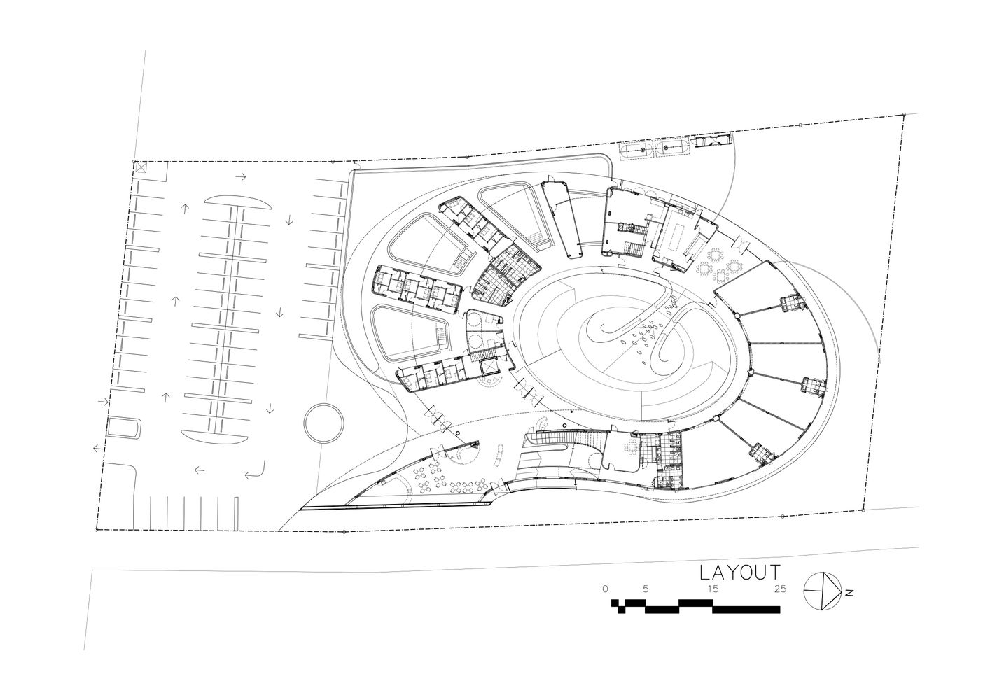
The oval shape with the center court is picked to make all rooms get a view on both sides. The varied room thickness is applied to the different functional requirements. The wider parts shown in the front of the building is set for the sport complex zone, while the narrow parts are set for classrooms with lower traffic area on the backside.
The form is designed to draw attention from kids and to encourage the acquisition of knowledge. The ribbon-like continuous plane curls oneself up from the floor to the roof turning the architecture to be a huge play frame that appeals to all kids who want to explore inside.
Inside the building, various kind of space is created to suit each individual function. The semi-outdoor space under the gym is set to be the swimming pool where the smooth linking surface from wall to ceiling with the greenery view at the end creates a cave-like space making an adventurous feeling for kids.
The column-free huge space is designed for the gym suit for flexible function making the free-style playing space for kids. Classroom at the narrow parts of the building is bringing the nature close to learning space letting all kids learning among the tree.

The highlight space of this building where the ribbon is folded from floor to ceiling creates an uncommon perception for kids the slope and curve shape boost the kid’s learning skills. The lower curve part is a free play space linking with the reception and coffee shop. The sloping plane is added to link with the second floor.
It is also be the play object with a slider and the net tree pierce the second floor linking from ground to the ceiling. More than that, under the slope plane is designed to be a hide and seek space for kids. For the upper curve part, the assembly hall is set to be placed for kids’ performances and parents’ meetings where the seating step is following the architectural form.
For the outside of the ribbon, the continuous shape is linked from the ground to the top making a playing path for kids running to the step roof garden. With the multi-big step, the space is defied to be each play space for a different kind of play at the same time.
The intention of playful and juicy space design along with the greenery nature atmosphere around, it both blends and becomes a place where learning space and playing space are sitting among nature.
Project Info:
Architects: Plan Architect
Location: Thailand
Area: 4000 m²
Year: 2020
Photographs: Ketsiree Wongwan
Manufacturers: SCG, SK Kaken, TOA, WDC, WILLY
Mechanical Engineers: Plan Engineering Company Limited
Interior Design: Integrated Field
Contractor: ANT Engineering






































