The High-Line Installation – the Innate Mark of an Architect | Zaha Hadid
How do you spot an Architect in a crowd?
The architect is marked by certain qualities which turn even the architect’s most meager endeavor into a classic masterpiece. The architect is blessed with the ability to juggle different personalities at different times. To an untrained eye, the architect is perceived as being plagued by multi-personalities. But that is far from the truth.
It would be a compliment If you called an Architect a “jack of all trades.” What sets the architect apart from all other “jacks” is that the architect is a master of all their trades. The architect’s view is that whatever can be designed should be excellent. As such, excellence is the innate mark of the architect. It’s how the architect is wired.
The object of this article is the high-line installation by ZAHA HADID. Zaha Hadid is an Iraqi-British architect who became the first woman recipient of the Pritzker Architecture Prize and received the Stirling Prize in 2010 and 2011. This high-line installation by Zaha Hadid is a perfect example of the innate mark of an Architect. This is why… The designer, Steven Burks, said in an interview, “For decades, the High Line was an overgrown railroad track, left over from an era when elevated trains roared through Manhattan.”
The High-Line Installation
Today it’s a multi-million dollar park welcoming hundreds of thousands of visitors daily.” With thousands of people visiting this site, It has become common practice for developers constructing any structure around The High Line park to design a temporary cover over the garden to avoid construction risks like heavy equipment or other debris falling on pedestrians.
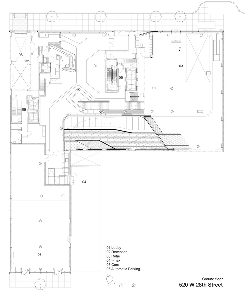
This temporary cover is supposed to be JUST A SHED/SHELTER made from traditional materials like scaffolding, etc. But Zaha Hadid, being an architect, designed a shelter and more. Zaha Hadid was constructing 520 West 28th Street, an 11-story condo tower by Hadid that is slated to open in 2016 beside New York’s High Line and needed to provide a system of pedestrian-tunnel for protection.
So, She designed the high-line installation, measuring 112 feet (34 meters) in length and 14.5 feet (4.4 meters) in height, with the function of equipping the pedestrians with necessary overhead protection while passing by the construction site from the High Line (the popular Manhattan park that was formerly a derelict railway. The linear park’s central pathway passes under the Hadid installation) to 520 West 28th Street.
Located at the heart of manhattan’s cultural district in West Chelsea, the installation called Allongé is inspired by the “connectivity and dynamism of movement” in the High Line. The high-line installation is made of silver fabric, covered by a black wooden shed stretched over a curved metal frame, adding sleekness to the otherwise “rigid New York streetscape.” The colors-silver on black remind observant users that “every cloud has a silver lining.”
“The swooping design of the temporary construction shelter embodies Zaha Hadid’s organic design aesthetic while serving as a mandatory protective cover for the high-line installation and foreshadows the fluid forms of her dramatic new sculptural building,” said Related Companies, the developer of 520 West 28th Street. This installation could have been just a temporary shed. But being designed by an Architect, it became a lot more, showcasing the innate mark of an Architect – excellence.
Tags: ApartmentsBuilt ProjectsHigh-Line InstallationHousingInstallationJersey CityNew YorkResidential ArchitectureUnited StatesZaha HadidZaha Hadid ArchitectsZHA
Studio London 10 Bowling Green Lane London EC1R 0BQ United Kingdom. T +44 20 7253 5147. F +44 20 7251 8322





