The Cube, who doesn’t like to travel and have the opportunity to explore and experience the world? Every time we step outside our front door it should provide us with the thrill of the unknown. What will I discover today, what will I learn, whom will I meet? We may not ask these questions expecting an answer that will change our lives but it’s important to keep our minds open to the possibility because the smallest action can speak tremendous volumes to the right person.
Now a day we live through technology, if we want to know what an area is like or what to expect when visiting a location we research places to go, the directions, the culture, to the point that it leaves no room for exploration and self-discovery. We make excuses that we want to be well prepared, or we don’t want to seem too much like tourists, sticking out like a sore thumb from the locals. In my opinion, traveling should be done through the eyes of a child, full of curiosity without the slightest hint of self-consciousness.
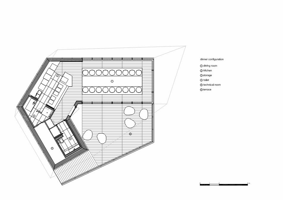
The Cube by Park Associati is a small-scale project that knows just how it feels to travel the world, designed to visit unexpected and dramatic locations throughout Europe. The one in London sits atop the Royal Festival Hall at the Southbank Centre and its twin is located on the roof of the Royal Opera House in Stockholm. With magnificent views over the city roofline, the Cube houses a small restaurant that seats only 18 people for lunch or dinner. The best star chefs working with Electrolux are featured at the restaurant, performing live for their guests and offering special menus prepared in the kitchen.
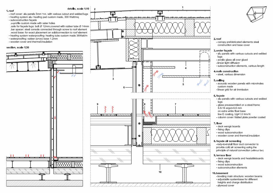
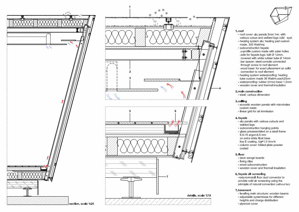
Lightness is a key element in this pavilion emphasized through its white color, as well as its slightly raised base. The module had to be easily assembled and disassembled to move from location to location requiring the materials to be durable as well. Advanced technological solutions were found and implemented in the lighting, heating, sound system and kitchen, so the pavilion is energy efficient and eco-friendly. Even though space is limited, accommodations were made to allow for the most use out of the structure as the dining table can disappear by raising it to the ceiling. This project goes to show how a small gesture can have worldly impacts, finding its own place in several city skylines, if only temporarily.
Project info:
Architects: Park Associati , Filippo Pagliani, Michele Rossi
Country: Italy
Year: 2012
Area: 140 m²
Photographs: Andrea Martiradonna
Manufacturers: FMG































