The Chazen Museum of Art | Machado and Silvetti Associates

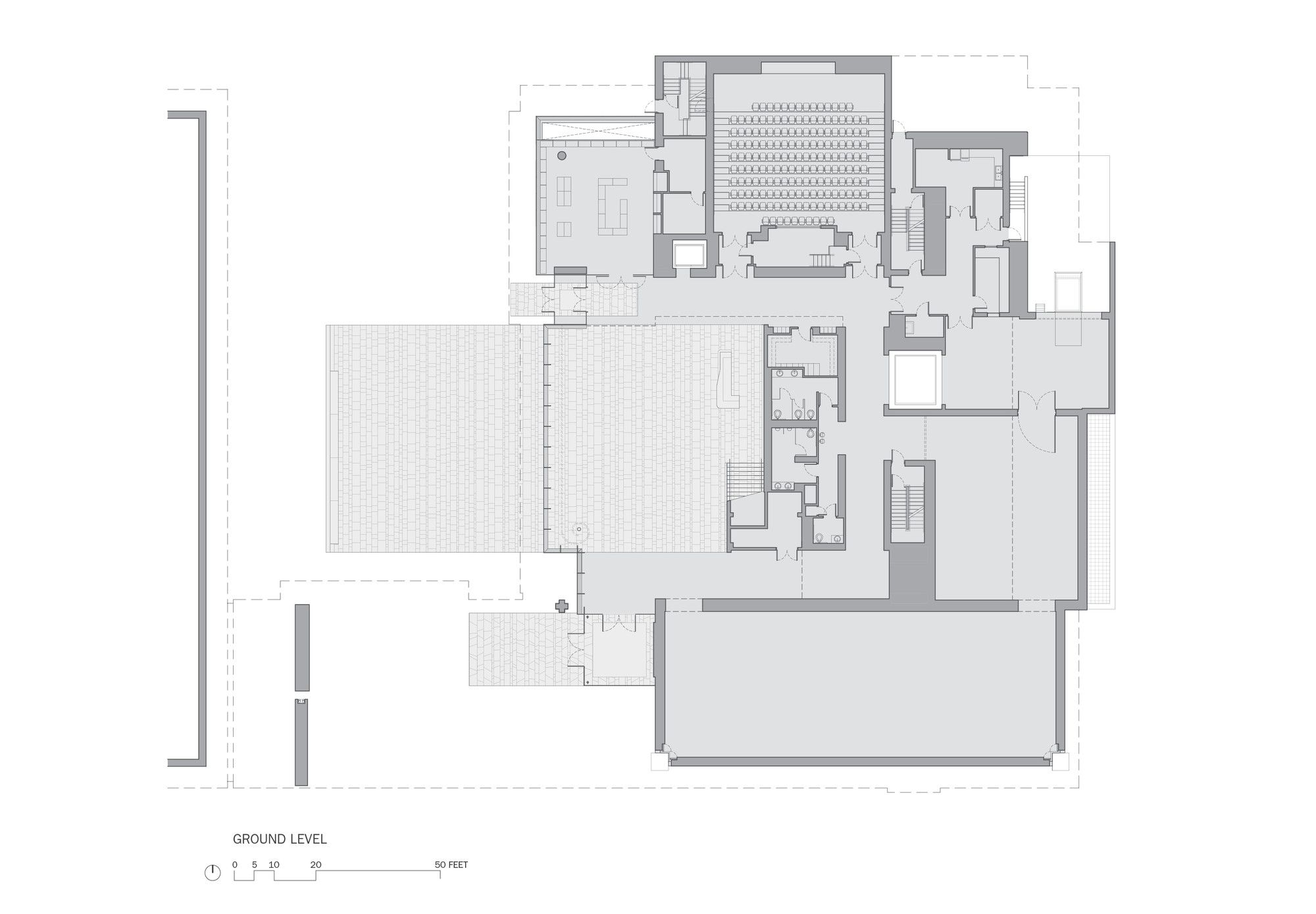
It is designed by Machado and Silvetti Associates, From The Chazen Museum of Art earliest stages, the goal has been to create a strong physical connection and sense of continuity from the existing museum to the addition. Building on this initial concept, two other very important relationships that have been a focus of the Chazen Museum of Art are the connection from outside to inside and from the addition’s entry level to its main gallery level.

University of Wisconsin, Chazen Museum of Art, Location: Madison WI, Architect: Machado and Silvetti

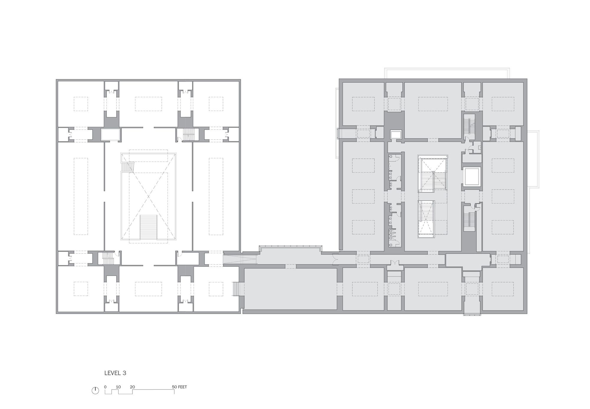
The connection between the existing museum and the addition is a bridge gallery at the third-floor level creating a strong physical connection or continuous flow of gallery space from the existing building to the new. The bridge and its exterior cladding/material construction are being investigated to both unify the south façade of the Museum and serve as a unique gateway to the campus.

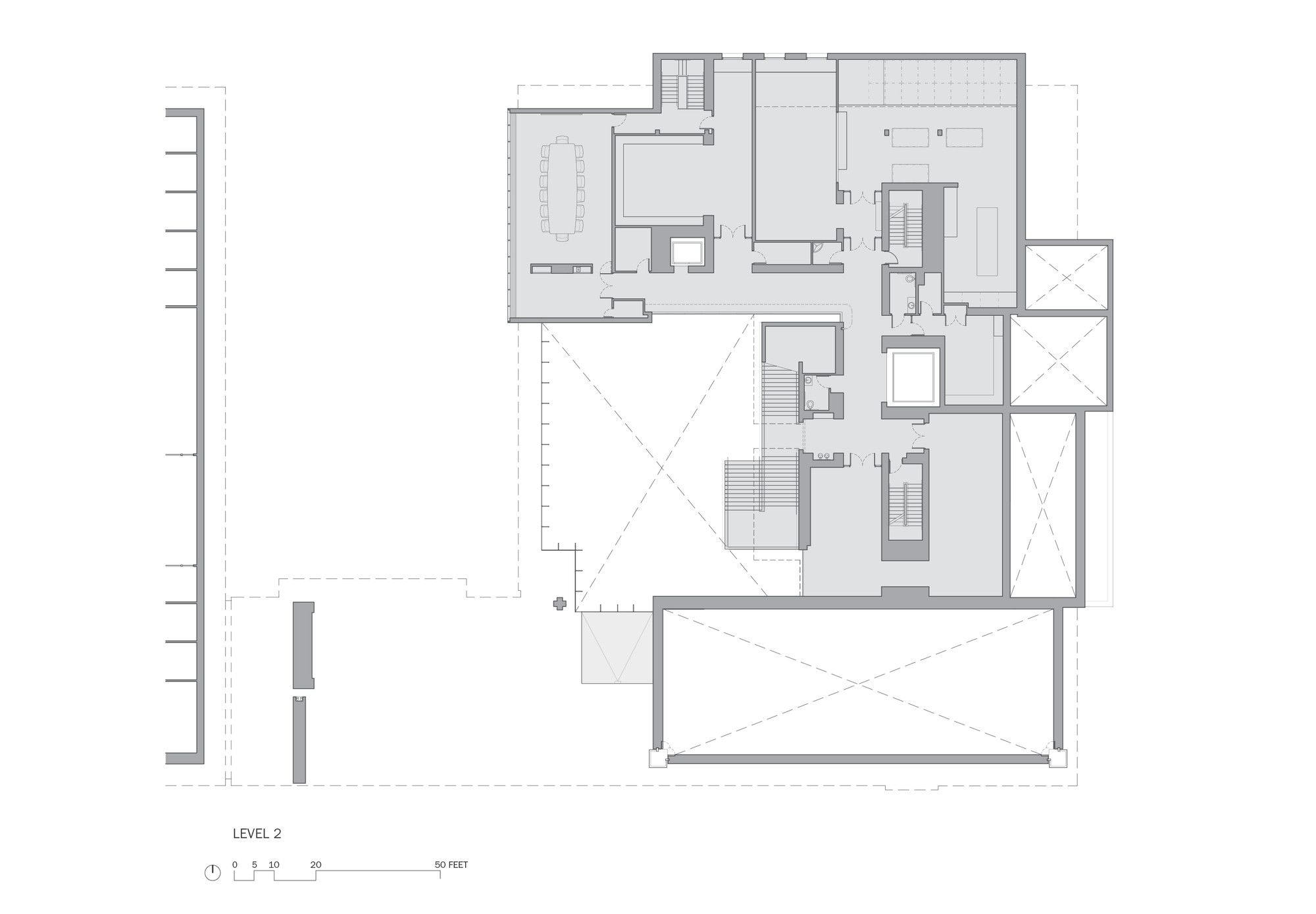
In contrast to the third level’s continuous band, the first and second levels are composed of a series of “boxes” that project and recede from beneath it. Their material expressions are conceived to be distinct from the third level, comprised of bronze/copper plate, board-formed concrete, and glass. The addition’s façade aims to be far more transparent and inviting to the public than its existing counterpart in areas where it can afford to do so. As an example of this, the public lobby consists of a large two-story glass volume that orients itself towards what will be a significant courtyard space along a portion of the East Campus Mall, making itself and the new museum entrance visible from both the pedestrian mall and University Avenue.

photography by © Anton Grassl / Esto

The addition’s main public stair is centered in the lobby. Its orientation and openness create a strong relationship between the entry level and the main gallery level. The stair is formed by a continuous band of stone veneer, which is conceived of as a stone “carpet” running uninterrupted, climbing and folding to create, define, and connect a number of different exterior and interior elements and spaces. Copper-clad monitors make up the addition’s roof-scape and help bring natural light to all of the permanent galleries and the mezzanine gallery at the third level. They take their cues from the existing museum with respect to their aperture size and material choice; however, their form and technical construction are thought of in a new and innovative way.

photography by © Anton Grassl / Esto

Project Info:
Architects: Machado and Silvetti Associates
Location: 750 University Avenue, University of Wisconsin– Madison, WI 53706, USA
Project Year: 2011
Photographs: Anton Grassl / Esto
Manufacturers: Decoustics
Project Name: The Chazen Museum of Art

Machado and Silvetti Associates
Arch2O.com
Logo