The design for this family home “Tetherow Overlook House” in Central Oregon’s high desert landscape balances a sophisticated spatial arrangement with a rich yet minimal material palette. The building form is a highly sculptural abstraction that engages in a dialogue with its surroundings. The residence seamlessly blends indoors and out, frames views near and far, and invokes the rich tones and textures of its context. The home complements the owners’ notable collection of conceptual modern art while accommodating their lifestyle centered around entertainment, family activities, and creative pursuits.
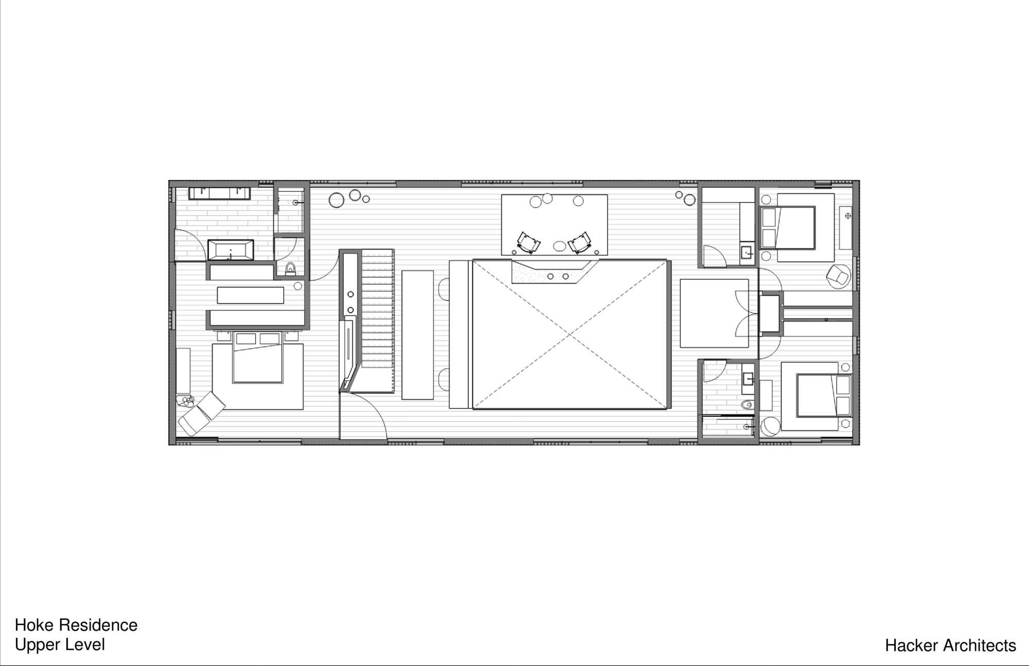
“Tetherow Overlook House” Located on a bluff, the 7,600-square-foot home nestles into the site and unfolds with a series of cascading platforms, revealing themselves as they descend the gentle, pumice-blanketed hillside. Faceted mass walls, inspired by nearby volcanic rock, anchor key spaces, guiding movement, defining boundaries, and directing views. Three distinct wood volumes house specific functions of the home: a garage and studio, bedrooms, and a dining area. When moving through the home, one experiences a mix of spaces, alternating between more open areas occurring between the masses and enclosed spaces within the volumes.
The entrance is situated at the highest point of the site, forming a semi-enclosed auto and entry court with a garage, parking platform, and perched bedroom volume. Interior materials heighten the connection to the outdoors, with floors, ceilings, and wall planes visually extending from interior to exterior. Moving down onto the entry platform reveals framed views of the eastern landscape. Entry occurs beneath the overhang of the bedroom volume through a large patinated steel pivot door that leads to an intermediate level between the main living spaces. Living spaces are characterized by simplicity, showcasing rich materials and details, and offering framed views of the surrounding desert and sky. The spaces between volumes establish a mix of microclimates that facilitate a direct connection with the distinctive high desert climate throughout the year.
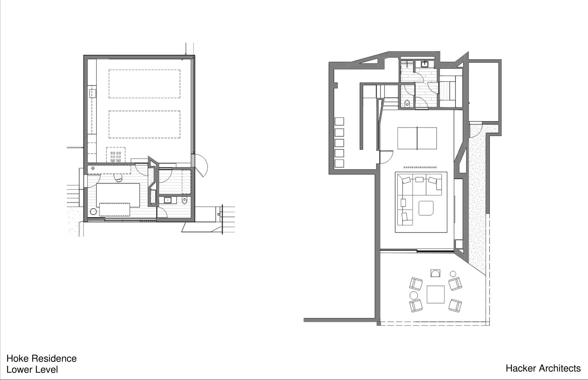
The main floor features distinct yet interconnected areas: a media lounge, living room, and kitchen, each occupying its own level. Located a few steps above the kitchen, the dining room resides in a perched volume. The upper level includes a primary bedroom suite, an open workspace, a gallery overlooking the living room, and two guest rooms. Circulation to this level is via a staircase supported by a finely crafted wood screen, providing separation and layered views within the interior spaces. Another staircase, positioned between the living room and kitchen platforms, descends to a lower level housing an entertainment space and spa that are tucked into the hillside.
Inspired by weathering tree snags, the exterior of the rectangular volumes is clad in coarse wood slats, maintaining a consistent texture over windows and walls. The monolithic masses—faceted, carved, and chamfered—reinforce their connection to the nearby basalt and obsidian, resembling their eroding yet enduring forms. The design offers varying degrees of shelter from the intense desert sun and wind, allowing the high desert climate to permeate the house at all times of the year.
Project Info:
-
Architects: Hacker Architects
- Country: Bend , United States
- Year: 2024
-
Photographs: Jeremy Bittermann
-
Contractors: KN Visions
-
Structural Consultants: Madden & Baughman Engineering
-
Landscape Consultants: Szabo Landscape Architecture
-
Lighting Consultants: O-
- Design Principal: Corey Martin
- Project Manager: Nicholas Hodges
- Interior Designer: Emily Knudsen
- Project Team: Nicolas Pectol, Nicolas Smith, and Sohee Ryan










































Tags: 2024abstractionBendGlassHacker ArchitectsJeremy BittermannProjectsTetherow Overlook HouseUnited StatesWood






