Tasting Room at Sokol Blosser Winery | Allied Works Architecture

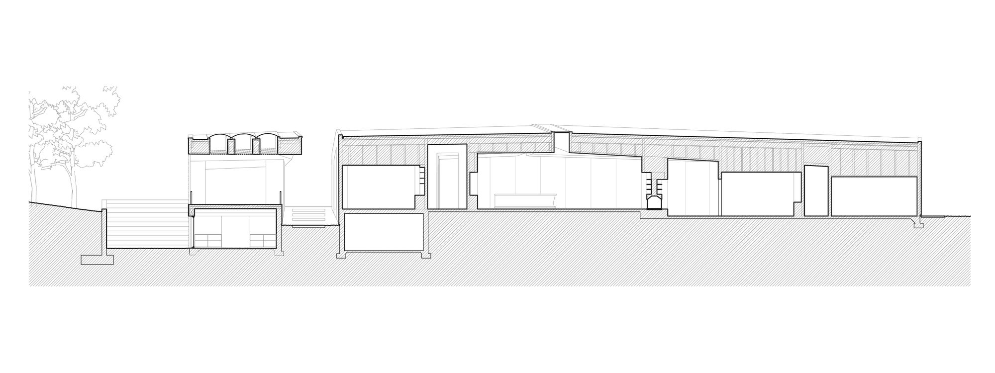
20The Dundee Hills are characterized by rolling grasslands, Oaks and Douglas fir. The Sokol Blosser winery sits on a knoll with panoramic views of the Willamette Valley below. This prospect is enhanced by the geometric rows of vines that follow the contours of the earth giving rhythm and measure to the landscape. The design began by marking the land, cutting a series of gardens, terraces and paths into the face of the hill. On an upper terrace, the building lifts from the earth, carrying a green roof with it.

photography by © Jeremy Bitterman

The new Sokol Blosser winery nearly 6,000 sf tasting room emerges as a solid mass of wood sliced open and carved out in response to natural light, serene views and the rituals of wine tasting. It is a “transparent solid”, a building that catches and holds space as it passes through. The building shifts and bends perception as it foreshortens vistas and distorts depth, all in service of intensifying the specificity of the visitor’s experience.

The elemental form and materiality draw inspiration from the earliest agricultural buildings in Oregon. Built of hemlock, fir, and cedar, they had a close connection to the land and were constructed with an economy and sense of grace. The floors, walls, and ceiling of the interior are clad in the rough-hewn cedar, the exterior a striated and random series of cedar boards. The faceted surfaces create a unified body of wood that holds the visitor to the hillside while connecting to the landscape beyond.

photography by © Jeremy Bitterman

The site of Sokol Blosser winery is organized as terraces that are carved from the contours of the Dundee Hills, one of the premier wine growing appellations in the United States. These terraces form open and walled gardens, parking areas and outdoor event space for the new Tasting Room.
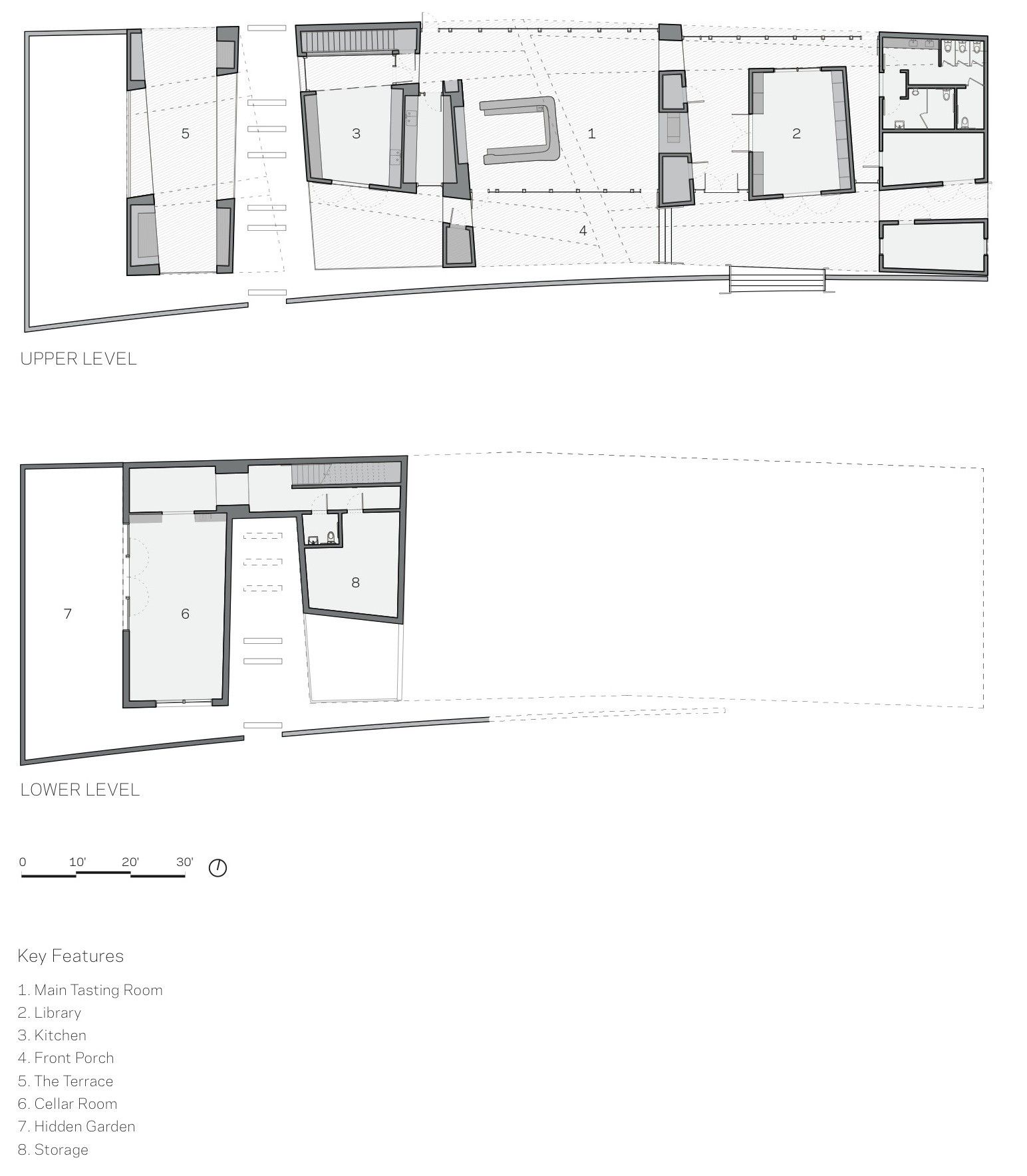
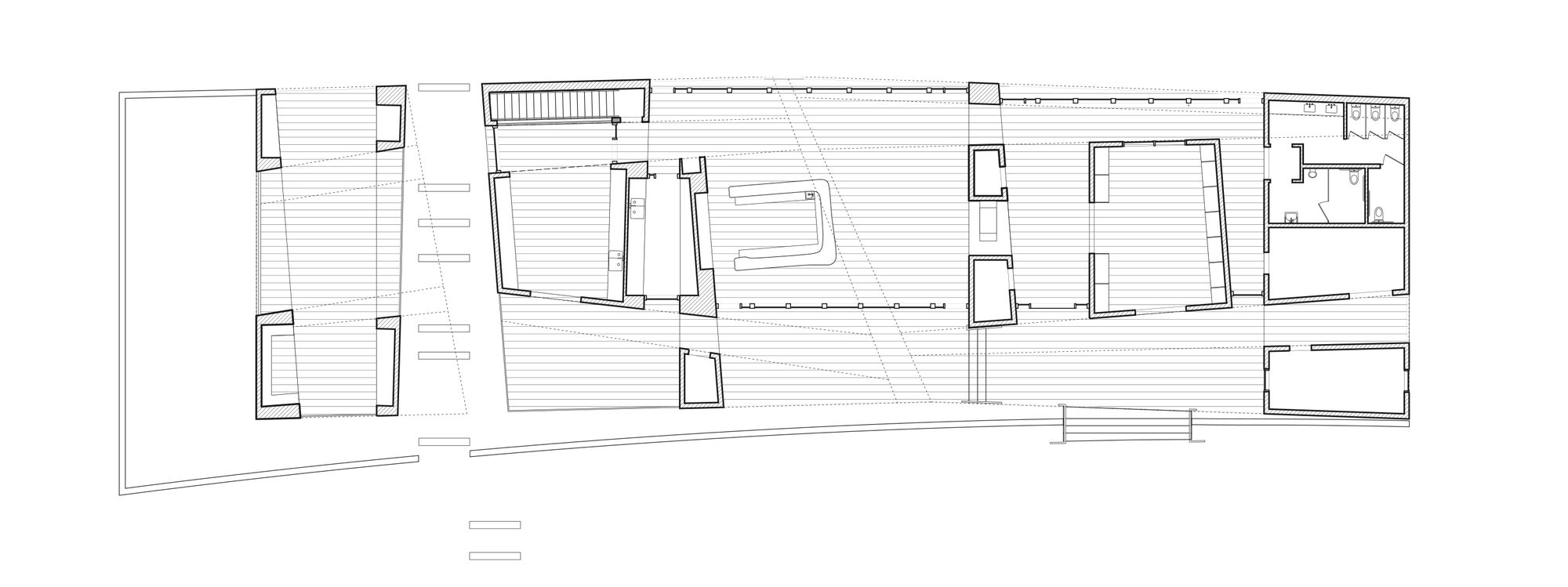
The building is organized to accommodate a range of wine tasting experiences in distinct spaces: the Main Room, Kitchen, Library, Cellar Lounge, Secret Garden, Porch, and Terrace. A landscaped path guides visitors to the entry of the new Tasting Room and anchors the building to its site. Visitors pass across a porch and are greeted in a cedar-clad foyer. Adjacent to the foyer is The Library, an intimate space dedicated to private tasting experiences.

photography by © Jeremy Bitterman

Passing through the foyer and turning left, guests enter the Main Room. All interior surfaces are clad in cedar strips, creating a dynamic yet warm atmosphere, suffused with light from both the expansive walls of glass on either side of the room as well as the linear skylight that bisects the canted ceiling. A hallway leads to The Kitchen, which can accommodate cooking demonstrations and seating for up to 12 people. An adjacent catering kitchen serves the rest of the building. The Kitchen opens directly onto the front Porch, offering another opportunity for private tasting and dining experiences.

Site Plan

A stair opposite The Kitchen leads to the Lower Level, with spaces reserved for Wine Club members and private events. The Cellar Lounge opens onto an outdoor Secret Garden, which is sheltered from general view by walls of board-formed concrete embedded in the earth and an overhanging grove of oak trees that anchor the western edge of the building. An exterior stair, which connects the main Tasting Room building to the Outdoor Terrace, leads from the front walkway to a grassy area behind the building and directly to the vineyards. Open to the elements on all four sides, the Outdoor Terrace provides sheltered views of the surrounding vineyards.

photography by © Jeremy Bitterman

Project Info:
Architects: Allied Works Architecture
Location: 4219 NE Sokol Blosser Ln, Dayton, OR 97114, United States
Design Team: Brad Cloepfil, Kyle Lommen, John Weil, Kathryn van Voorhees, Nathan Hamilton, Jared Abraham, Sushwala Hedding, Neal Harrod, Bjorn Nelson, Henry Adam Weber, Chris Brown
Area: 5700.0 ft2
Project Year: 2013
Photographs: Jeremy Bitterman
Manufacturers: Benjamin Moore, Kolbe, Lacey Glass, Lennox Magna-Fire, Scott Roeder Woodworkers, Miller Paint, Pioneer Sheet Metal, Uncommon Cabinetry, Brandsen Hardwood, Teufel Landscape
Structural Engineer: KPFF Engineers
M/E/P Engineer: Glumac
Civil Engineer: Leonard A. Rydell
Contractor: R&H Construction
Plants / Horticulture: Tom Fischer
Sustainability: Green Building Services
Furnishings: Jennifer Fowler/Allied Works
Scott Roeder Woodworkers: Custom Furniture

Allied Works Architecture
Arch2O.com
Logo
Send this to a friend