Tarabay Loft involved renovating an extension of an old house located in Batroun, Lebanon – a coastal city known for its Mediterranean charm and rich history. The primary goal was to create a comfortable and private space that reflects the local identity. The aim was to design a peaceful environment where residents could escape the hustle of the city. By blending the essence of the city’s history with modern elements, we ensured that the place was a reflection of our client’s vision.
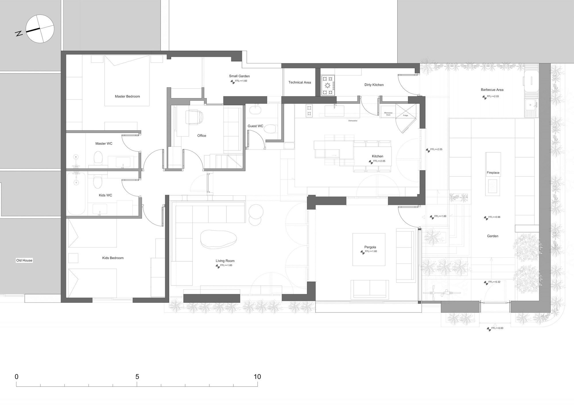
As you approach the house from the road, you will be greeted by a beautiful garden that is filled with carefully selected plants and bathed in natural light, creating a harmonized transition with the light earthy palette of the interiors. Going through the arched door, the main living space welcomes you with warm lights and textures. Every corner of this open space is designed in harmony with the earthy colors and the local wood that is used to fill the Mediterranean houses (cedar wood).
An open space plan has been designed to create an easy flow of circulation and visual communication between different areas, while also allowing the possibility of closing off a space for privacy. The kitchen overlooks the living room and a translucent glass background of the library provides privacy for access to the office and bedrooms. The first hub of the entrance is a space that can be opened or closed, depending on the users’ preferences. Every piece of furniture is designed and locally produced with noble materials such as copper, marble, natural wood, etc. This is our way of embracing every material used, by preserving its organic state.
The house pays homage to the rich heritage of the region by keeping the existing sandstone while embracing the conveniences of contemporary living. Smart home technology is seamlessly integrated with the timeless design, providing residents with the perfect blend of comfort and efficiency while keeping in mind our commitment to sustainability.
During the initial phase of the renovation, it was discovered that the floor where the kitchen was supposed to be built was unstable. A significant hollow space was revealed underneath the floor. To come up with an innovative solution, we decided to create an underground wine cellar that could be accessed from the kitchen island. The kitchen island’s glass opening provides a spectacular view of the cellar below, which can be illuminated to showcase its contents. This unique feature adds a touch of wonder and sophistication to any home. Through unconventional methods, we brought the client’s vision to life and crafted an exceptional design for the whole house.
Project Info
Architects: MAD Architecture & Design
Country: Batroun, Lebanon
Area: 145 m²
Year: 2023
Photographs: Ralph & Eliane Azar, Wassim El Murr
On Site Supervision: Anthony Daher
Design: Ghiwa Khalife
MEP: Wassim El Murr
Structural Consultancy: Hani Akiki
Lead Architects: Marie-Lyne Samaha, Anthony Daher
Landscape: Vert Veine
Lighting: Light Avenue by Debbas
Structural Consultants: Founders sarl

















Anastasia Andreieva is an accomplished Architectural Projects Editor at Arch2O, bringing a unique blend of linguistic expertise and design enthusiasm to the team. Born and raised in Ukraine, she holds a Master’s degree in Languages from Taras Shevchenko National University of Kyiv. Her deep passion for architecture and visual storytelling led her to transition from translation and editorial roles into the world of design media. With a keen eye for conceptual clarity and narrative structure, Anastasia curates and presents global architectural projects with precision and flair. She is particularly drawn to parametric and digital design, cultural context, and emerging voices in architecture. When I’m not analyzing the latest architectural trends, you’ll probably find me searching for hidden gems in cityscapes or appreciating the beauty of well-crafted spaces. After all, great design—like great connections—can be found in the most unexpected places. Speaking of connections, because architecture isn’t the only thing that brings people together.





